Der Bungalow erlebt eine Renaissance. Unser "AMBIENCE 77" ist wie geschaffen für zwei Personen, die das ebenerdige
Wohnen in vollen Zügen genießen möchten. Stilsicher prägen die unterschiedlichen Dachformen Sattel-, Walm- und Flach-
dach die architektonische Vielfalt der einzelnen Varianten. Ob mit Querhaus oder Übereck-Erker für einen überdachten
Freisitz oder einem Übereck-Panorama-Erker samt anschließender Gartenlounge: Diese Bungalows vereinen Architektur
und Funktionalität in ganz besonderer Weise. Kompakt in den Außenmaßen, passen sich die Bungalows jedem Grundstück
perfekt an. Und die rund 77 Quadratmeter Wohnfläche lassen keine Wohnwünsche offen.
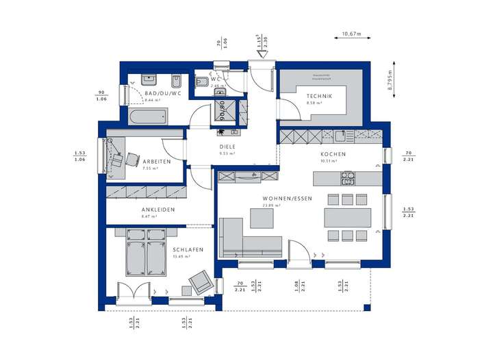
Alle Varianten verfügen über einen offenen, lichtdurchfluteten Koch-Ess-Wohnbereich, die Schlafzimmer weisen eine
separate Ankleide auf und die Badezimmer sind mit Dusche und Wanne bestens ausgestattet. Dazu kommt: Dank
eigenem Technik- und Hauswirtschaftsraum funktioniert das komfortable Wohnkonzept auf einer Ebene auch ohne
Untergeschoss ausgezeichnet.
Bungalow zum Verlieben inkl. Grundstück
26160 Bad Zwischenahn
Die vollständige Adresse der Immobilie erhalten Sie vom Anbieter.
Auf Karte anzeigen
Die vollständige Adresse der Immobilie erhalten Sie vom Anbieter.
Finanzierungszertifikat
In nur zwei Minuten zu Ihrem persönlichen Finanzierungszertifkat.
Infos
| Haustyp | Bungalow |
|---|---|
| Etagenzahl | 1 |
| Wohnfläche ca. | 93 m2 |
| Grundstücksfläche | 450 m2 |
| Zimmer | 3 |
Kosten
| Kaufpreis |
453.427 € |
|---|
Finanzierungsrechner:
Kaufpreis:
600.000 €
Eigenkapital:
600.000 €
Monatliche Rate
0 €
Effektiver Jahreszins
0 %
Sollzinsbindung
10 Jahre
Bausubstanz & Energieausweis
| Baujahr | unbekannt |
|---|
Beschreibung des Objekts
Ausstattung
Unsere Bien-Zenker Häuser werden hier in langjähriger Qualität "zur Ausstattung fertig" angeboten. Dazu gehören z. B.:
PV-Anlage mit europäischen Modulen und Batteriespeicher von VARTA
Außenwände im KFW 40 Energieeffizienzstandard
3-fach-verglaste Fenster im KFW 40 Energieeffizienzstandard
elektrische Alu-Rollläden gedämmt im EG und OG inkl. Smart Home-Steuerung
neueste Wohlfühlklimaheizung Plus - mit kontrollierter Be- und Entlüftung und Wärmerückgewinnung
Kühlfunktion für die warmen Tage im Jahr
Touchscreen, Einzelraumregelung und App-Steuerung
Bodenplatte
Um sich Ihren Traum zu verwirklichen, dürfen Sie noch den letzten Schliff anlegen:
Die Malerarbeiten, Bodenbelagsarbeiten, Innentüren und Sanitärobjekte fehlen noch zum Glück. Auf Anfrage biete ich Ihnen diese Gewerke natürlich gerne noch mit an.
Abschließend muss die Außenanlage noch erstellt werden.
inkl. Bodengutachten
inkl. BlowerDoorTest
zzgl. Baunebenkosten
Möchten Sie Eigenleistung einbringen und dadurch Geld sparen, wir können auch einzelne Gewerke aus unserer umfassenden Leistung rausnehmen.
Sprechen Sie mich an...
Lage
Bad Zwischenahn ist eine malerische Stadt in Niedersachsen, Deutschland, die für ihre schönen Gärten, Parks und Seen bekannt ist. Die Stadt ist vor allem für ihr Heilbad und Wellnessangebote beliebt und bietet eine entspannte Atmosphäre für Besucher. Mit seinen historischen Gebäuden, gemütlichen Cafés und Restaurants sowie der idyllischen Landschaft ist Bad Zwischenahn ein beliebtes Ziel für Erholungssuchende und Naturfreunde.
Grundriss
73830-4093-3-g
>
>
Adresse
26160 Bad Zwischenahn
Interessante Orte
Preis- und Lageinformationen
Preistrend für Bestandsimmobilien in Bad Zwischenahn