Was macht dieses Reihenhaus so besonders?
Es ist sehr großzügig geschnitten, lichtdurchflutet und sehr gepflegt und hat als REH einen vergleichsweise großen Garten. Im Erdgeschoss besticht das große Wohnzimmer mit einem großen, integrierten Wintergarten. Hier leben Sie verbunden mit dem schön angelegten Garten (siehe Fotos und Pläne). Die Räumlichkeiten im einzelnen:
ERDGESCHOSS
Eingangsbereich, Diele mit Treppenhaus, Gäste-WC inkl. Dusche, Küche, sowie das riesige Wohnzimmer mit Wintergarten: 59 m²
OBERGESCHOSS
Treppenhaus/Diele, Bad, drei Schlafzimmer (zwei davon mit Zugang zum Südbalkon und schönem Blick in den Garten)
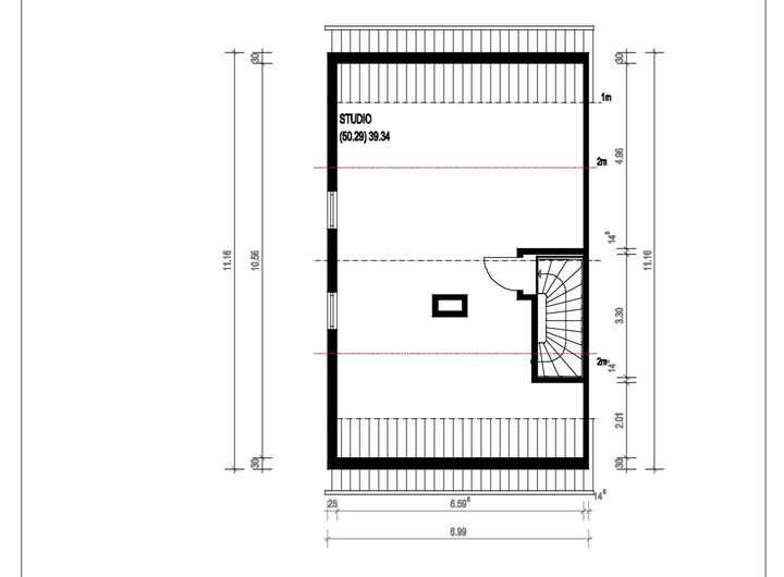
DACHGESCHOSS
großes Dachstudio mit knapp 30 m²
UNTERGESCHOSS
Flur/Treppenhaus, zwei Kellerräume, ein Hobbyraum (beheizt), Heizraum
AUSSENANLAGEN
Sehr hübsch angelegtes Grundstück (430 m²), einige Schritte entfernt vom Grundstück eine Garage (anteilig: 38 m²), auf dem Grundstück: zwei Stellplätze, Schuppen, ein Gartenhäuschen
Außergewöhnlich großzügiges REH, hübscher Garten (430 m²)
87600 Kaufbeuren
Die vollständige Adresse der Immobilie erhalten Sie vom Anbieter.
Auf Karte anzeigen
Die vollständige Adresse der Immobilie erhalten Sie vom Anbieter.
Finanzierungszertifikat
In nur zwei Minuten zu Ihrem persönlichen Finanzierungszertifkat.
Infos
| Haustyp | Reiheneckhaus |
|---|---|
| Etagenzahl | 3 |
| Wohnfläche ca. | 180 m2 |
| Nutzfläche | 40 m2 |
| Grundstücksfläche | 468 m2 |
| Bezugsfrei ab | nach Absprache |
| Zimmer | 5 |
| Schlafzimmer | 4 |
| Badezimmer | 1 |
| Garage/Stellplatz | Garage |
| Anzahl Garage/Stellplatz | 1 |
Kosten
| Kaufpreis |
580.000 € |
|---|---|
| Provision |
3,57 % inkl. Mehrwertsteuer |
Finanzierungsrechner:
Kaufpreis:
600.000 €
Eigenkapital:
600.000 €
Monatliche Rate
0 €
Effektiver Jahreszins
0 %
Sollzinsbindung
10 Jahre
Bausubstanz & Energieausweis
| Baujahr | 1985 |
|---|---|
| Objektzustand | Gepflegt |
| Heizungsart | Zentralheizung |
| Wesentliche Energieträger | Gas |
| Energieausweis | liegt vor |
| Energieausweistyp | Verbrauchsausweis |
| Energieverbrauchskennwert | 118,4 kWh/(m²*a) |
| Energieeffizienzklasse | D |
118,4
kWh/(m²*a)
Energieeffizienzklasse D
- A+
- A
- B
- C
- D
- E
- F
- G
- H
- 0
- 25
- 50
- 75
- 100
- 125
- 150
- 175
- 200
- 225
- >250
Beschreibung des Objekts
Ausstattung
- Gas-Zentralheizung
- gemütlicher Kachelofen im Wohnzimmer
- Dusche im EG
- beheizter Hobbyraum im UG
- überdachte Außentreppe (UG-EG)
- 1 Garage
- 2 Stellplätze
- Südbalkon
- Gartenhäuschen
Lage
VERKEHRSANBINDUNG
Das Reiheneckhaus liegt in einem gepflegten Wohngebiet im Westen von Kaufbeuren im begehrten Ortsteil Neugablonz – ruhig, grün und zugleich bestens angebunden. Die A96 (Anschluss Jengen/Kaufbeuren) ist in nur rund 10 Minuten erreicht und bringt Sie schnell nach Augsburg (ca. 45 Min.) oder München (ca. 60 Min.). Der Bahnhof Kaufbeuren ist ebenfalls ganz in der Nähe – ideal für Pendler und alle, die flexibel unterwegs sein möchten.
EINKAUFSMÖGLICHKEITEN
Einkaufen lässt es sich hier angenehm unkompliziert: Einkaufsmöglichkeiten für den täglichen Bedarf sind bequem zu Fuß oder mit dem Rad erreichbar. Die Fußgängerzone in Kaufbeuren bietet nette Kaffees und Geschäfte zum Bummeln.
SCHULEN
Für Schulkinder optimal: Kindergarten und Grundschule sind fußläufig erreichbar, weiterführende Schulen sind natürlich ebenfalls vor Ort.
GESUNDHEIT
Kaufbeuren verfügt über ein großes Ärztehaus und die Kliniken Ostallgäu-Kaufbeuren sind ebenfalls vor Ort.
FREIZEITMÖGLICHKEITEN
In Neugablonz gibt es ein eigenes Freizeitbad (Erlebnisbad Neugablonz). Kaufbeuren bietet Lebensqualität pur: Sportliche finden in der Umgebung zahlreiche Rad- und Wanderwege oder nutzen das Eisstadion und die vielen Vereine vor Ort. Und wer das Allgäu liebt, ist in kurzer Zeit mitten in den Bergen – zum Wandern, Skifahren oder einfach zum Entspannen und Genießen.
Sonstige Angaben
- Als Makler sind wir gemäß Gesetz über die Verteilung der Maklerkosten § 656 BGB für Verkäufer und Käufer in gleicher Höhe provisionspflichtig tätig.
- Alle Angaben, auch die Pläne beruhen auf den Angaben des Eigentümers und wurden von uns nicht nachgeprüft. Für Abweichungen jeglicher Art wird deshalb keine Haftung übernommen.
- Widerrufsbelehrung wurde übermittelt.
- Aufgrund des GwG (Geldwäschegesetz) sind wir als Makler dazu verpflichtet, die Identität der Interessenten nachzuweisen. Bitte bringen Sie deshalb eine Ausweiskopie zur Besichtigung mit. Vielen Dank für Ihr Verständnis!
- Energieausweis wird bei Erstbesichtigung vorgelegt.
- Datenschutzhinweis gem. DSGVO: Ihre Angaben/Daten werden gemäß den Bestimmungen der DSGVO und des Bundesdatenschutzgesetzes streng vertraulich behandelt.
- Besichtigungen nur nach Terminvereinbarung gemeinsam mit uns!
- Unser kostenfreier Service: Wenn Sie sich mit dem Gedanken tragen, Ihre eigene Immobilie zu verkaufen, bewerten wir als PMA Geprüfte Immobilienbewerter Ihr Objekt fachkundig nach ImmoWertV 2021.
Mit freundlichen Grüßen
Gisela von Quast, Tel: 08196 - 1769
Grundriss
Erdgeschoss
>
>
Obergeschoss
>
>
Dachgeschoss
>
>
Kellergeschoss
>
>
Schnitt
>
>
Adresse
87600 Kaufbeuren
Interessante Orte
Preis- und Lageinformationen
Preistrend für Bestandsimmobilien in Neugablonz