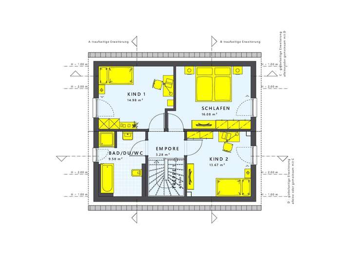
Du träumst von einem einzigartigen Zuhause, das ganz nach deinen Vorstellungen gestaltet ist? Mit LivingHaus wird dieser Traum Wirklichkeit! Dein neues Einfamilienhaus in Osnabrück erstreckt sich über zwei Etagen und bietet dir mit 125 m² Wohnfläche und drei Schlafzimmern ausreichend Platz für deine Familie. Das klassische Satteldach mit 38 Grad Neigung verleiht dem Haus nicht nur einen zeitlosen Charme, sondern sorgt auch für eine optimale Raumnutzung. Der Erker oder der Giebel erweitern deinen Wohnbereich und schaffen ein einladendes Ambiente. Die bodentiefen Fenster durchfluten die Räume mit Licht und bringen die Natur direkt ins Innere deines neuen Zuhauses.
Ein besonderes Highlight sind die umfassenden Zusatzleistungen, die LivingHaus bietet. Die hochwertige Traumküche wird individuell auf deinen Grundriss abgestimmt und überzeugt mit modernster Technik sowie cleveren Stauraumlösungen. Zudem erhältst du Zugang zum LivingHaus Bau-Cockpit, einer innovativen App, die dir hilft, dein Bauprojekt jederzeit im Blick zu behalten. Mit I-KON - Intelligentes Bauen wird dein Zuhause energieeffizient und umweltfreundlich, während das Zuhause-Darlehen dir finanzielle Vorteile verschafft. Das Zuhause-Paket sorgt für eine hochwertige Grundausstattung, während das DIY-Ausbau-Coaching dir ermöglicht, selbst Hand anzulegen und deinen Innenausbau zu gestalten. So wird dein Fertighaus nicht nur zu einem Ort des Wohnens, sondern zu einem Ausdruck deiner Persönlichkeit.
Gestalte dein individuelles Traumhaus mit LivingHaus in Osnabrück
49086 Osnabrück
Die vollständige Adresse der Immobilie erhalten Sie vom Anbieter.
Auf Karte anzeigen
Die vollständige Adresse der Immobilie erhalten Sie vom Anbieter.
Finanzierungszertifikat
In nur zwei Minuten zu Ihrem persönlichen Finanzierungszertifkat.
Infos
| Haustyp | Einfamilienhaus |
|---|---|
| Etagenzahl | 2 |
| Wohnfläche ca. | 125 m2 |
| Nutzfläche | 125 m2 |
| Grundstücksfläche | 350 m2 |
| Zimmer | 3 |
| Schlafzimmer | 3 |
| Badezimmer | 2 |
Kosten
| Kaufpreis |
477.823 € |
|---|
Finanzierungsrechner:
Kaufpreis:
600.000 €
Eigenkapital:
600.000 €
Monatliche Rate
0 €
Effektiver Jahreszins
0 %
Sollzinsbindung
10 Jahre
Bausubstanz & Energieausweis
| Baujahr | unbekannt |
|---|---|
| Bauphase | Haus in Planung (projektiert) |
| Qualität der Austattung | Gehoben |
Beschreibung des Objekts
Ausstattung
Dein zukünftiges Zuhause wird mit einer Vielzahl an hochwertigen Ausstattungsmerkmalen glänzen. Du erhältst eine individuell geplante Traumküche, die speziell auf deine Bedürfnisse abgestimmt ist und mit modernster Technik sowie ästhetischem Design überzeugt. Im Zuhause-Paket sind elegante Böden, stilvolle Türen und moderne Sanitäranlagen enthalten, sodass du direkt einziehen kannst. Außerdem profitierst du von einem hohen Vorfertigungsgrad, der einen schnellen Bauprozess ermöglicht. Die Verwendung von innovativer Dämmung macht dein Haus zum I-KON Effizienzhaus 55, das energieeffizient ist und die Umwelt schont. Aluminiumgeschäumte Rollläden bieten optimalen Hitzeschutz im Sommer und tragen zur Wärmedämmung im Winter bei. Mit dem DIY-Ausbau-Coaching wirst du zum Experten für deinen Innenausbau und kannst dein Zuhause ganz nach deinen Vorstellungen gestalten. Dein "Wie ich es will Fertighaus" wartet auf dich!
Lage
Osnabrück, eine charmante Stadt im Nordwesten Deutschlands, bietet zahlreiche Vorzüge für Familien, Naturliebhaber und Pendler. Die Umgebung ist reich an Bildungseinrichtungen, darunter mehrere Grundschulen und weiterführende Schulen, die alle gut erreichbar sind. Besonders die Grundschule in der Nähe hat hervorragende Bewertungen und bietet ein breites Spektrum an Förderangeboten für die Kleinen. Für die Allerkleinsten stehen zahlreiche Kindergärten zur Verfügung, die eine liebevolle Betreuung garantieren. Die Stadt ist außerdem mit gut ausgestatteten Supermärkten und Fachgeschäften für den täglichen Bedarf gesegnet. Die zentrale Lage ermöglicht es dir, in kurzer Zeit zu den wichtigsten Einrichtungen zu gelangen.
Die Anbindung an den öffentlichen Nahverkehr ist optimal, sodass du die Stadt bequem mit Bus oder Bahn erkunden kannst. Für Pendler ist die Autobahn A1 in unmittelbarer Nähe, wodurch du schnell in umliegende Städte gelangst. In deiner Freizeit kannst du die grüne Umgebung für ausgiebige Spaziergänge oder Radtouren nutzen. Parks und Spielplätze sind ebenfalls zahlreich vorhanden und laden zum Verweilen ein. Zudem sorgt die lebendige Kulturszene mit Museen, Theatern und Veranstaltungen für abwechslungsreiche Freizeitmöglichkeiten. Osnabrück ist nicht nur ein Ort zum Wohnen, sondern ein Ort, an dem du dich rundum wohlfühlen kannst.
Sonstige Angaben
Der Grundstückspreis ist im Anzeigenpreis bereits enthalten.
Das Grundstück erwerben Sie direkt vom Eigentümer über einen Makler.
Ein Träumchen an Grundstück. :-)
Heimkommen - ankommen - herunterkommen - wohlfühlen
Vereinbaren Sie gleich Ihren persönlichen Beratungstermin und sichern Sie sich Ihrer Familie ein geniales Bauland für Ihr neues Zuhause mit Living Haus.
Jedoch bitte ich zu berücksichtigen:
Ich baue mit sehr viel Herz und Kompetenz Häuser. Im Interesse der jeweiligen Grundstückseigentümer sowie meiner Bauherren werde ich ohne ein persönliches Gespräch zum Thema Hausbau nie irgendwelche Grundstücksdaten weiterleiten. Keine Ausnahmen an dieser Stelle.
Und... natürlich ist es mir selbst mit bestem Willen nicht möglich, eine dauerhafte Verfügbarkeit der Grundstücke zu garantieren. Es gibt jedes Grundstück halt nur einmal - Leider.
Kennen Sie schon den Living Haus Beratungsservice? Nein? Dann rufen Sie uns an und wir stimmen einen kostenlosen persönlichen Termin ab. Ihr Wohl liegt uns am Herzen.
Die Architektenleistungen sind bereits enthalten.
Für die gesamte Bauphase und darüber hinaus ist Ihr Projekt versichert, diese Leistungen sind im Preis bereits inbegriffen. Fragen Sie Ihren Berater.
Das Grundstück wird über einen anderen Anbieter verkauft. Keine Gewähr auf Angaben. Der Preis versteht sich zzgl. Erwerbs und Baunebenkosten. Änderungen des Preises oder der Ausstattungen sowie Irrtümer oder Zwischenverkauf sind vorbehalten. Abbildungen und Grundrisse können Extras zeigen, die nicht im Angebot enthalten sind. Alle Angaben nach bestem Wissen und Gewissen, jedoch ohne Gewähr.
Finanzierungsberater stehen bei uns kostenlos zu Ihrer persönlichen Beratung bereit.
Wir laden Sie gerne zu einem persönlichen Gespräch in unser Büro nach Osnabrück ein. Nur vollständig ausgefüllte Anfragen können auch beantwortet werden. Vereinbaren Sie noch heute einen Termin mit uns und kommen Sie Ihrem Traum von den eigenen 4 Wänden ein Stück näher.
Johannes.mandel@livinghaus.de oder via Telefon 0152 22 80 5843
Auf Living Haus können Sie vertrauen!
Wir freuen uns auf Sie! :-)
Adresse
49086 Osnabrück
Interessante Orte
Preis- und Lageinformationen
Preistrend für Bestandsimmobilien in Voxtrup