Ein hochwertig modernisiertes Einfamilienhaus in klassischer Massivbauweise, das zeitgemäßen Wohnkomfort mit vielseitigen Nutzungsmöglichkeiten verbindet.
Durch die umfassende Renovierung des Erdgeschosses sowie den modernen Ausbau des Untergeschosses steht heute eine Gesamtwohnfläche von ca. 100m²+ 40m² Nutzfläche zur Verfügung.
Die Immobilie eignet sich ideal für Familien, Mehrgenerationenwohnen oder für Menschen, die flexible Wohnkonzepte benötigen – etwa für erwachsene Kinder, unterstützungsbedürftige Angehörige oder eine Betreuungskraft. Die kluge Raumaufteilung und die modernisierte Ausstattung ermöglichen Wohnen in verschiedenen Lebenssituationen, sowohl gemeinsam als auch mit getrennten Wohnbereichen.
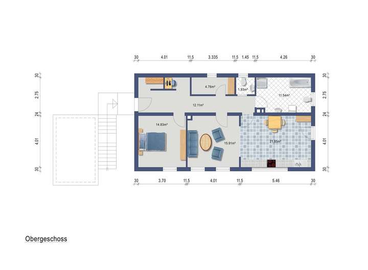
Erdgeschoss – ca. 100 m², modern & mit Landhauscharakter
Das Erdgeschoss wurde 2016 vollständig renoviert. Viele Fenster sorgen für lichtdurchflutete Räume und schaffen eine warme, einladende Wohnatmosphäre im Landhausstil.
Wunderschöne, massive Landhausküche
Die Küche im Erdgeschoss präsentiert sich im hochwertigen, massiven Landhausstil und fügt sich mit ihrer warmen, liebevollen Gestaltung harmonisch in das Gesamtbild des Wohnbereichs ein – schlichtweg wunderschön.
Hier befindet sich auch der Holzküchenherd (8 kW), der sowohl optisch als auch funktional ein Highlight darstellt.
Im Wohnzimmer sorgt zudem ein zusätzlicher Holzofen für gemütliche Wärme und eine besonders behagliche Atmosphäre.
Spa-Badezimmer als besonderes Highlight
Das luxuriös gestaltete Badezimmer erinnert an einen modernen Spa-Bereich und verfügt über:
eine stilvoll integrierte, großzügige Badewanne
hochwertige, harmonisch abgestimmte Fliesen
eine großzügige, komfortable Dusche
ein entspannendes Wohlfühlambiente
Zugang zum Außenbereich
Vom Erdgeschoss aus gelangt man:
direkt auf die überdachte Terrasse
in den überdachten Eingangsbereich
in den gepflegten Garten mit
überdachtem Jacuzzi
schönen Grünflächen
Platz für Gemüsebeete
Zusätzlich steht die Sonnenterrasse über der Garage als weiterer Entspannungsbereich zur Verfügung.
Untergeschoss – 2022 modern saniert & mit separatem Eingang
Das Untergeschoss wurde 2022 vollständig modernisiert und verfügt über 40m² und einen eigenen, unabhängigen Zugang, der vielseitige Nutzungsmöglichkeiten eröffnet.
Ideal geeignet für:
Mehrgenerationenwohnen
pflege- oder unterstützungsbedürftige Personen
Pflegekräfte, Alltagshelfer oder Betreuungspersonen
Gäste, Büro, Praxis, Hobby- oder Wellnessräume
Ausstattung im Untergeschoss:
moderne Küche
heller Wohn-/Aufenthaltsraum
modernes Badezimmer
erneuerte Elektrik, Wasser- und Abwasserleitungen
Flexible Nutzung durch Verbindungstreppe
Aktuell wird das Untergeschoss über eine eigene Eingangstür betreten.
Die frühere interne Verbindungstreppe kann jedoch baulich wieder geöffnet werden, sodass das gesamte Haus bei Bedarf wieder als zusammenhängende Wohneinheit genutzt werden kann.
Technik & Energie
PV-Anlage (2023) mit 13,2 kWp
10 kW Stromspeicher
Niedertemperatur-Ölheizung (2020)
Holzküchenherd (8 kW) in der Küche
Holzofen im Wohnzimmer
Vorbereitung für Wärmepumpe vorhanden
2022: umfassende Erneuerung von Elektrik, Wasser- und Abwasserleitungen
Ausstattung – Kurzüberblick
Massivbauweise
Gesamtwohnfläche ca. 140 m²
Renoviertes Erdgeschoss (2016)
Komplett modernisiertes Untergeschoss (2022)
Separater Zugang zum Untergeschoss
Interne Verbindungstreppe wieder herstellbar
Wunderschöne massive Landhausküche
Spa-Badezimmer im EG
Holzofen im Wohnzimmer
Holzküchenherd in der Küche
PV-Anlage 13,2 kWp + 10 kW Speicher
Überdachte Terrasse
Sonnenterrasse über der Garage
Überdachter Jacuzzi
Erneuerte Leitungen und Elektrik 2022
Preisübersicht
Der Gesamtkaufpreis beträgt 750.000 €.
In den Immobilienportalen wird die Immobilie mit einem Basispreis von 725.000 € ausgeschrieben.
Verpflichtend zu übernehmen:
15.000 € für die hochwertige PV-Anlage
10.000 € für die moderne
*** Charmater Landhausstil trifft moderne Wohnwelten- ideal für Generationen unter einem Dach ***
84424 Isen
Die vollständige Adresse der Immobilie erhalten Sie vom Anbieter.
Auf Karte anzeigen
Die vollständige Adresse der Immobilie erhalten Sie vom Anbieter.
Finanzierungszertifikat
In nur zwei Minuten zu Ihrem persönlichen Finanzierungszertifkat.
Infos
| Haustyp | Einfamilienhaus |
|---|---|
| Etagenzahl | 2 |
| Wohnfläche ca. | 140 m2 |
| Nutzfläche | 168 m2 |
| Grundstücksfläche | 498 m2 |
| Bezugsfrei ab | nach Absprache |
| Zimmer | 4 |
| Schlafzimmer | 2 |
| Badezimmer | 2 |
Kosten
| Kaufpreis |
725.000 € |
|---|---|
| Provision |
3,57 % Provision berechnet sich aus dem Notariell beurkundeten Verkaufspreis d.h. 3,57% Provision inkl. der gesetzlichen MwSt. |
Finanzierungsrechner:
Kaufpreis:
600.000 €
Eigenkapital:
600.000 €
Monatliche Rate
0 €
Effektiver Jahreszins
0 %
Sollzinsbindung
10 Jahre
Bausubstanz & Energieausweis
| Baujahr | 1967 |
|---|---|
| Letzte Sanierung | 2023 |
| Bauphase | Haus fertig gestellt |
| Objektzustand | Saniert |
| Qualität der Austattung | Gehoben |
| Heizungsart | Öl-Heizung |
| Wesentliche Energieträger | Öl |
| Energieausweis | liegt zur Besichtigung vor |
Beschreibung des Objekts
Ausstattung
- Massivbauweise
- PV-Anlage (2023) mit 13,2 kWp
- Stromspeicher mit 10 kW
- Niedertemperatur-Ölheizung (2020)
- Holzofen im Wohnbereich
- Holzküchenherd (8 kW) im Erdgeschoss
- Modernes Spa-Badezimmer im Erdgeschoss (große Dusche, hochwertige Fliesen, großzügige Badewanne)
- Renovierung Erdgeschoss: 2016
- Komplett modernisiertes Untergeschoss mit separatem Eingang (2022)
- Moderne Küche im Untergeschoss
- Interne Verbindungstreppe baulich wieder herstellbar
- Sonnenterrasse über der Garage
- Überdachte Terrasse & überdachter Eingangsbereich
- Jacuzzi im Garten (überdacht)
- Erneuerte Elektrik, Wasserleitungen & Abwasser (2022)
Lage
Lagebeschreibung
Die Immobilie befindet sich in Isen, einer charmanten Gemeinde im Landkreis Erding, die für ihre idyllische Landschaft, hohe Lebensqualität und gleichzeitig sehr gute Anbindung an den Großraum München bekannt ist. Eingebettet in das malerische Isental bietet Isen eine Kombination aus Natur, Ruhe und gewachsener Dorfstruktur – ideal für Familien, Naturfreunde und alle, die entspanntes Wohnen mit guter Infrastruktur verbinden möchten.
Der Ortskern von Isen ist nur wenige Minuten entfernt und bietet Einkaufsmöglichkeiten, Bäckereien, Apotheken, Ärzte, Restaurants, Kindergärten und eine Grund- und Mittelschule. Weiterführende Schulen befinden sich im nahegelegenen Erding und sind bequem erreichbar.
Dank der Nähe zu Erding, Dorfen sowie zur A94 besteht eine hervorragende Anbindung in Richtung München. Auch der Flughafen München ist gut erreichbar und macht den Standort besonders attraktiv für Pendler und Vielreisende.
Ein besonderes Highlight der Lage ist die wunderschöne Natur rund um das Isental: Spazier- und Radwege beginnen nahezu vor der Haustür und laden zu erholsamen Stunden im Grünen ein. Direkt hinter dem Haus befindet sich zudem ein kleines Schloss, das der Umgebung einen historischen und außergewöhnlichen Charme verleiht.
Isen bietet damit eine seltene Mischung aus ländlichem Wohlfühlambiente, guter Infrastruktur und attraktiver Verkehrsanbindung.
Sonstige Angaben
Prospekthaftungshinweis:
Dieses Exposé stellt kein Verkaufsangebot dar. Es dient allein Informationszwecken. Alle Angaben und Darstellungen in diesem Exposé wurden zwar mit größter Sorgfalt überprüft und zusammengestellt, sie können sich aber jederzeit ändern. Weder Immobilien Hofmann noch die übrigen Verantwortlichen sind verpflichtet, den Empfänger dieses Exposés über etwaige Änderungen zu informieren. Bei technischen Angaben wie z.B. Wohnungsgrößen, sind Abweichungen möglich. Bilder sind Interpretationen des Visualisierers. Bei den abgebildeten Grundrissvarianten, Innenraumdarstellungen und Abbildungen der Sanitär- und sonstigen Ausstattungen handelt es sich um unverbindliche Einrichtungsbeispiele. Maßgeblich für die geschuldete Ausstattung und Ausführung der betreffenden Immobilie sowie deren Grundriss sind allein der notarielle Kaufvertrag und die diesem beigefügten Baubeschreibungen, Pläne und Grundrisse. Weder Immobilien Hofmann noch die übrigen Verantwortlichen übernehmen eine Haftung für die Richtigkeit und Vollständigkeit dieses Exposés. Die Haftung für Vorsatz und grobe Fahrlässigkeit sowie für die Verletzung von Leben, Körper und Gesundheit bleiben unberührt.
Jeder Makler der Firma Immobilien Hofmann GmbH & Co. KG ist ein Kooperationspartner und somit ein selbständiger Immobilienmakler, welcher rechtlich ein eigenständiges Unternehmen darstellt und auf eigene Verantwortung handelt.
Grundriss
Grundriss EG
>
>
Grundriss UG
>
>
Adresse
84424 Isen
Interessante Orte
Preis- und Lageinformationen
Preistrend für Bestandsimmobilien in Isen