Dieses außergewöhnlich gepflegte und hochwertig ausgestattete 4-Familienhaus befindet sich in ruhiger und begehrter Lage von Ludwigsburg-Pflugfelden. Das Gebäude wurde im Jahr 1984 umfassend modernisiert und seither laufend instandgehalten. Es präsentiert sich heute in einem hervorragenden Gesamtzustand – ideal für Eigennutzer mit Platzbedarf ebenso wie für Kapitalanleger mit flexiblen Nutzungsideen.
Das Haus wurde bislang ausschließlich vom Eigentümer privat und geschäftlich genutzt. Derzeit wird die Erdgeschosswohnung von den Eigentümern bewohnt.
Das Obergeschoss diente über viele Jahre als Bürofläche, während die beiden Erdgeschosswohnungen zu einer großzügigen Wohneinheit zusammengeführt wurden. Diese überzeugt durch einen offenen Grundriss und bietet einen direkten Zugang zum gepflegten Gartenbereich.
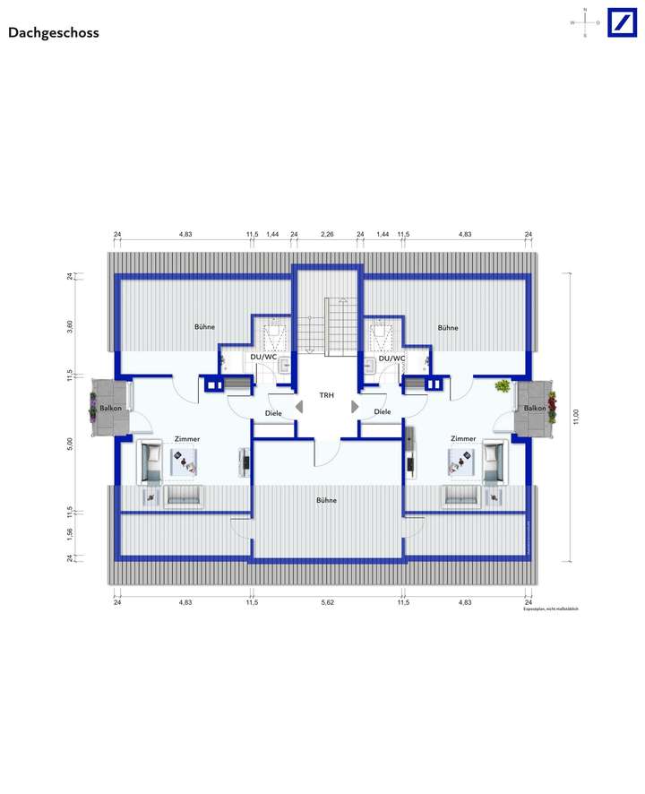
Das Dachgeschoss wurde ebenfalls grundlegend modernisiert sowie vollends ausgebaut und bietet zusätzliche Nutzungsreserven.
Das Haus eröffnet auf mehreren Ebenen vielfältige Nutzungsmöglichkeiten – vom Mehrgenerationenwohnen über Wohnen und Arbeiten unter einem Dach bis hin zur Vermietung.
Profitieren Sie von den zahlreichen Gestaltungsmöglichkeiten dieses wertbeständigen Wohnhauses in einer der beliebtesten und wertvollsten Lagen von Ludwigsburg-Pflugfelden.
Gestalten Sie hier Ihre eigene Geschichte – wir freuen uns auf Ihre Anfrage!
Vielfältig nutzbares 4-Familienhaus in gefragter Lage von Ludwigsburg-Pflugfelden
71636 Ludwigsburg
Die vollständige Adresse der Immobilie erhalten Sie vom Anbieter.
Auf Karte anzeigen
Die vollständige Adresse der Immobilie erhalten Sie vom Anbieter.
Finanzierungszertifikat
In nur zwei Minuten zu Ihrem persönlichen Finanzierungszertifkat.
Infos
| Haustyp | Sonstige |
|---|---|
| Etagenzahl | 2 |
| Wohnfläche ca. | 374 m2 |
| Nutzfläche | 133 m2 |
| Grundstücksfläche | 554 m2 |
| Bezugsfrei ab | nach Vereinbarung |
| Zimmer | 14 |
| Badezimmer | 6 |
| Anzahl Garage/Stellplatz | 2 |
Kosten
| Kaufpreis |
1.500.000 € |
|---|---|
| Provision |
3,57 % inkl. ges. MwSt. |
Finanzierungsrechner:
Kaufpreis:
600.000 €
Eigenkapital:
600.000 €
Monatliche Rate
0 €
Effektiver Jahreszins
0 %
Sollzinsbindung
10 Jahre
Bausubstanz & Energieausweis
| Baujahr | 1962 |
|---|---|
| Letzte Sanierung | 2014 |
| Bauphase | Haus fertig gestellt |
| Objektzustand | Gepflegt |
| Qualität der Austattung | Gehoben |
| Heizungsart | Zentralheizung |
| Wesentliche Energieträger | Gas |
| Energieausweis | liegt vor |
| Energieausweistyp | Verbrauchsausweis |
| Energieverbrauchskennwert | 150,0 kWh/(m²*a) |
| Energieeffizienzklasse | E |
150,0
kWh/(m²*a)
Energieeffizienzklasse E
- A+
- A
- B
- C
- D
- E
- F
- G
- H
- 0
- 25
- 50
- 75
- 100
- 125
- 150
- 175
- 200
- 225
- >250
Beschreibung des Objekts
Ausstattung
Individuelle Ausstattungsmerkmale:
- Garage
- gute Infrastruktur
- elektrische Rolläden
- Parkettboden
Weitere Objektmerkmale:
• Das Wohnhaus ist nicht nach WEG aufgeteilt – es handelt sich um eine wirtschaftliche Einheit.
• Die Obergeschosswohnungen wurden seiner Zeit seit den 1980er-Jahren als Bürofläche genutzt
Eine Rückführung zu Wohnzwecken ist möglich.
• Das Dachgeschoss wurde ausgebaut; ehemals teilweise Bühnenfläche.
• Das Gebäude verfügt über ein massives, solides Mauerwerk mit fugenlosem mineralischem Kalk-Wärmedämmputz. Im Erdgeschoss naturreiner Kalkputz - ohne Tapeten.
• Hochwertige Holz-Isolierglasfenster aus nordischer Kiefer, ebenso Holzrollläden (die größeren und wichtigen Elemente elektrisch betrieben).
• Hochwertige Innenausstattung mit maßgefertigten Einbauschränken.
• Helle, gut belichtete und belüftete Räume mit freundlicher Wohnatmosphäre.
• ausgebauter Hobbyraum im Kellergeschoss und weiteres WC sowie Dusche
• Einbauküchen im Erd- Ober- und Dachgeschoss vorhanden.
Lage
Ludwigsburg ist mehr: Freizeit, Kultur, Architektur, Einkaufen, Weinlaube; Ludwigsburg ist ein Treffpunkt, eine barocke Pracht mit italienischem Flair, modernem Zeitgeist sowie Wirtschaftsstandort vieler namhafter Weltunternehmen.
Kunst und Kultur sorgen in Ludwigsburg für Lust und gute Laune. Ein facettenreiches Angebot an kulturellen Einrichtungen und abwechslungsreicher Gastronomie erwartet Sie hier.
Genießen Sie die Vorzüge der ruhigen Randlage gepaart mit kurzen Wegen zu naturbelassenen Erholungsoasen und dem pulsierenden Ludwigsburger City Life.
Sonstige Angaben
Besichtigungstermine und Absprachen sind ausschließlich über uns zu führen. Bitte bewahren Sie die Privatsphäre des Verkäufers und der Nachbarn und sehen Sie vom Betreten des Grundstücks ohne unsere Begleitung ab.
Ich freue mich, mit Ihnen dieses Haus gemeinsam zu entdecken und ich bin gespannt, wie Sie sich hier fühlen!
Haben Sie Ihren finanziellen Spielraum schon abgesteckt? Dieses ist im Vorfeld einer Besichtigung unabdingbar.
Hilfe bei der Finanzierung? Meine Kollegen helfen Ihnen gerne - sie haben eine Idee und holen für Sie ein individuelles Angebot. Unkompliziert, beratungserfahren, souverän.
Übrigens: Kennen Sie den aktuellen Marktwert Ihrer Immobilie? Nach der heutigen Objektsuche sind Sie vielleicht selbst bald in der Situation, eine bestehende Immobilie verkaufen oder vermieten zu wollen. Gerne erstellen wir Ihnen eine kostenlose und unverbindliche Wertermittlung Ihrer Immobilie. Sprechen Sie mich einfach an.
Ich freue mich auf Sie!
Herzlich,
Ihre Michele Roll
HINWEIS:
Alle Informationen im Exposee beruhen auf den Angaben und übergebenen Unterlagen des Verkäufers, bzw. Dritter. Eine Haftung für die Angaben im Exposee kann deshalb durch die Deutsche Bank Immobilien GmbH nicht übernommen werden.
Rechtlicher Hinweis auf den Urheber des Exposés
Michele Roll
Selbstständige Immobilienberaterin
Große Äcker 1 71691 Freiberg am Neckar
E-Mail: michele-nancy.roll@db.com
Telefon: 0177 6533320
Aufsichtsbehörde: Industrie- und Handelskammer (IHK) Region Stuttgart
Internet: https://www.ihk.de/stuttgart/
Anschrift: Jägerstraße 30, 70174 Stuttgart
Grundriss
Lageplan
>
>
Schnittzeichnung
>
>
Aktueller Grundriss nach Umges
>
>
Aktueller Grundriss nach Umges
>
>
Aktueller Grundriss nach Umges
>
>
Aktueller Grundriss nach Umges
>
>
Ursprungsgrundriss (Baugesuch
>
>
Ursprungsgrundriss (Baugesuch
>
>
Ursprungsgrundriss (Baugesuch
>
>
Adresse
71636 Ludwigsburg
Interessante Orte
Preis- und Lageinformationen
Preistrend für Bestandsimmobilien in Ludwigsburg