Dieses Einfamilienhaus, Baujahr 1968, befindet sich in der beliebten Lage Schortens-Middelsfähr und bietet auf ca. 146 m² Wohnfläche und einem ca. 595 m² großen Grundstück viel Platz für Familien. Das sogenannte Halbetagenhaus vom Architekten Toni Rech besticht durch seine besondere Architektur und eine flexible Raumaufteilung über mehrere Ebenen.
Die Aufteilung beginnt im Erdgeschoss mit einem Windfang, einem Gäste-WC, der Küche und einem großen, hellen Wohn-Esszimmer. Dieses verfügt über eine große Fensterfront, die einen herrlichen Blick in den Garten ermöglicht. Von hier aus gelangt man direkt zur überdachten Terrasse und in den Garten. In der 1. Halbetage befinden sich zwei Kinderzimmer, ein Schlafzimmer und ein Bad mit Duschwanne, das 2015 erneuert wurde. Das Obergeschoss bietet zwei weitere Zimmer und ein ebenfalls 2015 modernisiertes Duschbad. Die 2. Halbetage führt zum Dachboden, der als Ausbaureserve dient.
Die Böden wurden 2022 mit Laminat und Fliesen erneuert. Die moderne Einbauküche stammt aus dem Jahr 2010. Für Wärme sorgt eine Ölheizung aus dem Jahr 2001 mit einem 3000-Liter-Öltank. Die Fenster wurden 1996 als Mahagonifenster erneuert, und eine Gaube wurde 2010 hinzugefügt. Die Elektrik ist im Obergeschoss teilweise noch 2-adrig.
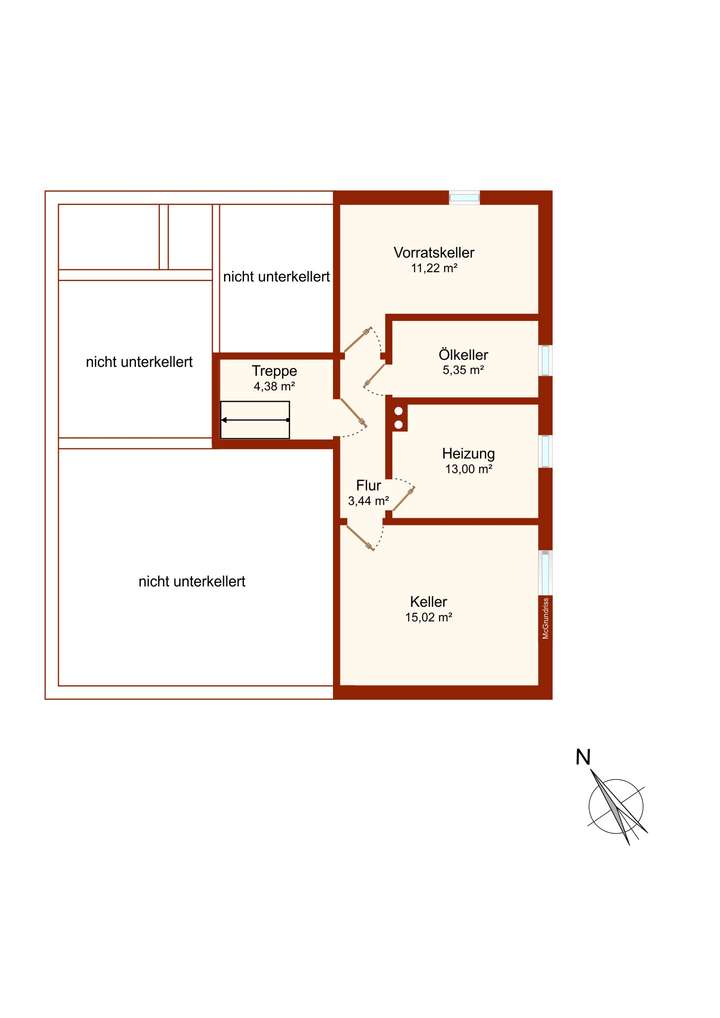
Der ca. 54 m² große Teilkeller beherbergt den Heizungsraum, den Ölkeller sowie zwei Kellerräume. Zum Angebot gehören zudem eine Garage und zwei Geräteschuppen im Außenbereich.
Dieses Haus bietet eine solide Basis für individuelles Wohnen in einer begehrten Lage von Schortens-Middelsfähr.
Schortens-Middelsfähr: Familienhaus mit besonderem Grundriss
26419 Schortens
Die vollständige Adresse der Immobilie erhalten Sie vom Anbieter.
Auf Karte anzeigen
Die vollständige Adresse der Immobilie erhalten Sie vom Anbieter.
Finanzierungszertifikat
In nur zwei Minuten zu Ihrem persönlichen Finanzierungszertifkat.
Infos
| Haustyp | Einfamilienhaus |
|---|---|
| Wohnfläche ca. | 146 m2 |
| Nutzfläche | 70 m2 |
| Grundstücksfläche | 595 m2 |
| Zimmer | 6 |
| Schlafzimmer | 5 |
| Badezimmer | 2 |
Kosten
| Kaufpreis |
280.000 € |
|---|---|
| Provision |
3.57 % inkl. gesetzl. MwSt. |
Finanzierungsrechner:
Kaufpreis:
600.000 €
Eigenkapital:
600.000 €
Monatliche Rate
0 €
Effektiver Jahreszins
0 %
Sollzinsbindung
10 Jahre
Bausubstanz & Energieausweis
| Baujahr | 1968 |
|---|---|
| Wesentliche Energieträger | Öl |
| Energieausweis | liegt vor |
| Energieausweistyp | Bedarfsausweis |
| Energieverbrauchskennwert | 302,9 kWh/(m²*a) |
| Energieeffizienzklasse | H |
302,9
kWh/(m²*a)
Energieeffizienzklasse H
- A+
- A
- B
- C
- D
- E
- F
- G
- H
- 0
- 25
- 50
- 75
- 100
- 125
- 150
- 175
- 200
- 225
- >250
Beschreibung des Objekts
Ausstattung
Teilunterkellert
Lage
Middelsfähr liegt im äußersten Südosten des Stadtgebiets von Schortens an der Grenze zur kreisfreien Stadt Wilhelmshaven und wird nur durch die Bundesstraße 210 vom benachbarten Schortenser Stadtteil Roffhausen getrennt. Es handelt sich um eine attraktive Wohnlage von Schortens, die besonders durch ihre hervorragende Anbindung überzeugt.
Der Stadtteil bietet eine ruhige Wohnatmosphäre und ist besonders für all jene geeignet, die die Nähe zum Wasser und die Möglichkeit für Spaziergänge oder Radtouren entlang des Kanals schätzen.
Trotz der idyllischen Lage ist die Infrastruktur gut erreichbar. Das Zentrum von Schortens mit seinen vielfältigen Einkaufsmöglichkeiten (Supermärkte, Fachgeschäfte), Ärzten, Apotheken und Schulen ist nur wenige Fahrminuten entfernt. Auch Wilhelmshaven mit seinen umfassenden Angeboten ist schnell erreichbar.
Ein wesentlicher Vorteil von Middelsfähr ist die exzellente Verkehrsanbindung. Über die Bundesstraße B 210 gelangen Sie zügig in die umliegenden Städte Jever und Wilhelmshaven. Zudem ist die Bundesautobahn A 29 schnell angebunden, was eine optimale Mobilität für Pendler und Reisende gewährleistet.
Middelsfähr kombiniert eine entspannte, wassernahe Wohnqualität mit einer schnellen Erreichbarkeit aller wichtigen städtischen Einrichtungen.
Sonstige Angaben
Der Makler-Vertrag mit uns kommt durch die Beauftragung der Maklertätigkeit in Textform (z.B. E-Mail mit Bestätigung der gewollten Inanspruchnahme) zustande. Die Höhe der Courtage richtet sich nach den ab dem 23.12.2020 in Kraft getretenen gesetzlichen Regelungen zur Teilung der Maklercourtage. Hiernach wird die Courtage regelmäßig für beide Parteien (Eigentümer und Käufer) jeweils in Höhe von 3 % zuzüglich Umsatzsteuer in jeweils geltender Höhe, derzeit also insgesamt 3,57 % des Kaufpreises einschließlich Umsatzsteuer bei notariellem Vertragsabschluss verdient und fällig. Die Höhe der Bruttocourtage unterliegt einer Anpassung bei Steuersatzänderung. Grunderwerbssteuer, Notar- und Gerichtskosten trägt der Käufer.
Grundriss
Erd- und Obergeschoss
>
>
Dachgeschoss
>
>
Kellergeschoss
>
>
Adresse
26419 Schortens
Interessante Orte
Preis- und Lageinformationen
Preistrend für Bestandsimmobilien in Schortens