1928 erbaut, 2000 umfassend kernsaniert und als größtenteils Neubau erweitert, verbindet dieses Anwesen den Charme eines klassischen Landhauses mit der Offenheit moderner Architektur. Der Entwurf stammt vom Architekten Dieter Allgayer, Ravensburg, einem Re:build Spezialisten für ältere und historische Gebäude.
Verglaster First, große Fensterflächen und ein hochwertiger Materialmix aus Stein, Holz, Metall und Glas schaffen eine helle, großzügige Atmosphäre. Der historische Hintergrund – einst Wohnsitz des Zeppelin-Steuermanns Kapitän Schönherr, später Besuchsort bedeutender deutscher Politiker – verleiht dem Haus einen besonderen, seltenen Charakter.
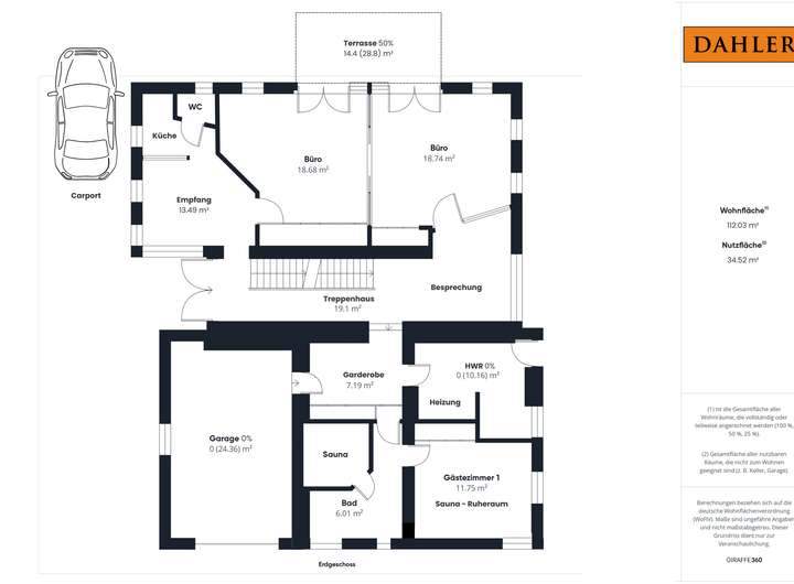
Die rund 298 m² Wohnfläche plus etwa 105 m² Nutzfläche verteilen sich auf zehn Zimmer, zwei Vollgeschosse und ein ausgebautes Dachgeschoss. Das Erdgeschoss bietet hohe Flexibilität: Eine derzeit gewerblich genutzte Einheit mit Empfang, zwei Büros und Besprechungsbereich kann ebenso als Praxis, Atelier oder eigenständige Wohneinheit dienen. Ergänzt wird es durch ein Gästeapartment mit Sauna und großem Bad sowie zwei weitere Apartments mit eigenem Bad und Kitchenette, die attraktive Einnahmen im mittleren fünfstelligen Bereich ermöglichen.
Das Obergeschoss bildet das architektonische Zentrum: ein rund 130 m² großer Wohn- und Essbereich mit originalem Fachwerk, bis zu 6,5 Metern Deckenhöhe, Dachverglasung, Galerie und östlicher Frühstücksterrasse – ein beeindruckender Raum, der Wohnen zu einem besonderen Erlebnis macht. Im Dachgeschoss liegen Schlafzimmer, Bad, Studio mit Ankleide sowie ein Balkon mit Alpenblick.
Das etwa 790 m² große Grundstück (inklusive Anteil an der Privatstraße) bietet einen direkten Zugang zu einer Weide, dazu kommen eine innenliegende Garage, ein Carport und weitere Stellplätze. Dieses Haus richtet sich an Käufer, die eine besondere Innenarchitektur sowie Charakter und Geschichte schätzen, moderne Technik erwarten und flexible Nutzungsmöglichkeiten suchen – ideal für Familien, Mehrgenerationen, Gastgeber oder Menschen, die Wohnen und Arbeiten unter einem Dach vereinen möchten.
Ländliche Noblesse mit moderner Architektur – Ihr stilvoller Rückzugsort am Bodensee
88131 Lindau (Bodensee)
Die vollständige Adresse der Immobilie erhalten Sie vom Anbieter.
Auf Karte anzeigen
Die vollständige Adresse der Immobilie erhalten Sie vom Anbieter.
Finanzierungszertifikat
In nur zwei Minuten zu Ihrem persönlichen Finanzierungszertifkat.
Infos
| Etagenzahl | 3 |
|---|---|
| Wohnfläche ca. | 298 m2 |
| Nutzfläche | 105 m2 |
| Grundstücksfläche | 790 m2 |
| Bezugsfrei ab | nach Vereinbarung |
| Zimmer | 10 |
| Schlafzimmer | 4 |
| Badezimmer | 4 |
| Garage/Stellplatz | Garage |
| Anzahl Garage/Stellplatz | 1 |
Kosten
| Kaufpreis |
0 € |
|---|---|
| Provision |
3,57 % inkl. der gesetzl. MwSt., bezogen auf den Kaufpreis |
Finanzierungsrechner:
Kaufpreis:
600.000 €
Eigenkapital:
600.000 €
Monatliche Rate
0 €
Effektiver Jahreszins
0 %
Sollzinsbindung
10 Jahre
Bausubstanz & Energieausweis
| Baujahr | 2000 |
|---|---|
| Letzte Sanierung | 2000 |
| Objektzustand | Modernisiert |
| Qualität der Austattung | Gehoben |
| Heizungsart | Wärmepumpe |
| Wesentliche Energieträger | Strom |
| Energieausweis | liegt vor |
| Energieausweistyp | Verbrauchsausweis |
| Energieverbrauchskennwert | 56,4 kWh/(m²*a) |
| Energieeffizienzklasse | B |
56,4
kWh/(m²*a)
Energieeffizienzklasse B
- A+
- A
- B
- C
- D
- E
- F
- G
- H
- 0
- 25
- 50
- 75
- 100
- 125
- 150
- 175
- 200
- 225
- >250
Beschreibung des Objekts
Ausstattung
* Verglaster Dachfirst
* Maßgeschreinerte Unikat-Türen
* Raumhohe und mundgeblasene Fensterelemente
* Elektrische Markisen und Solar-Screen-Sonnenschutzbehänge
* Echtholz-Parkett und Naturstein
* Sichtmauerwerk
* Design-Kamin von Rüegg Studio (Schweiz)
* Maßgeschreinerte Küche mit Siemens-Geräten, US-Kühl-Gefrierschrank, Quooker, Fooddisposer
* Sanitärobjekte von Philippe Starck
* Sauna
* Drei Gästezimmer mit eigenem Duschbad bzw. Kitchenette und Balkon
* Wärmepumpe mit Wärmerückgewinnung (2023 erneuert)
* Geregelte Wohnraumlüftung mit Sommer-Kühlbetrieb
* Dezentrale Warmwasserbereitung
* Elektrische Zusatzheizungen
* Rein regenerative Energieversorgung aus Wasserkraft
* Vorbereitung für PV-Anlage
* Highspeed-Glasfaser-Anschluss
* Zertifizierte Alarmanlage
* Haussprechanlage
* Zentralstaubsauger
* Dimmbares Licht mit Bewegungsmeldern
* 380-V-Stromanschluss in der Garage
* Wallbox im Carport
* Überdachte Terrasse mit automatisch gesteuerten Markisen
* Automatische Bewässerung der Pflanzen und Rasenroboter
* Zusätzlicher Freiplatz (+ 7.000 €)
* Zwei weitere Freiplätze auf Fläche von ca. 74 m² (+ 10.000,- €)
* Hobbyraum im UG, auch als Lager oder weiterer Raum für Büroeinheit geeignet
* Möglichkeit zum Einbau eines Fahrstuhls
Lage
Lindau-Bechtersweiler bietet ruhiges Wohnen im Grünen mit zugleich hervorragender Anbindung. Die Insel Lindau erreichen Sie in rund zehn Minuten, Kindergarten, Schulen, Ärzte und Einkaufsmöglichkeiten liegen im Umkreis von etwa drei Kilometern. Bus und Bahn sind schnell erreichbar: Die nächste Haltestelle befindet sich nur rund 100 Meter entfernt, der Bahnhof Wasserburg etwa 3,1 km, die A96 rund 6,4 km.
Auch international bleiben Sie flexibel: Der Flughafen Friedrichshafen liegt nur ca. 15 km entfernt, St. Gallen-Altenrhein 43 km, Memmingen 74 km. Österreich erreichen Sie nach etwa 10 km, die Schweiz nach rund 20 km.
Der Freizeitwert ist außergewöhnlich hoch. Direkt vor der Haustür beginnen Wege für Jogging-, Bike- und Spaziertouren durch Wiesen, Wälder und vorbei an Seen wie Degersee und Schleinsee – beide ideal zum Baden und Angeln. Der Bodensee bietet perfekte Bedingungen für Segler und Wassersportler, inkl. nahegelegenem Hafen. In kurzer Fahrzeit erreichen Sie zudem Skigebiete der Allgäuer und Vorarlberger Alpen sowie den Arlberg, die Wiege des alpinen Skilaufs.
Kulturelle Highlights wie die Bregenzer Festspiele, Golfplätze oder die Lindauer Therme liegen ebenfalls nur wenige Minuten entfernt. Die Region punktet mit intakter Natur, mildem Mikroklima und hoher Lebensqualität – ideal für alle, die naturnah wohnen und zugleich bestens angebunden sein möchten.
Grundriss
Erdgeschoss
>
>
Obergeschoss
>
>
Dachgeschoss
>
>
Untergeschoss
>
>
Adresse
88131 Lindau (Bodensee)
Interessante Orte
Preis- und Lageinformationen
Preistrend für Bestandsimmobilien in Lindau (Bodensee)