Dieses Einfamilienhaus verfügt über einen klassischen und gut durchdachten Grundriss, welcher die Privatsphäre und soziale Bereiche geschickt miteinander verbindet.
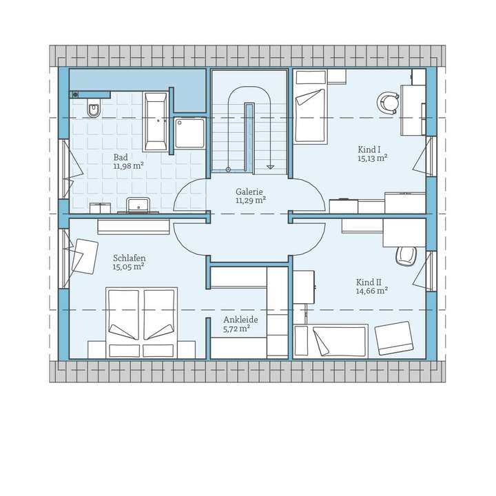
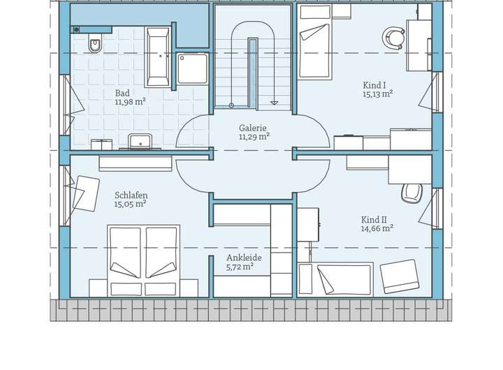
2 Kinderzimmer, 1 Elternschlafzimmer mit Ankleide, sowie ein weiteres Gästezimmer/Büro bieten ausreichend Platz für die ganze Familie.
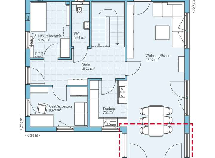
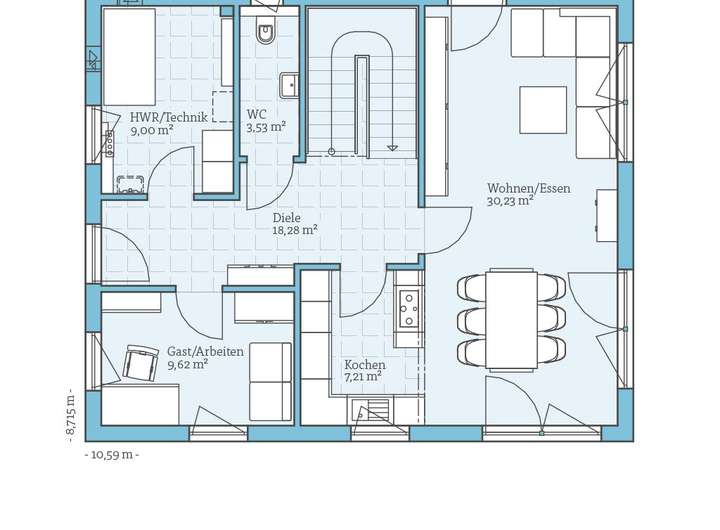
Der lichtdurchflutete Wohn/Essbereich mit angrenzender offener Küche laden zum Verweilen ein.
Das perfekt geschnittene Grundstück lässt die Bebauung mit einer Garage oder einem Carport auf der Grenze zu.
Zum Verweilen bietet die Terrasse und der Garten ausreichend Platz.
Zu dem angebotenen Preis kommen lediglich die zu erwartenden Baunebenkosten, sowie die Kaufnebenkosten hinzu.
Gerne unterstütze ich Sie bei der Vergabe der Anschluss-, u. Erdarbeiten.
Wertvoller Baugrund, perfekt geplant, optimal genutzt
86579 Waidhofen
Die vollständige Adresse der Immobilie erhalten Sie vom Anbieter.
Auf Karte anzeigen
Die vollständige Adresse der Immobilie erhalten Sie vom Anbieter.
Finanzierungszertifikat
In nur zwei Minuten zu Ihrem persönlichen Finanzierungszertifkat.
Infos
| Haustyp | Einfamilienhaus |
|---|---|
| Etagenzahl | 2 |
| Wohnfläche ca. | 134 m2 |
| Grundstücksfläche | 351 m2 |
| Zimmer | 5 |
| Schlafzimmer | 3 |
| Badezimmer | 1 |
Kosten
| Kaufpreis |
589.000 € |
|---|---|
| Provision | Nein |
Finanzierungsrechner:
Kaufpreis:
600.000 €
Eigenkapital:
600.000 €
Monatliche Rate
0 €
Effektiver Jahreszins
0 %
Sollzinsbindung
10 Jahre
Bausubstanz & Energieausweis
| Bauphase | Haus in Planung (projektiert) |
|---|---|
| Qualität der Austattung | Gehoben |
| Heizungsart | Wärmepumpe |
Beschreibung des Objekts
Ausstattung
Das Haus ist mit modernster Heiz-, u. Lüftungstechnik der Firma Stiebel Eltron ausgestattet.
Haustechnik die dem Stand 2025 und der weiteren Zukunft entspricht.
Das Haus wird ,,schlüsselfertig,, angeboten, lediglich die Küche und Ihre persönlichen Möbel fehlen zum Einzug.
Lage
Waidhofen ist eine charmante Gemeinde im Landkreis Neuburg-Schrobenhausen in Bayern.
Die gute Verkehrsanbindung ermöglicht schnelle Wege in die umliegenden Städte und Regionen.
Waidhofen liegt an der Bundesstraße 300 (Augsburg-Regensburg).
Die Lage in Waidhofen vereint die Vorteile des Landlebens mit der Nähe zu städtischen Annehmlichkeiten.
Sonstige Angaben
Zu mehr Informationen können Sie sich gerne jederzeit bei mir melden.
Die Abbildungen können Sonderbauteile enthalten, welche nicht im Preis enthalten sind.
Grundriss
Erdgeschoss Haus Waidhofen
>
>
Dachgeschoss Haus Waidhofen
>
>
Erdgeschoss mit optionalem Erk
>
>
Adresse
86579 Waidhofen
Interessante Orte
Preis- und Lageinformationen
Preistrend für Bestandsimmobilien in Waidhofen