In idyllischer Randlage von Schalksmühle liegt dieses repräsentative Einfamilienhaus aus dem Jahr 1952. Das Objekt wurde in massiver Bauweise auf einem 5.167 m² großen Grundstück errichtet und verfügt über eine Wohnfläche von rd. 145 m².
In den vergangenen Jahren haben die Eigentümer zahlreiche Modernisierungen und energetische Verbesserungen vorgenommen. So wurden im Jahr 2001 die Fenster ausgetauscht und zwischen 2001 bis 2017 alle Heizkörper erneuert. Zudem wurde neben einer Photovoltaikanlage im Jahr 2020 eine Solar-Thermieanlage zur Warmwasser- und Heizungsunterstützung 2013 errichtet. Das Badezimmer stammt aus dem Jahr 2021 und wurde im Zuge der Renovierung mit einer Fußbodenheizung ausgestattet. Die letzte Geschossdecke verfügt zusätzlich über eine Schüttdämmung zur Isolierung der darunterliegenden Wohnräume.
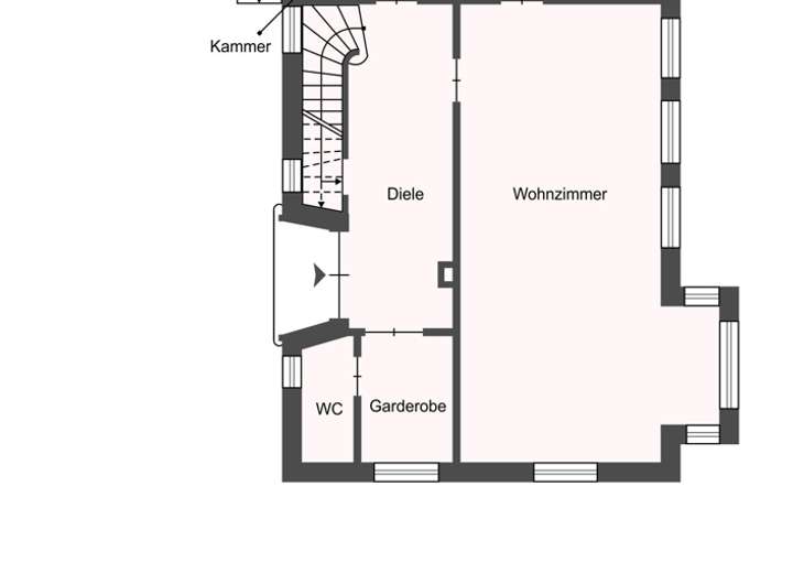
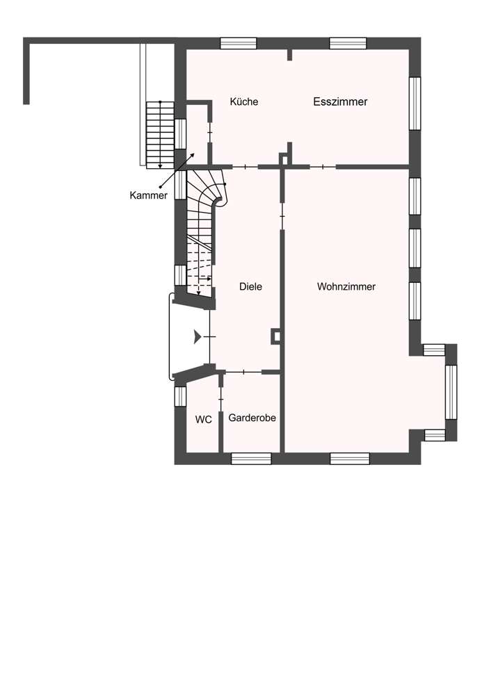
Im Erdgeschoss befinden sich die charmante Eingangsdiele, Gäste-WC, Küche und ein großes Wohnzimmer (rd. 43 m²) mit schön gestaltetem Kaminofen. Von der Küche aus gelangt man über eine vorgelagerte Veranda in den Garten mit einer Terrassenanlage (rd. 60 m²) in Südlage.
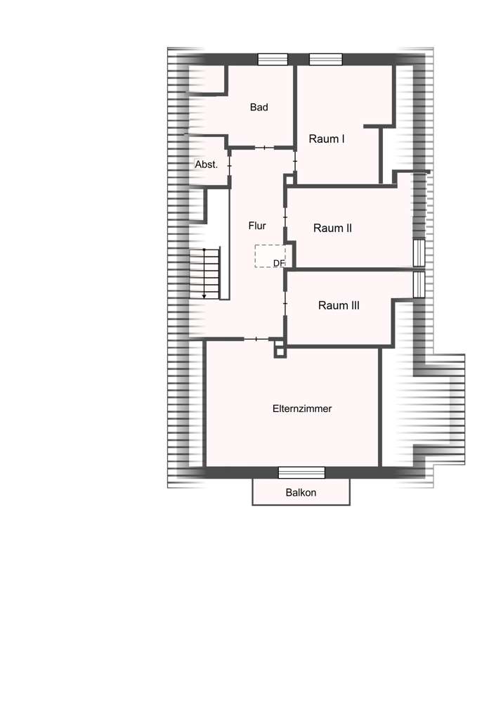
Das Dachgeschoss verfügt über insgesamt vier (Schlaf)-Räume in unterschiedlichen Größen und das Hauptbad. An der Giebelseite ist ein Balkon angebaut, der von einem der Schlafräume erreichbar ist.
Das Gebäude ist komplett unterkellert. Auf dem Grundstück befinden sich mehrere Pkw-Stellplätze, davon einer mit Kfz Ladestation. Eine Garage ist ebenfalls vorhanden.
Gerne präsentieren wir Ihnen dieses schöne Objekt in einem persönlichen Besichtigungstermin.
Repräsentatives Einfamilienhaus - Keller - Garage - Terrassen - Garten -
58579 Schalksmühle
Die vollständige Adresse der Immobilie erhalten Sie vom Anbieter.
Auf Karte anzeigen
Die vollständige Adresse der Immobilie erhalten Sie vom Anbieter.
Finanzierungszertifikat
In nur zwei Minuten zu Ihrem persönlichen Finanzierungszertifkat.
Infos
| Haustyp | Einfamilienhaus |
|---|---|
| Etagenzahl | 1 |
| Wohnfläche ca. | 145 m2 |
| Nutzfläche | 100 m2 |
| Grundstücksfläche | 5.167 m2 |
| Bezugsfrei ab | nach Absprache |
| Zimmer | 5 |
| Schlafzimmer | 4 |
| Badezimmer | 1 |
| Garage/Stellplatz | Außenstellplatz |
| Anzahl Garage/Stellplatz | 2 |
Kosten
| Kaufpreis |
479.000 € |
|---|---|
| Provision |
3,57 % (3 % zzgl. 19 % MwSt.) Nach Abschluss des notariellen Kaufvertrags ist eine Maklercourtage in Höhe von 3,57 % an Martin-Perez Immobilien GmbH fällig. |
Finanzierungsrechner:
Kaufpreis:
600.000 €
Eigenkapital:
600.000 €
Monatliche Rate
0 €
Effektiver Jahreszins
0 %
Sollzinsbindung
10 Jahre
Bausubstanz & Energieausweis
| Baujahr | 1952 |
|---|---|
| Objektzustand | Gepflegt |
| Heizungsart | Zentralheizung |
| Wesentliche Energieträger | Öl |
| Energieausweis | liegt vor |
| Energieausweistyp | Bedarfsausweis |
| Energieverbrauchskennwert | 331,6 kWh/(m²*a) |
| Energieeffizienzklasse | H |
331,6
kWh/(m²*a)
Energieeffizienzklasse H
- A+
- A
- B
- C
- D
- E
- F
- G
- H
- 0
- 25
- 50
- 75
- 100
- 125
- 150
- 175
- 200
- 225
- >250
Beschreibung des Objekts
Ausstattung
Baujahr: 1952
Bauweise: massiv
Grundstücksfläche: 5.167 m²
Wohnfläche: rd. 145 m²
Nutzfläche: rd. 110 m²
Heizung: Öl-Zentral (1997)
Fenster: Kunststoffrahmen mit Doppelverglasung (2001) mit Schlagläden
Böden: Echtholzparkett, Fliesen, Laminat, Teppich
Wände: Tapete, Putz mit Anstrich, Fliesen
Modernisierungen:
2001 Fenster
2001 - 2017 Heizkörper
2004 Kaminofen
2010 Schlagläden
2013 Solar-Thermieanlage 5,55 KW
2014 Fassade
2015 Büro, tlw. Schlafzimmer, Flur (Böden/Wände)
2020 Photovoltaikanlage inkl. 9,6 KW Speicher
2020 Kfz Ladestation 22 KW
2021 Badezimmer inkl. Fußbodenheizung
2023 Glasfaseranschluss
2023 Garagentor
Extras: Solarthermieanlage, Photovoltaikanlage inkl. Speicher, Kaminofen, Keller, Garage, Terrassen, Garten, Stellplätze, Wald
Lage
Schalksmühle, eine kleine Stadt im Märkischen Kreis mit rd. 11.000 Einwohnern, bezeichnet sich selbst als „Berg- und Tal-Gemeinde“. Das Gemeindegebiet weist teilweise Höhenunterschiede von bis zu 300 Metern auf.
Das Objekt befindet sich im Ortsteil Dahlerbrück in naturnaher Lage unweit der Glörtalsperre. Das Stadtzentrum ist rd. 3 km entfernt und verfügt über alle Einrichtungen des täglichen Bedarfs, zum Beispiel Ärzte, Apotheken, eine Sparkasse sowie kleinere und größere Einzelhandelsgeschäfte. Kindergärten, Grundschule und eine Primusschule (bis Sek. II) sind ebenfalls im Ort vorhanden.
Mit dem Auto oder per Bus/Bahn sind die Nachbarstädte Hagen, Lüdenscheid oder Breckerfeld schnell erreichbar, auch die großen Städte des Ruhrgebiets sind nicht weit entfernt.
Sonstige Angaben
Alle in dem Exposé genannten Angaben wurden vom Eigentümer gemacht. Diese wurden mit Sorgfalt übernommen. Eine Garantie, Haftung oder Gewährleistung kann durch die Maklerfirma nicht übernommen werden und ist damit ausgeschlossen. Ihre Daten werden nur zur Bearbeitung Ihrer Anfrage gespeichert und ohne Ihre Zustimmung nicht an Dritte weitergleitet. Sie haben das Recht zu jeder Zeit Auskunft über Ihre bei uns hinterlegten Daten zu erhalten oder die Löschung dieser Daten zu verlangen, sofern dies nicht gesetzlichen Vorgaben (z. B. ordnungsgemäße Buchführung) nach Abschluss eines Kaufvertrages widerspricht. Bitte haben Sie Verständnis, dass wir Ihnen das Exposé nur nach Angabe Ihres Namens, Ihrer Adresse und Telefonnummer zusenden.
Hinweis zur Maklercourtage: Die Gesamtcourtage beträgt 6 % zzgl. 19 % MwSt., diese wird hälftig zwischen Käufer und Verkäufer geteilt. Mit Beurkundung des notariellen Kaufvertrags ist eine Käuferprovision in Höhe von 3 % zzgl. 19 % MwSt. (insgesamt 3,57 %) fällig. Mit dem Verkäufer wurde ein provisionspflichtiger Maklervertrag in gleicher Höhe abgeschlossen.
Grundriss
Kellergeschoss
>
>
Erdgeschoss
>
>
Dachgeschoss
>
>
Adresse
58579 Schalksmühle
Interessante Orte
Preis- und Lageinformationen
Preistrend für Bestandsimmobilien in Schalksmühle