Die projektierte Doppelhaushälfte verbindet modernen Wohnkomfort mit einer energieeffizienten Bauweise nach dem Effizienzhaus-40-QNG-Standard. Die Haushälfte hat eine Wohnfläche von rund 110 m² auf zwei Etagen und bietet eine durchdachte Raumaufteilung, die sowohl Familien als auch Paare anspricht.
Im Erdgeschoss befindet sich ein großzügiger Wohn- und Essbereich, der durch große Fensterflächen viel Tageslicht erhält und direkten Zugang zur sonnigen Terrasse und dem Garten bietet. Die offen gestaltete Küche ist modern ausgestattet und fügt sich harmonisch in den Wohnbereich ein. Ein Gäste-WC sowie ein praktischer Hauswirtschaftsraum mit viel Stauraum ergänzen dies.
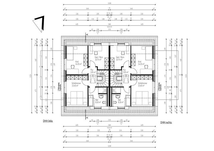
Im Obergeschoss erwarten Sie drei helle Schlafzimmer, die vielseitig genutzt werden können – ob als Elternschlafzimmer, Kinderzimmer oder Büro. Das moderne Badezimmer ist mit einer Badewanne sowie Dusche ausgestattet und sorgt für hohen Wohnkomfort.
Das Grundstück umfasst insgesamt etwa 990 m² und wird nach Wohneigentum geteilt, sodass jede Doppelhaushälfte einen Miteigentumsanteil von 1/2 erhält. Der eigene Gartenbereich bietet viel Platz für individuelle Gestaltungsideen.
Neubau-Doppelhaushälfte im KfW-40-QNG-Standard
26340 Zetel
Die vollständige Adresse der Immobilie erhalten Sie vom Anbieter.
Auf Karte anzeigen
Die vollständige Adresse der Immobilie erhalten Sie vom Anbieter.
Finanzierungszertifikat
In nur zwei Minuten zu Ihrem persönlichen Finanzierungszertifkat.
Infos
| Haustyp | Doppelhaushaelfte |
|---|---|
| Etagenzahl | 2 |
| Wohnfläche ca. | 110 m2 |
| Nutzfläche | 25 m2 |
| Grundstücksfläche | 990 m2 |
| Zimmer | 4 |
| Schlafzimmer | 3 |
| Badezimmer | 2 |
Kosten
| Kaufpreis |
398.000 € |
|---|---|
| Provision | Nein |
Finanzierungsrechner:
Kaufpreis:
600.000 €
Eigenkapital:
600.000 €
Monatliche Rate
0 €
Effektiver Jahreszins
0 %
Sollzinsbindung
10 Jahre
Bausubstanz & Energieausweis
| Heizungsart | Wärmepumpe |
|---|---|
| Energieausweis | liegt zur Besichtigung vor |
Beschreibung des Objekts
Ausstattung
+ Nachhaltige Holzmassivbauweise (CLT) mit gesundem Raumklima
+ Luft-Wasser-Wärmepumpe & Photovoltaikanlage mit Speicher
+ Fußbodenheizung in allen Wohnräumen
+ Modernes Bad mit bodentiefer Dusche & Regendusche
+ Elektrische Rollläden an allen Fenstern
+ Außenstellplätze und Fahrradschuppen
Lage
Im idyllischen Zetel entsteht das „Wohnquartier Süpkenhörn“ – ein Wohnstandort, der naturnahes Leben, hohe Lebensqualität und optimale Infrastruktur in sich vereint. Das Quartier liegt in einer ruhigen, grünen Umgebung, geprägt von Einfamilien- und Doppelhäusern sowie viel Freifläche. Diese Lage schafft eine harmonische Wohnatmosphäre und lädt zum Spazierengehen, Radfahren und zu sportlichen Aktivitäten in der Natur ein.
Im Zentrum von Zetel sind Supermärkte, Bäckereien, Cafés sowie Ärzte und Apotheken in wenigen Minuten mit dem Fahrrad oder dem Auto erreichbar. Das charmante Ortsbild von Zetel vermittelt ein Gefühl von Wohlbehagen und Vertrautheit. Gleichzeitig zeichnet sich der Standort durch eine ausgezeichnete Verkehrsanbindung aus: Über die B 437 erreicht man schnell die A 29, die direkten Anschluss an das überregionale Autobahnnetz bietet. In etwa 20–30 Min.
Grundriss
Grundriss OG
>
>
Grundriss EG
>
>
Adresse
26340 Zetel
Interessante Orte
Preis- und Lageinformationen
Preistrend für Bestandsimmobilien in Zetel