Der Preis beinhaltet das projektierte Ausbauhaus inkl. Grundstück. Im Hauspreis enthalten sind: Bodenplatte, Luft-Wärmepumpe, Sanitärrohinstallation, Elektroinstallation, Innentreppe, Estrich, komplettes Innenausbaumaterial, individuell planbare Küche, PV-Anlage inkl. Speicher. Ein Betonkeller, sowie die Energiestandards KfW40 und KfW40+ sind gegen Aufpreis möglich. Baubeginn und Fertigstellung nach Absprache. Viele Angebote in Ihrer Region verfügbar!
Nachhaltig und energieeffizient bauen mit Living Haus
54341 Fell
Die vollständige Adresse der Immobilie erhalten Sie vom Anbieter.
Auf Karte anzeigen
Die vollständige Adresse der Immobilie erhalten Sie vom Anbieter.
Finanzierungszertifikat
In nur zwei Minuten zu Ihrem persönlichen Finanzierungszertifkat.
Infos
| Haustyp | Einfamilienhaus |
|---|---|
| Wohnfläche ca. | 165 m2 |
| Grundstücksfläche | 839 m2 |
| Zimmer | 5 |
Kosten
| Kaufpreis |
529.599 € |
|---|
Finanzierungsrechner:
Kaufpreis:
600.000 €
Eigenkapital:
600.000 €
Monatliche Rate
0 €
Effektiver Jahreszins
0 %
Sollzinsbindung
10 Jahre
Bausubstanz & Energieausweis
| Baujahr | unbekannt |
|---|
Beschreibung des Objekts
Lage
54341 Fell ist eine Ortsgemeinde im Landkreis Trier-Saarburg in Rheinland-Pfalz, Deutschland. Die Gemeinde liegt malerisch an der Obermosel und gehört zur Verbandsgemeinde Konz. Fell befindet sich etwa 10 Kilometer südöstlich von Trier und grenzt unmittelbar an Luxemburg. Die Region ist geprägt von sanften Hügeln, Weinbergen und Obstgärten entlang des Moseltals. Fell bietet zahlreiche Freizeitmöglichkeiten wie Wandern, Radfahren und Weingenuss. Die Nähe zu Trier und die gute Verkehrsanbindung durch die Bundesstraße B51 sowie die Nähe zur Autobahn A602 machen Fell zu einem attraktiven Wohnort für Pendler und Naturliebhaber gleichermaßen. Die Kombination aus natürlicher Schönheit, Weinbaukultur und guter Erreichbarkeit städtischer Annehmlichkeiten verleiht Fell eine hohe Lebensqualität.
Sonstige Angaben
Entdecke das sichere Ausbauhaus-Konzept von Living Haus. Konzentriere dich auf das, was dir wichtig ist. Wir kümmern uns um den Rest. Deine Vorteile bei Living Haus:
- 18 Monate Festpreisgarantie
- bei fallenden Baupreisen sinkt auch dein Hauspreis
- 30 Jahre Garantie auf die Grundkonstruktion
- Bauversicherungen inklusive
- Zuhause-Darlehen: 250.000 EUR Sonderdarlehen bis zu 0,5% unter Marktpreis
- Bauherren-App mit allen wichtigen Infos zu deinem Projekt
- hohe Nachhaltigkeit (DGNB-Zertifizierung in Gold)
- alle Häuser sind KFN-förderfähig (bis zu 100.000 EUR Förderkredit)
- I-KON-Konzept: PV-Anlage mit Speicher inklusive
- individuell geplante Küche für dein Haus inklusive
- komplettes, individuell bemustertes Innenausbaumaterial inklusive
- 3 Tage Coaching für den Innenausbau inklusive
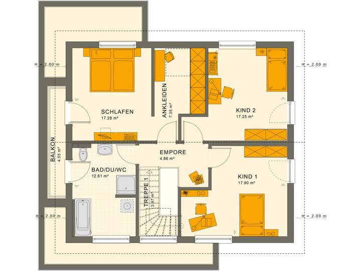
Grundriss
27253-3592-11-g
>
>
27252-3592-12-g
>
>
Adresse
54341 Fell
Interessante Orte
Preis- und Lageinformationen
Preistrend für Bestandsimmobilien in Fell