Der Preis beinhaltet das projektierte Ausbauhaus inkl. Grundstück. Im Hauspreis enthalten sind: Bodenplatte, Luft-Wärmepumpe, Sanitärrohinstallation, Elektroinstallation, Innentreppe, Estrich, komplettes Innenausbaumaterial, individuell planbare Küche, PV-Anlage inkl. Speicher. Ein Betonkeller, sowie die Energiestandards KfW40 und KfW40+ sind gegen Aufpreis möglich. Baubeginn und Fertigstellung nach Absprache. Viele Angebote in Ihrer Region verfügbar!
Nachhaltig und energieeffizient bauen mit Living Haus
66424 Homburg
Die vollständige Adresse der Immobilie erhalten Sie vom Anbieter.
Auf Karte anzeigen
Die vollständige Adresse der Immobilie erhalten Sie vom Anbieter.
Finanzierungszertifikat
In nur zwei Minuten zu Ihrem persönlichen Finanzierungszertifkat.
Infos
| Haustyp | Einfamilienhaus |
|---|---|
| Wohnfläche ca. | 165 m2 |
| Grundstücksfläche | 580 m2 |
| Zimmer | 5 |
Kosten
| Kaufpreis |
481.999 € |
|---|
Finanzierungsrechner:
Kaufpreis:
600.000 €
Eigenkapital:
600.000 €
Monatliche Rate
0 €
Effektiver Jahreszins
0 %
Sollzinsbindung
10 Jahre
Bausubstanz & Energieausweis
| Baujahr | unbekannt |
|---|
Beschreibung des Objekts
Lage
Homburg ist eine Stadt im Saarland, Deutschland, und liegt im Landkreis Saarpfalz. Sie befindet sich etwa 30 Kilometer nordöstlich von Saarbrücken und in unmittelbarer Nähe zur Grenze von Rheinland-Pfalz. Homburg ist die Kreisstadt des Saarpfalz-Kreises und eine bedeutende Universitätsstadt. Homburg hat eine gut entwickelte Infrastruktur mit Anbindungen an die Autobahnen A6 und A8, was eine schnelle Erreichbarkeit der umliegenden Regionen und Städte ermöglicht. Der Hauptbahnhof Homburg ist ein wichtiger Verkehrsknotenpunkt im Regional- und Fernverkehr. Die Stadt bietet zahlreiche Einkaufsmöglichkeiten, Restaurants und kulturelle Einrichtungen. Homburg bietet eine hohe Lebensqualität mit zahlreichen Bildungseinrichtungen, einem breiten Freizeitangebot und einer lebendigen Kulturszene. Die enge Vernetzung von Wissenschaft, Wirtschaft und Kultur macht Homburg zu einem attraktiven Standort für Einwohner und Unternehmen.
Sonstige Angaben
Entdecke das sichere Ausbauhaus-Konzept von Living Haus. Konzentriere dich auf das, was dir wichtig ist. Wir kümmern uns um den Rest. Deine Vorteile bei Living Haus:
- 18 Monate Festpreisgarantie
- bei fallenden Baupreisen sinkt auch dein Hauspreis
- 30 Jahre Garantie auf die Grundkonstruktion
- Bauversicherungen inklusive
- Zuhause-Darlehen: 250.000 EUR Sonderdarlehen bis zu 0,5% unter Marktpreis
- Bauherren-App mit allen wichtigen Infos zu deinem Projekt
- hohe Nachhaltigkeit (DGNB-Zertifizierung in Gold)
- alle Häuser sind KFN-förderfähig (bis zu 100.000 EUR Förderkredit)
- I-KON-Konzept: PV-Anlage mit Speicher inklusive
- individuell geplante Küche für dein Haus inklusive
- komplettes, individuell bemustertes Innenausbaumaterial inklusive
- 3 Tage Coaching für den Innenausbau inklusive
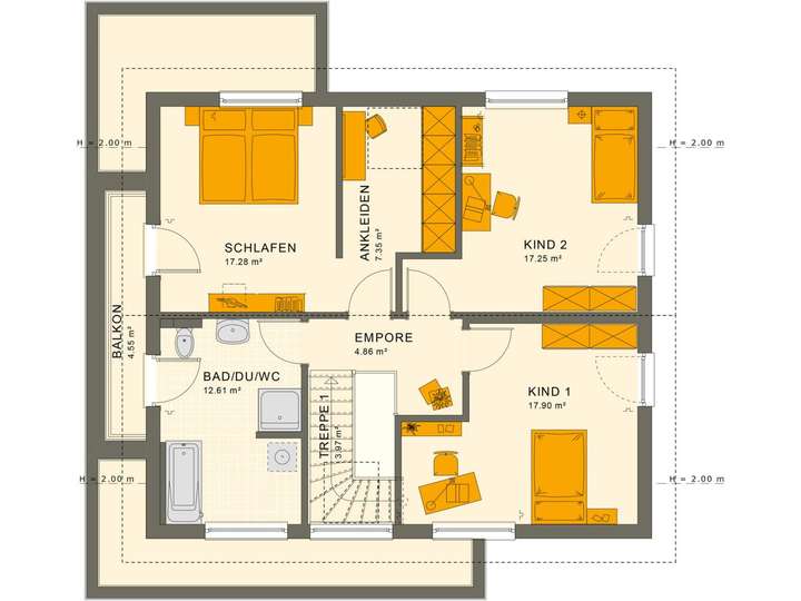
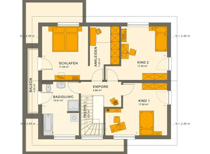
Grundriss
27839-3670-11-g
>
>
27840-3670-12-g
>
>
Adresse
66424 Homburg
Interessante Orte
Preis- und Lageinformationen
Preistrend für Bestandsimmobilien in Homburg