Der Preis beinhaltet das projektierte Ausbauhaus inkl. Grundstück. Im Hauspreis enthalten sind: Bodenplatte, Luft-Wärmepumpe, Sanitärrohinstallation, Elektroinstallation, Innentreppe, Estrich, komplettes Innenausbaumaterial, individuell planbare Küche, PV-Anlage inkl. Speicher. Ein Betonkeller, sowie die Energiestandards KfW40 und KfW40+ sind gegen Aufpreis möglich. Baubeginn und Fertigstellung nach Absprache. Viele Angebote in Ihrer Region verfügbar!
Nachhaltig und energieeffizient bauen mit Living Haus
66557 Illingen
Die vollständige Adresse der Immobilie erhalten Sie vom Anbieter.
Auf Karte anzeigen
Die vollständige Adresse der Immobilie erhalten Sie vom Anbieter.
Finanzierungszertifikat
In nur zwei Minuten zu Ihrem persönlichen Finanzierungszertifkat.
Infos
| Haustyp | Einfamilienhaus |
|---|---|
| Wohnfläche ca. | 165 m2 |
| Grundstücksfläche | 850 m2 |
| Zimmer | 5 |
Kosten
| Kaufpreis |
455.999 € |
|---|
Finanzierungsrechner:
Kaufpreis:
600.000 €
Eigenkapital:
600.000 €
Monatliche Rate
0 €
Effektiver Jahreszins
0 %
Sollzinsbindung
10 Jahre
Bausubstanz & Energieausweis
| Baujahr | unbekannt |
|---|
Beschreibung des Objekts
Lage
Illingen ist eine Gemeinde im Landkreis Neunkirchen im Saarland, Deutschland. Die Gemeinde liegt etwa 20 Kilometer nordwestlich von Saarbrücken und grenzt an die Gemeinden Merchweiler, Eppelborn und Schiffweiler. Illingen ist von einer abwechslungsreichen Landschaft geprägt, die von Wäldern, Feldern und kleinen Bächen durchzogen ist. Die Gemeinde bietet zahlreiche Freizeitmöglichkeiten wie Wandern, Radfahren und Spaziergänge in der Natur. Illingen verfügt über eine gute Infrastruktur mit Einkaufsmöglichkeiten, Restaurants, Schulen und Sporteinrichtungen. Die Nähe zu Saarbrücken und die gute Verkehrsanbindung über die Autobahn A8 machen Illingen zu einem attraktiven Wohnort für Pendler und Familien gleichermaßen. Die Kombination aus ländlicher Idylle, Naherholungsmöglichkeiten und urbanen Annehmlichkeiten verleiht Illingen eine hohe Lebensqualität.
Sonstige Angaben
Entdecke das sichere Ausbauhaus-Konzept von Living Haus. Konzentriere dich auf das, was dir wichtig ist. Wir kümmern uns um den Rest. Deine Vorteile bei Living Haus:
- 18 Monate Festpreisgarantie
- bei fallenden Baupreisen sinkt auch dein Hauspreis
- 30 Jahre Garantie auf die Grundkonstruktion
- Bauversicherungen inklusive
- Zuhause-Darlehen: 250.000 EUR Sonderdarlehen bis zu 0,5% unter Marktpreis
- Bauherren-App mit allen wichtigen Infos zu deinem Projekt
- hohe Nachhaltigkeit (DGNB-Zertifizierung in Gold)
- alle Häuser sind KFN-förderfähig (bis zu 100.000 EUR Förderkredit)
- I-KON-Konzept: PV-Anlage mit Speicher inklusive
- individuell geplante Küche für dein Haus inklusive
- komplettes, individuell bemustertes Innenausbaumaterial inklusive
- 3 Tage Coaching für den Innenausbau inklusive
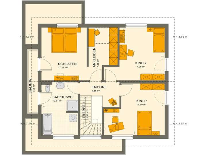
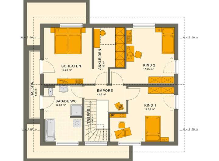
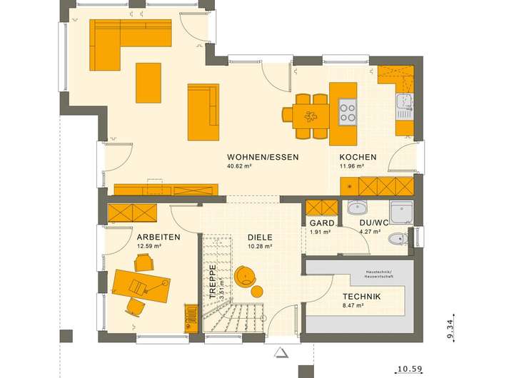
Grundriss
27942-3683-11-g
>
>
27943-3683-12-g
>
>
Adresse
66557 Illingen
Interessante Orte
Preis- und Lageinformationen
Preistrend für Bestandsimmobilien in Illingen