Der Preis beinhaltet das projektierte Ausbauhaus inkl. Grundstück. Im Hauspreis enthalten sind: Bodenplatte, Luft-Wärmepumpe, Sanitärrohinstallation, Elektroinstallation, Innentreppe, Estrich, komplettes Innenausbaumaterial, individuell planbare Küche, PV-Anlage inkl. Speicher. Ein Betonkeller, sowie die Energiestandards KfW40 und KfW40+ sind gegen Aufpreis möglich. Baubeginn und Fertigstellung nach Absprache. Viele Angebote in Ihrer Region verfügbar!
Nachhaltig und energieeffizient bauen mit Living Haus
54318 Mertesdorf
Die vollständige Adresse der Immobilie erhalten Sie vom Anbieter.
Auf Karte anzeigen
Die vollständige Adresse der Immobilie erhalten Sie vom Anbieter.
Finanzierungszertifikat
In nur zwei Minuten zu Ihrem persönlichen Finanzierungszertifkat.
Infos
| Haustyp | Einfamilienhaus |
|---|---|
| Wohnfläche ca. | 126 m2 |
| Grundstücksfläche | 543 m2 |
| Zimmer | 5 |
Kosten
| Kaufpreis |
466.899 € |
|---|
Finanzierungsrechner:
Kaufpreis:
600.000 €
Eigenkapital:
600.000 €
Monatliche Rate
0 €
Effektiver Jahreszins
0 %
Sollzinsbindung
10 Jahre
Bausubstanz & Energieausweis
| Baujahr | unbekannt |
|---|
Beschreibung des Objekts
Lage
Mertesdorf ist eine Ortsgemeinde im Landkreis Trier-Saarburg in Rheinland-Pfalz, Deutschland. Die Gemeinde liegt etwa 10 Kilometer südwestlich von Trier und gehört zur Verbandsgemeinde Ruwer. Mertesdorf befindet sich in einer malerischen Umgebung zwischen Weinbergen und Wäldern und ist Teil des Naturparks Saar-Hunsrück. Die Region bietet zahlreiche Möglichkeiten für Outdoor-Aktivitäten wie Wandern, Radfahren und Weinverkostungen. Die Nähe zu Trier, einer Stadt mit historischem Charme, kulturellen Attraktionen und einer lebendigen Atmosphäre, macht Mertesdorf zu einem attraktiven Wohnort. Die Gemeinde verfügt über eine gute Infrastruktur mit Einkaufsmöglichkeiten, Restaurants und Bildungseinrichtungen, was einen hohen Lebensstandard für seine Bewohner gewährleistet.
Sonstige Angaben
Entdecke das sichere Ausbauhaus-Konzept von Living Haus. Konzentriere dich auf das, was dir wichtig ist. Wir kümmern uns um den Rest. Deine Vorteile bei Living Haus:
- 18 Monate Festpreisgarantie
- bei fallenden Baupreisen sinkt auch dein Hauspreis
- 30 Jahre Garantie auf die Grundkonstruktion
- Bauversicherungen inklusive
- Zuhause-Darlehen: 250.000 EUR Sonderdarlehen bis zu 0,5% unter Marktpreis
- Bauherren-App mit allen wichtigen Infos zu deinem Projekt
- hohe Nachhaltigkeit (DGNB-Zertifizierung in Gold)
- alle Häuser sind KFN-förderfähig (bis zu 100.000 EUR Förderkredit)
- I-KON-Konzept: PV-Anlage mit Speicher inklusive
- individuell geplante Küche für dein Haus inklusive
- komplettes, individuell bemustertes Innenausbaumaterial inklusive
- 3 Tage Coaching für den Innenausbau inklusive
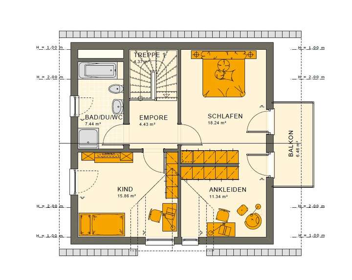
Grundriss
27976-3688-8-g
>
>
27977-3688-9-g
>
>
Adresse
54318 Mertesdorf
Interessante Orte
Preis- und Lageinformationen
Preistrend für Bestandsimmobilien in Mertesdorf