- baureifes Grundstück, bestehend aus 2 Flurstücken
- Baugenehmigung für ein 2-geschossiges Wohngebäude inklusive
- alternativ könnten auch 2 separate Einfamilienhäuser hergestellt werden
- barrierefreier Zugang zum Haus über eine rollstuhlgerechte Rampe
BAUGENEHMIGUNG INKLUSIVE! FREIES BAUGRUNDSTÜCK FÜR EIN MEHRFAMILIENHAUS MIT 4 WOHNEIHEITEN!
14612 Falkensee
Die vollständige Adresse der Immobilie erhalten Sie vom Anbieter.
Auf Karte anzeigen
Die vollständige Adresse der Immobilie erhalten Sie vom Anbieter.
Finanzierungszertifikat
In nur zwei Minuten zu Ihrem persönlichen Finanzierungszertifkat.
Infos
| Vermarktungsart | Kaufen |
|---|---|
| Grundstücksfläche | 985 m2 |
| Erschließung | Erschlossen |
| Empfohlene Nutzung | Mehrfamilienhaus |
| Grundflächenzahl (GRZ) | 0.2 |
| Geschossflächenzahl (GFZ) | 0.57 |
| Bebaubar nach | wie Nachbarbebauung |
| Verfügbar ab | sofort |
Kosten
| Miete pro Jahr |
750.000 € |
|---|---|
| Provision |
7,14 % Die Provision in Höhe von 7,14 % (inkl. 19 % USt.) des beurkundeten Kaufpreises ist mit notarieller Beurkundung vom Käufer an BBI Immobilien GmbH zu zahlen. Alle Angaben ohne Gewähr und nach Auskunft des Eigentümers. Irrtum vorbehalten! Das Angebot ist nur für den Empfänger bestimmt. Bei einer Weitergabe an Dritte haftet der Angebotsempfänger für die Provision. |
Finanzierungsrechner:
Kaufpreis:
600.000 €
Eigenkapital:
600.000 €
Monatliche Rate
0 €
Effektiver Jahreszins
0 %
Sollzinsbindung
10 Jahre
Beschreibung des Objekts
Lage
- im nördlichen Ortsteil Falkenhain
- attraktive, familienfreundliche Wohnlage, umgeben von Wäldern und Seen
- Geschäfte aller Art in der nahen Umgebung
- "Havelpark" ca. 7 km entfernt
- direkte Verbindung nach Berlin-Spandau mittels Regionalbahn oder Bus
- gute, verkehrstechnische Anbindung in alle Richtungen über die B 5 oder den Berliner Ring (A10)
- Gymnasium in unmittelbarer Nachbarschaft
- ca. 17 km nach Nauen, ca. 35 km in Potsdams Innenstadt
Sonstige Angaben
Die Provision in Höhe von 7,14 % (inkl. 19 % USt.) des beurkundeten Kaufpreises ist mit notarieller Beurkundung vom Käufer an BBI Immobilien GmbH zu zahlen.
Alle Angaben ohne Gewähr und nach Auskunft des Eigentümers. Irrtum vorbehalten! Das Angebot ist nur für den Empfänger bestimmt.
Bei einer Weitergabe an Dritte haftet der Angebotsempfänger für die Provision.
WAS IST IHRE IMMOBILE WIRKLICH WERT?
Wir bieten eine kostenlose Einschätzung Ihrer eigenen Immobilie durch unsere Experten.
Auf Wunsch sorgen wir für einen seriösen und zeitnahen Verkauf.
Weitere interessante, sowohl provisionspflichtige als auch provisionsfreie Angebote von Bauträgern, von Eigentumswohnungen über Einfamilienhäuser und Villen (Nutzung privat und gewerblich) bis hin zu renditeträchtigen Miethäusern für Investoren finden Sie unter www.bbi-immobilien.de
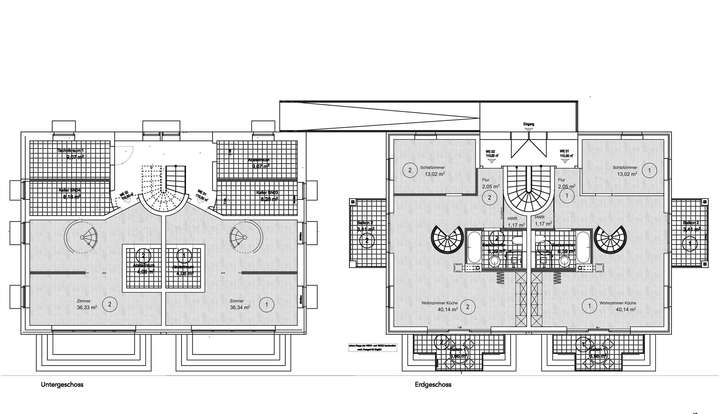
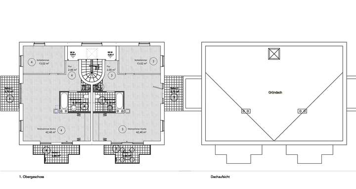
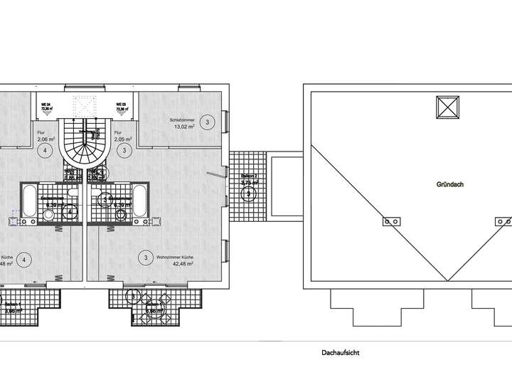
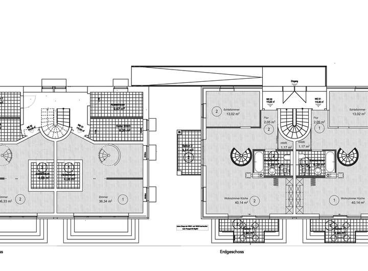
Grundriss
UNTERGESCHOSS - ERDGESCHOSS
>
>
OBERGESCHOSS - DACHAUFSICHT
>
>