Das hier angebotene Mehrfamilienhaus wurde 1893 errichtet und befindet sich im begehrten Bremer – Flüsseviertel. Die Immobilie gliedert sich, auf ca. 295 m² Wohnfläche, in drei Wohneinheiten.
Außerdem liegt für die Immobilie eine Baugenehmigung vor. Alle erforderlichen Genehmigungen wurden erteilt, sodass einer Erweiterung zu fünf Wohnungen nichts im Wege steht.
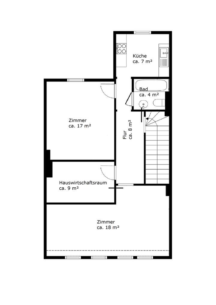
Die Maisonette-Wohnung im Obergeschoss verfügt auf einer Fläche von ca. 135 m² über fünf großzügige Zimmer, einen gemütlichen Wintergarten, zwei Badezimmer, eine Küche sowie einen Hauswirtschaftsraum.
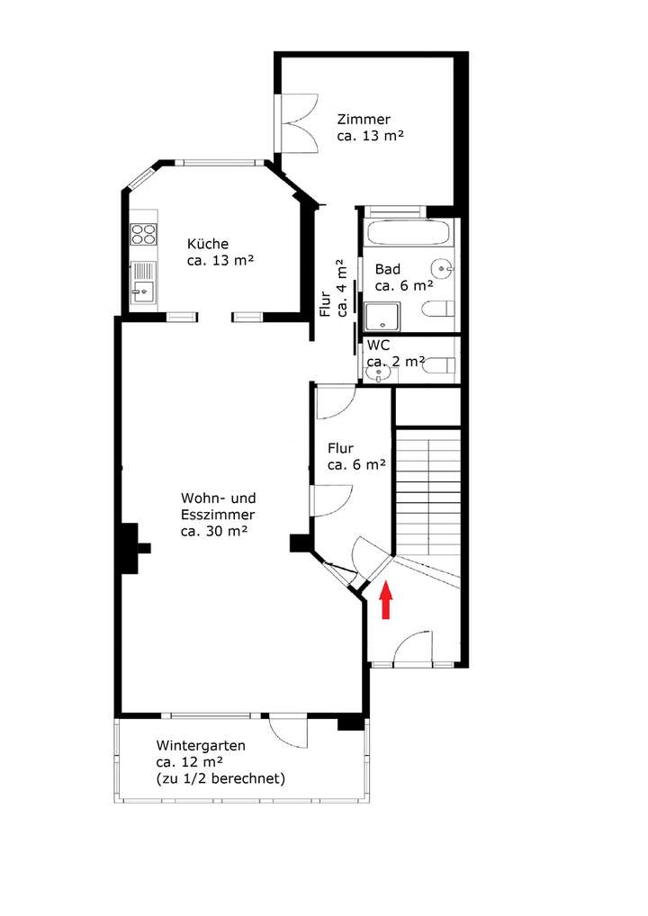
Die Wohnung im Hochparterre zeichnet sich durch ihre besondere Raumaufteilung mit zwei großzügigen Wintergärten aus.
Der lichtdurchflutete Wohn- und Essbereich mit offener Küche ist von zwei Wintergärten umgeben, welche den gesamten Bereich mit viel Tageslicht versorgen.
Des Weiteren bietet die Wohnung ein Badezimmer mit Badewanne, Dusche und Waschmaschinenanschluss, ein Gäste-WC und ein Schlafzimmer.
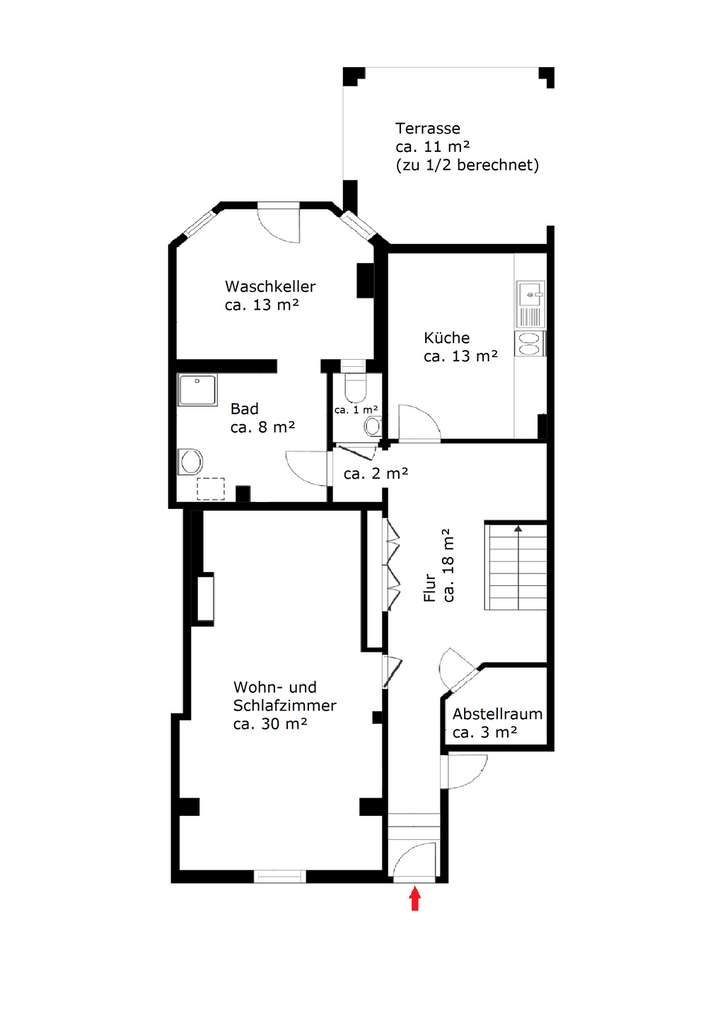
Die dritte Wohneinheit befindet sich im Souterrain der Immobilie und verfügt auf ca. 80 m² Wohnfläche über ein großes Wohn- und Schlafzimmer, eine Küche sowie ein Badezimmer mit Dusche und Waschmaschinenanschluss.
Auch hier ist ein separates WC gegeben. Außerdem ist ein Waschkeller vom Badezimmer zu begehen, welcher derzeit als Fitnessraum genutzt wird.
Abgerundet wird die Souterrain-Wohnung durch eine ca. 11 m² große überdachte Terrasse, welche von der Küche aus zu erreichen ist.
Da die Immobilie frei übergeben wird, kann mit einer hohen Jahresnettosollmiete kalkuliert werden.
Flüsseviertel / Großzügiges Mehrfamilienhaus mit Potenzial in gefragter Lage
28199 Bremen
Die vollständige Adresse der Immobilie erhalten Sie vom Anbieter.
Auf Karte anzeigen
Die vollständige Adresse der Immobilie erhalten Sie vom Anbieter.
Finanzierungszertifikat
In nur zwei Minuten zu Ihrem persönlichen Finanzierungszertifkat.
Infos
| Haustyp | Mehrfamilienhaus |
|---|---|
| Etagenzahl | 4 |
| Wohnfläche ca. | 295 m2 |
| Nutzfläche | 18 m2 |
| Grundstücksfläche | 180 m2 |
| Zimmer | 8 |
| Badezimmer | 4 |
Kosten
| Kaufpreis |
569.000 € |
|---|---|
| Provision |
5,95% inkl. MwSt. |
Finanzierungsrechner:
Kaufpreis:
600.000 €
Eigenkapital:
600.000 €
Monatliche Rate
0 €
Effektiver Jahreszins
0 %
Sollzinsbindung
10 Jahre
Bausubstanz & Energieausweis
| Baujahr | 1893 |
|---|---|
| Heizungsart | Etagenheizung |
| Wesentliche Energieträger | Gas |
| Energieausweis | liegt vor |
| Energieausweistyp | Bedarfsausweis |
| Energieverbrauchskennwert | 159,7 kWh/(m²*a) |
| Energieeffizienzklasse | E |
159,7
kWh/(m²*a)
Energieeffizienzklasse E
- A+
- A
- B
- C
- D
- E
- F
- G
- H
- 0
- 25
- 50
- 75
- 100
- 125
- 150
- 175
- 200
- 225
- >250
Beschreibung des Objekts
Ausstattung
- Drei Wintergärten
- Hauswirtschaftsräume
- Vier Badezimmer
- Separate WCs
- Einbauküchen
- Terrasse
- Gas-Etagenheizungen 1993, 1999, 2021
Lage
Das Flüsseviertel ist ein Ortsteil der Neustadt, einem Links der Weser gelegenen Stadtteil. Der Name dieses Ortsteils entstammt daher, dass die meisten der Straßen nach Flüssen benannt sind.
Die nahezu quadratische Fläche erstreckt sich von der Neustadtscontrescarpe im Norden zur Neuenlander Straße im Süden.
Im Westen und Osten wird der Ortsteil durch die Langemarckstraße und Friedrich-Ebert-Straße begrenzt. Das Straßenbild ist überwiegend durch Reihenhäuser, meist im Stil des Altbremer Hauses, geprägt.
Die zum Teil noch mit originalem Stuck versehenen Fassaden geben diesem Baustil seinen besonderen Charakter.
Das Flüsseviertel bietet eine gute Infrastruktur. Einkaufsmöglichkeiten, Apotheken, Ärzte, Schulen, Restaurants und die Geschäfte des täglichen Bedarfs sind schnell erreichbar.
Ebenfalls in der Neustadt befindet sich die "Hochschule Bremen", die "Shakespeare Company" oder das "Künstlerhaus Bremen".
Die Bremer Innenstadt und der Bremer Hauptbahnhof können in wenigen Minuten bequem mit den öffentlichen Verkehrsmitteln erreicht werden.
Zu ausgedehnten Spaziergängen am Wasser laden die "Kleine Weser" und der "Werdersee" ein.
Grundriss
Souterrain
>
>
Hochparterre
>
>
1. Obergeschoss
>
>
2. Obergeschoss
>
>
Adresse
28199 Bremen
Interessante Orte
Preis- und Lageinformationen
Preistrend für Bestandsimmobilien in Neustadt