Dieses modernisierte Reihenhaus erstreckt sich auf einer Wohnfläche von ca. 121 m² und teilt sich auf in drei Etagen.
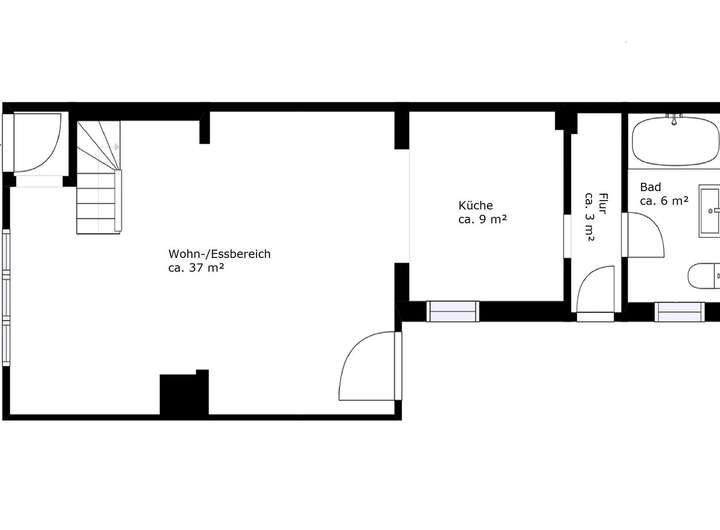
Im Erdgeschoss verfügt die Immobilie über einen geräumigen und hellen Wohn- und Essbereich, eine offene Küche und ein Tageslichtbad mit Badewanne. Des Weiteren lässt sich der Innenhof von hieraus begehen.
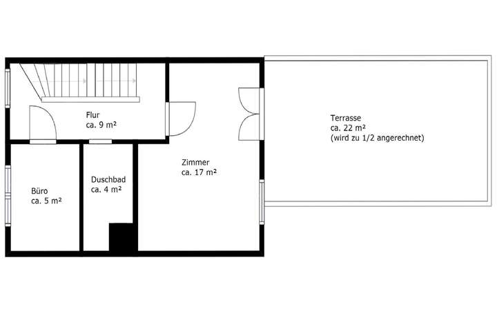
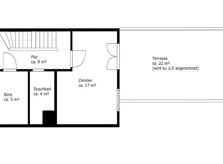
Über eine hochwertige Holztreppe gelangt man in das 1. Obergeschoss, welches sich in zwei komfortable Zimmer und ein hochwertig ausgestattetes Duschbad unterteilt. Eines der beiden Zimmer bietet direkten Zugang zur großzügigen Dachterrasse. Im Dachgeschoss, auf ca. 20 m², befindet sich ein weiteres Zimmer, welches individuell genutzt werden kann und mit viel Tageslicht versorgt wird.
Im Rahmen der umfangreichen Modernisierungsarbeiten wurde hochwertiger Eichenparkettboden sowie moderne, graue Feinsteinfliesen verlegt. Im gleichen Zuge wurde das Schalterprogramm ausgetauscht und einer neuer Sicherungskasten verbaut, alle Wände mit Feinputz versehen, das Badezimmer im Erdgeschoss und Obergeschoss komplett modernisiert. Eine neue Gas-Brennwert-Therme mit Warmwasserspeicher wurde verbaut.
Das Reihenhaus ist teilunterkellert und bietet eine zusätzliche Nutzfläche von ca. 17 m².
Schwachhausen – Attraktives Reihenhaus mit Dachterrasse in begehrter Lage
28213 Bremen
Die vollständige Adresse der Immobilie erhalten Sie vom Anbieter.
Auf Karte anzeigen
Die vollständige Adresse der Immobilie erhalten Sie vom Anbieter.
Finanzierungszertifikat
In nur zwei Minuten zu Ihrem persönlichen Finanzierungszertifkat.
Infos
| Haustyp | Reihenmittelhaus |
|---|---|
| Etagenzahl | 3 |
| Wohnfläche ca. | 121 m2 |
| Nutzfläche | 17 m2 |
| Grundstücksfläche | 95 m2 |
| Zimmer | 4 |
| Schlafzimmer | 3 |
| Badezimmer | 2 |
Kosten
| Kaufpreis |
429.000 € |
|---|---|
| Provision |
3,57% inkl. MwSt, |
Finanzierungsrechner:
Kaufpreis:
600.000 €
Eigenkapital:
600.000 €
Monatliche Rate
0 €
Effektiver Jahreszins
0 %
Sollzinsbindung
10 Jahre
Bausubstanz & Energieausweis
| Baujahr | 1919 |
|---|---|
| Letzte Sanierung | 2024 |
| Objektzustand | Modernisiert |
| Qualität der Austattung | Gehoben |
| Heizungsart | Zentralheizung |
| Wesentliche Energieträger | Gas |
| Energieausweis | liegt vor |
| Energieausweistyp | Bedarfsausweis |
| Energieverbrauchskennwert | 222,5 kWh/(m²*a) |
| Energieeffizienzklasse | G |
222,5
kWh/(m²*a)
Energieeffizienzklasse G
- A+
- A
- B
- C
- D
- E
- F
- G
- H
- 0
- 25
- 50
- 75
- 100
- 125
- 150
- 175
- 200
- 225
- >250
Beschreibung des Objekts
Ausstattung
Folgende Erneuerungen/Sanierungen wurden vorgenommen:
- Kunstofffenster mit Isolierverglasung
- Sicherungskasten
- Heizkörper
- Türen, Türzargen
- Parkettboden
- Gas-Brennwerttherme mit Warmwasserspeicher
- Wände mit Glattputz
- Fußleisten
- Schalterprogramm und Steckdosen
- Bäder
- Anstrich der Fassade
Lage
Dieses Reihenhaus befindet sich in einer der beliebtesten Wohnlagen Bremens - in Schwachhausen, Ortsteil Riensberg.
Dieser Stadtteil besticht durch seine zentrale und dennoch ruhige Lage und zeichnet sich insbesondere durch eine sehr grüne Umgebung aus - auch der Bremer Bürgerpark ist in wenigen Minuten erreichbar. Das beliebte Wohnviertel bietet diverse Einkaufsmöglichkeiten, Restaurants, Schulen und Kindergärten, die sich alle in direkter Umgebung befinden.
Die sehr gute Anbindung an die ÖPVN gewährleistet eine Erreichbarkeit der Bremer Innenstadt und des Bremer Hauptbahnhofs in ca. 15 Minuten. Auch die Autobahnen A27 und A1 lassen sich in wenigen Minuten bequem erreichen.
Grundriss
Erdgeschoss
>
>
Obergeschoss
>
>
Dachgeschoss
>
>
Adresse
28213 Bremen
Interessante Orte
Preis- und Lageinformationen
Preistrend für Bestandsimmobilien in Riensberg