- Bauen Sie jetzt Ihr Traumhaus als Einfamilienhaus ! -
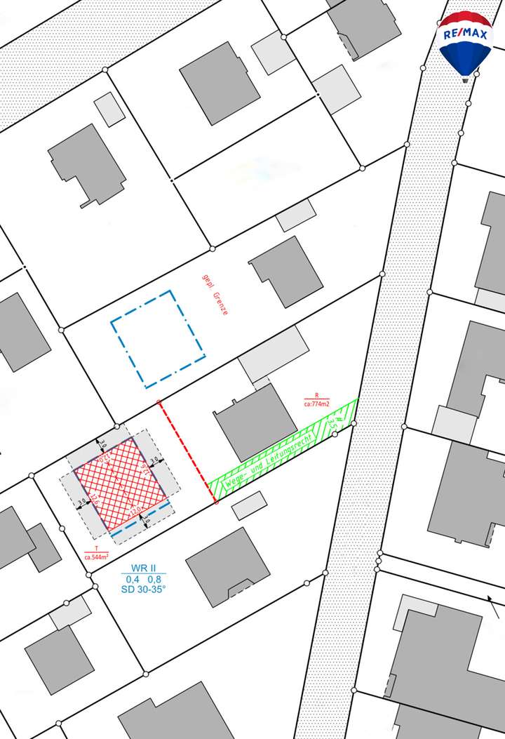
Verkauft wird ein ca. 600 m² großes bauträgerfreies Grundstück in Bielefeld-Senne, auf dem ein Ein- oder Mehrfamilienhaus mit einem Satteldach in zweigeschossiger Bauweise gebaut werden kann.
Der Bau der Immobilie erfolgt nach dem B Plan.
Auf Wunsch können wir Ihnen gerne renommierte Bauträger für Fertighäuser oder Stein auf Stein Bau empfehlen.
Für weitere Information und Details rufen Sie bitte an.
Can Joel Cömertpay
Immobilienmakler IHK RE/MAX §34c
+49 (0) 176 81 47 91 26
Wir freuen uns auf Ihren Anruf!
Die Adresse des Grundstücks wird auf Wunsch des Eigentümers erst bei einer Terminvergabe bekannt gegeben.
Wir bitten um Verständnis.
- Bauen Sie jetzt Ihr Traumhaus als Ein- oder Mehrfamilienhaus in Bielefeld-Senne ! -
33659 Bielefeld
Die vollständige Adresse der Immobilie erhalten Sie vom Anbieter.
Auf Karte anzeigen
Die vollständige Adresse der Immobilie erhalten Sie vom Anbieter.
Finanzierungszertifikat
In nur zwei Minuten zu Ihrem persönlichen Finanzierungszertifkat.
Infos
| Vermarktungsart | Kaufen |
|---|---|
| Grundstücksfläche | 600 m2 |
| Erschließung | Erschlossen |
| Empfohlene Nutzung | Einfamilienhaus, Mehrfamilienhaus |
| Bebaubar nach | Bebauungsplan |
Kosten
| Miete pro Jahr |
199.999 € |
|---|---|
| Provision |
zuzüglich 7,14% Maklerprovision inkl. 19% MwSt. |
Finanzierungsrechner:
Kaufpreis:
600.000 €
Eigenkapital:
600.000 €
Monatliche Rate
0 €
Effektiver Jahreszins
0 %
Sollzinsbindung
10 Jahre
Beschreibung des Objekts
Lage
Dieses Grundstück liegt in Bielefeld-Senne.
Es liegt in einer attraktiven Wohngegend mit guter Infrastruktur.
Einkaufsmöglichkeiten, Schulen, Kindergärten und öffentliche Verkehrsmittel befinden sich in unmittelbarer Nähe und ermöglichen Ihnen eine bequeme Erreichbarkeit aller wichtigen Einrichtungen des täglichen Bedarfs.
Durch die Nähe zu der A2 und der A33 besteht eine gute Verkehrsanbindung nach Dortmund, Hannover, Paderborn, Osnabrück und die weitere Umgebung.
Sonstige Angaben
RE/MAX Bielefeld-Mitte
Ihre Zufriedenheit liegt uns am Herzen.
Wenn Sie innerhalb von 24 Stunden auf Ihre Anfrage keine Rückantwort erhalten haben, rufen Sie bitte unsere Hotline unter der Nummer: +49 521 305 151 80 an oder schreiben Sie uns eine E-Mail an: bielefeld-mitte@remax.de
Bitte haben Sie Verständnis dafür, dass wir nur Anfragen mit kompletten Kontaktdaten (Name, Anschrift, Telefonnummer und E-Mail Adresse) beantworten können.
Wenn Sie jemanden kennen, der jetzt oder später seine Immobilie verkaufen möchte, melden Sie sich gerne bei uns.
Es winkt Ihnen eine Tippgeberprovision.
Wer wir sind?
- Weltweit in über 100 Ländern mit über 100.000 RE/MAX Immobilienmaklern die Nummer 1.
- Wir vermitteln Ihre Immobilie und haben über 1.000 Suchkunden, die sofort kaufen können.
- Was ist Ihre Immobilie wert? Kostenlose Wertermittlung Ihrer Immobilie durch unsere geschulten RE/MAX Immobilienmakler!
Sie möchten auch in den Traumberuf als RE/MAX Immobilienmakler einsteigen, dann bewerben Sie sich JETZT!
RE/MAX Immobilienmakler (w/m/d)
Gerne auch als Quereinsteiger oder als geförderter Umschüler.
Bewerben Sie sich, wenn Sie im Umkreis von 100 km wohnen.
RE/MAX Bielefeld-Mitte - Immo Estate GmbH
Hagenbruchstr. 2b
33602 Bielefeld
Telefon: +49 521 305 151 80
E-Mail: bielefeld-mitte@remax.de
Wir freuen uns auf die Zusammenarbeit.
Da wir Objektangaben nicht selbst ermitteln, übernehmen wir hierfür keine Gewähr. Dieses Exposé ist nur für Sie persönlich bestimmt. Eine Weitergabe an Dritte ist an unsere ausdrückliche Zustimmung gebunden und unterbindet nicht unseren Provisionsanspruch bei Zustandekommen eines Vertrages. Alle Gespräche sind über unser Büro zu führen. Bei Zuwiderhandlung behalten wir uns Schadenersatz bis zur Höhe der Provisionsansprüche ausdrücklich vor. Zwischenverkauf ist nicht ausgeschlossen.
Die Informationen in diesem Exposé berufen auf Angaben, die wir vom Veräußerer und / oder Dritten erhalten haben.
Für deren Richtigkeit und Vollständigkeit übernehmen wir keine Haftung.
Grundriss
Teilungskonzept
>
>