Das stets gut gepflegte Haus wird durch einen großzügigen Eingangsbereich betreten. Rechts geht es dann ins Schlafzimmer und von hier aus ins Bad mit großzügiger Badewanne. Ein WC befindet sich auch auf der Etage und ist über den Eingangsflur zu erreichen. Hinter dem WC befindet sich ein kleiner Abstellraum. Sowohl im WC als auch im Abstellraum gibt es Anschluss für die Waschmaschine.
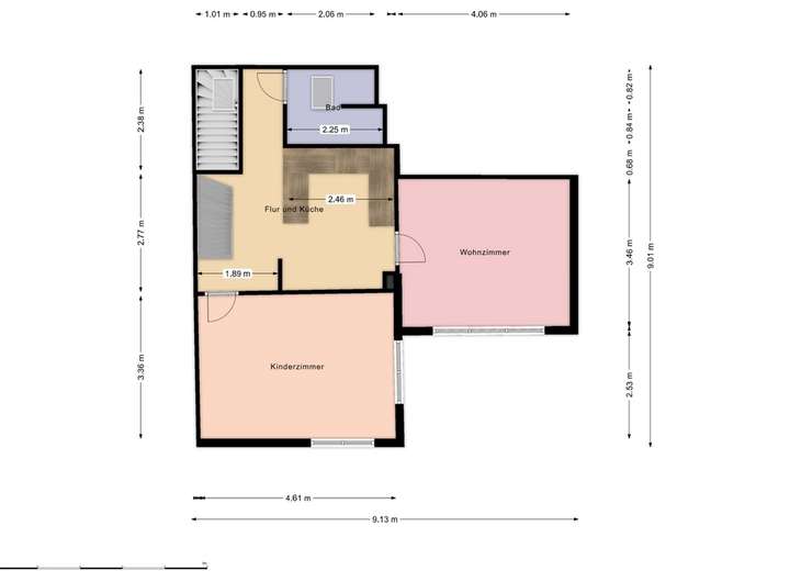
Über den Eingangsflur gelangt man über die Treppe ins Obergeschoss. Direkt am Treppenaufgang befindet sich im OG das Bad mit WC und Dusche. Das Herzstück des Hauses ist die offene Küche. Auf dieser Etage befinden sich auch zwei separate Zimmer, die jeweils über die Küche betreten und als Schlaf-, Wohn- oder Esszimmer genutzt werden können.
Über eine offene Treppe in der Küche gelangt man ins ausgebaute Dachgeschoss. Hier befindet sich das Atelier und der Zugang zur Dachterrasse. Der Blick auf die Basilika und die Nähe zur Nahe laden zu gemütlich Abenden im Freien ein.
Das Stadthaus ist perfekt geeignet für Paare oder eine kleine Familie.
- Baujahr 1950/2000 (Alt- und Neubau),
- 4 Zimmer
- Gesamtfläche 145 m²
- Grundstücksfläche 67 m²
- Wohnfläche 113 m²
- Kernsanierung 2004 (Fassade, Fenster, Leitungen)
- Heizung: Gas (Austausch der Gastherme und Kaminsanierung 2022)
- Lage: Beste Binger Blicklage! Unweit der Nahe, Nähe Basilika, Bücherei, Bürgerbüro und Fußgängerzone.
- 2 Bäder
- Gäste WC
- Dachterrasse (15,5 m²)
Reserviert: Stadtleben mit wunderbarem Blick genießen!
Zehnthofstraße 4,
55411 Bingen am Rhein
Auf Karte anzeigen
Finanzierungszertifikat
In nur zwei Minuten zu Ihrem persönlichen Finanzierungszertifkat.
Infos
| Haustyp | Reiheneckhaus |
|---|---|
| Etagenzahl | 2 |
| Wohnfläche ca. | 113 m2 |
| Nutzfläche | 145 m2 |
| Grundstücksfläche | 67 m2 |
| Bezugsfrei ab | 1.4.2026 |
| Zimmer | 4 |
| Schlafzimmer | 2 |
| Badezimmer | 2 |
Kosten
| Kaufpreis |
249.000 € |
|---|---|
| Provision | Nein |
Finanzierungsrechner:
Kaufpreis:
600.000 €
Eigenkapital:
600.000 €
Monatliche Rate
0 €
Effektiver Jahreszins
0 %
Sollzinsbindung
10 Jahre
Bausubstanz & Energieausweis
| Baujahr | 1950 |
|---|---|
| Letzte Sanierung | 2023 |
| Bauphase | Haus fertig gestellt |
| Objektzustand | Gepflegt |
| Qualität der Austattung | Normal |
| Heizungsart | Gas-Heizung |
| Wesentliche Energieträger | Gas |
| Energieausweis | liegt zur Besichtigung vor |
Beschreibung des Objekts
Ausstattung
- Bodenbelag: EG Parkett; OG und Dachgeschoss: hochwertiges Vinyl (2024)
- Ferngesteuerte solarbetriebene Rollläden an allen Fenstern (2023)
- Heizung: eine hochwertige Gas-Brennwertkombitherme mit Touchdisplay von Viessmann
- Küche
Lage
Das Haus liegt im Herzen Bingens, unweit der Nahe und mit unverbautem Blick auf die Basilika. Spontan ein Eis im Rialto, eine Pizza bei Calimero, ein Buch aus der Bücherei oder einen Spaziergang an der Nahe oder dem Rhein? Bei dieser Lage kein Problem! Das Haus liegt ganz in der Nähe der Fußgängerzone, Kitas, Schulen (Grundschule, zwei Gymnasien) sowie Freizeiteinrichtungen (Fitnessstudio, Vereine) sind fußläufig erreichbar. Die Bahnhöfe (Haupt- und Stadtbahnhof) sind in 15 Minuten Fußweg zu erreichen. Der Stadtkern bietet Einkaufmöglichkeiten für den täglichen Bedarf, reichlich Gastronomie, einen tollen Wochenmarkt und das gesamte Jahr über ein vielfältiges kulturelles Angebot.
Grundriss
EG_Grundriss
>
>
Grundriss_OG
>
>
Grundriss_DG
>
>
Adresse
Zehnthofstraße 4, 55411 Bingen am Rhein
Interessante Orte
Preis- und Lageinformationen
Preistrend für Bestandsimmobilien in Bingen am Rhein