Wohnen und/oder vermieten
Die Erdgeschosswohnung befindet sich in einem normalen Wohnzustand.
Der Eingang kann schnell stufenlos hergerichtet werden.
Die Dachgeschosswohnung wurde 2001 gebaut und luxuriös mit allen erdenklichen Annehmlichkeiten ausgestattet. Siehe Fotos !
Ein Gebäude - 2 separatae Wohneinheiten mit jeweils eigener Hofzufahrt und Garage bzw. Doppelgarage.
Erdgeschoss 103,23 qm Wfl.
Dachgeschoss 127,01 qm Wfl.
2 zusätzliche Erdgeschoss- Zimmer mit 26,66 qm Wfl. können von der Erdgeschoss oder der Dachgeschosswohnung bewohnt werden.
Der Dachstuhl befindet sich lt Gutachten in einem guten Zustand.
Wohnen & vermieten: Ihr Zuhause mit Zusatzkomfort
Hornbosteler Str. 23 A 23,
29323 Wietze
Auf Karte anzeigen
Finanzierungszertifikat
In nur zwei Minuten zu Ihrem persönlichen Finanzierungszertifkat.
Infos
| Haustyp | Mehrfamilienhaus |
|---|---|
| Etagenzahl | 2 |
| Wohnfläche ca. | 262 m2 |
| Nutzfläche | 45 m2 |
| Grundstücksfläche | 1.255 m2 |
| Bezugsfrei ab | Februar |
| Zimmer | 8 |
| Badezimmer | 2 |
| Garage/Stellplatz | Garage |
| Anzahl Garage/Stellplatz | 3 |
Kosten
| Kaufpreis |
327.500 € |
|---|---|
| Preis für Garage/Stellplatz | 0 € |
| Provision |
4,76 % inkl. MwSt. Verdient und fällig mit Unterzeichnung des notariellen Kaufvertrages. Mit dem Verkäufer besteht ebenfalls eine Maklervereinbarung in gleicher Höhe. |
Finanzierungsrechner:
Kaufpreis:
600.000 €
Eigenkapital:
600.000 €
Monatliche Rate
0 €
Effektiver Jahreszins
0 %
Sollzinsbindung
10 Jahre
Bausubstanz & Energieausweis
| Baujahr | unbekannt |
|---|---|
| Heizungsart | Zentralheizung |
| Wesentliche Energieträger | Gas |
| Energieausweis | liegt zur Besichtigung vor |
Beschreibung des Objekts
Ausstattung
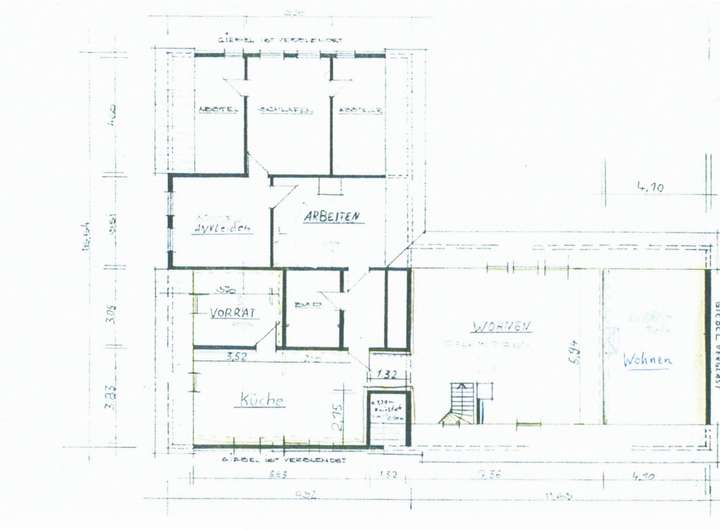
Erdgeschoss
Wohnen 21,,39 qm
Schlafen 18,95 qm
Kind 13,14 qm
Küche 18,67 qm
Bad 6,16 qm
Diele 12,99 qm
Flur 4,60
Vorrat 7,33 qm
gesamt: 103,23 qm Wfl.
Dachgeschoss- Wohnung Bj. 2001
insgesamt 127,01 qm Wfl.
Plus 2 Wohnräume ( 26,66 qm ) vom Erdgeschoss oder der Dachgeschosswohnung zu nutzen.
* Dachgeschoss
* Einbauküche
* Fußbodenheizung
* Klimaanlage & Heizgeräte
* Velux Dachfenster, elektr.
* ferngesteuerte Verdunkelung
* Die Fotos sprechen für sich !
* elektrisches, per Fernbedienung
gesteuertes Hoftor
* Dachgeschoss - Doppelgarage -
elektrisches Garagentor
* Erdgeschoss - Einzelgarage -
elektrisches Garagentor
Zentral - Heizug Baujahr 2002
Lage
Wietze ist eine attraktive Gemeinde und u.a. durch sein Ölmuseum und einen großen Arbeitgeber bekannt.
Sonstige Angaben
Das Haus wird komplett frei und besenrein übergeben.
Das gesamte Objekt eignet sich für Generationswohnen oder als Vermietungsobjekt.
Platz ist genug !
Wichtig ist uns vor/während der Bessichtigung die Vorlage einer allgemeinen Finanzierungsbestätigung.
Besichtigungen vereinbaren wir auch gerne am Wochenende.
Adresse
Hornbosteler Str. 23 A 23, 29323 Wietze
Interessante Orte
Preis- und Lageinformationen
Preistrend für Bestandsimmobilien in Wietze