Begehung: https://youtube.com/watch?v=bRNx0b7GbKk&si=cjUvK8x7p1ADhK1P
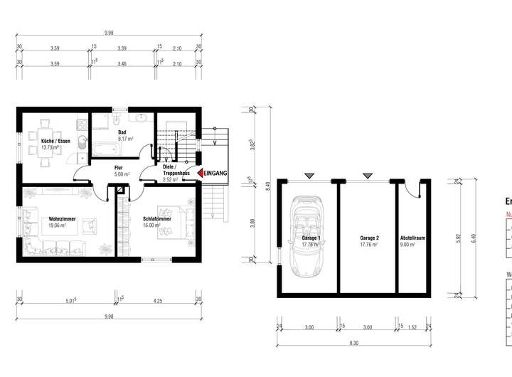
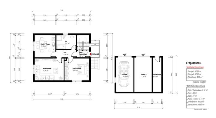
Das Einfamilienhaus aus dem Baujahr 1959 besticht durch eine Wohnfläche von 120 m² auf einem Grundstück von 918 m². Mit einer Garage und zwei Parkplätzen bietet die Immobilie ausreichend Platz für Fahrzeuge. Das Satteldach und der gepflegte Zustand des Gebäudes unterstreichen den Charme dieser Immobilie.
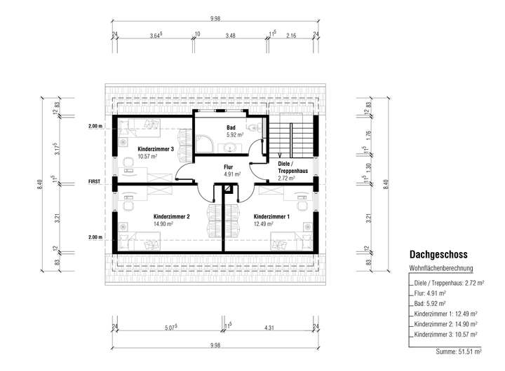
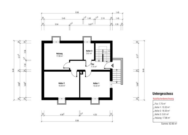
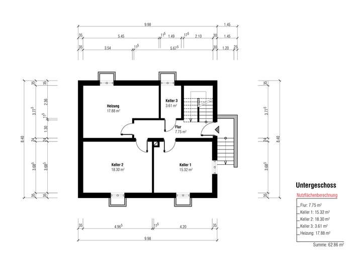
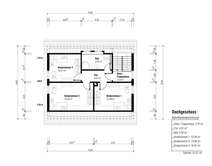
Im Inneren des Hauses erwarten Sie insgesamt 4 Schlafzimmer, 2 Badezimmer und 4 Zimmer insgesamt. Das Dachgeschoss bietet mit einer Fläche von 51.51 m² zusätzlichen Raum für individuelle Gestaltungsmöglichkeiten. Der Keller mit einer Fläche von 62.86 m² bietet weiteren Stauraum und Möglichkeiten zur Nutzung.
Die Öl-Heizung sorgt für angenehme Wärme im gesamten Gebäude und unterstreicht die gute Ausstattung dieser Immobilie. Mit 2 Etagen bietet das Haus genügend Platz für die gesamte Familie. Die großzügige Grundstücksfläche lädt zum Verweilen im Freien ein und bietet Raum für individuelle Gestaltungsideen. Insgesamt präsentiert sich diese Immobilie als ein ideales Zuhause für eine Familie, die Wert auf traditionellen Wohnkomfort legt.
Zentral gelegenes EFH, mit zusätzlichen Baugrundstück, sofort frei!
86836 Untermeitingen
Die vollständige Adresse der Immobilie erhalten Sie vom Anbieter.
Auf Karte anzeigen
Die vollständige Adresse der Immobilie erhalten Sie vom Anbieter.
Finanzierungszertifikat
In nur zwei Minuten zu Ihrem persönlichen Finanzierungszertifkat.
Infos
| Haustyp | Einfamilienhaus |
|---|---|
| Etagenzahl | 2 |
| Wohnfläche ca. | 120 m2 |
| Nutzfläche | 107 m2 |
| Grundstücksfläche | 918 m2 |
| Bezugsfrei ab | sofort verfügbar |
| Zimmer | 4 |
| Schlafzimmer | 4 |
| Badezimmer | 2 |
| Garage/Stellplatz | Garage |
| Anzahl Garage/Stellplatz | 3 |
Kosten
| Kaufpreis |
0 € |
|---|---|
| Provision |
4,76 inkl. MwSt. |
Finanzierungsrechner:
Kaufpreis:
600.000 €
Eigenkapital:
600.000 €
Monatliche Rate
0 €
Effektiver Jahreszins
0 %
Sollzinsbindung
10 Jahre
Bausubstanz & Energieausweis
| Objektzustand | Gepflegt |
|---|---|
| Qualität der Austattung | Einfach |
Beschreibung des Objekts
Lage
Das Einfamilienhaus befindet sich am Stadtrand von Untermeitingen, einer ruhigen und familienfreundlichen Gemeinde in der Nähe von Augsburg. Der Stadtteil zeichnet sich durch seine grünen Felder und Wiesen aus, die zu ausgedehnten Spaziergängen und Fahrradtouren einladen. In unmittelbarer Nähe befinden sich auch einige Einkaufsmöglichkeiten und Schulen, was das Leben in diesem Teil der Stadt besonders attraktiv macht.
Untermeitingen selbst ist eine charmante Kleinstadt mit einem historischen Stadtkern und einer lebendigen Gemeinschaft. Die Stadt bietet eine gute Anbindung an Augsburg, eine der ältesten Städte Deutschlands, die für ihre kulturellen Sehenswürdigkeiten und vielfältige Gastronomie bekannt ist. Mit dem Auto ist man in nur wenigen Minuten in der Innenstadt von Augsburg, wo sich auch zahlreiche Einkaufsmöglichkeiten und Freizeitangebote befinden.
Die Region um Untermeitingen besticht durch ihre idyllische Landschaft und ihr kulturelles Erbe. Durch die Nähe zu den Alpen und dem Allgäu bietet die Umgebung zahlreiche Möglichkeiten für Outdoor-Aktivitäten wie Wandern, Skifahren und Mountainbiken. Zudem sorgen die vielen traditionellen Feste und Veranstaltungen in der Region für ein lebendiges und abwechslungsreiches Freizeitangebot für die ganze Familie.
Sonstige Angaben
Sollten wir Ihr Interesse geweckt haben und Sie haben Fragen oder möchten einen Besichtigungstermin vereinbaren, erreichen Sie uns unter den folgenden Kontaktdaten.
Wir freuen uns von Ihnen zu hören!
*************** Wichtig ***************
Für die Zusendung des Exposés / weitere Informationen zum Objekt sowie einen Terminwunsch bitte Ihre Daten im Kontaktformular angeben - kompletter Name - komplette Anschrift - E-Mail Adresse - Telefon - und /oder Mobilnummer
*********** Danke für Ihr Verständnis ***********
Um eine zeitnahe Bearbeitung Ihrer Anfrage zu gewährleisten, bitten wir Sie den Erstkontakt ausschließlich über das Email-Kontaktformular zu gestalten.
Ihre Anfrage wird in der Regel innerhalb von 48 Stunden bearbeitet. Bitte prüfen Sie auch gegebenenfalls Ihren Spamordner im E-Mail Postfach
Grundriss
UG
>
>
EG
>
>
DG
>
>
Lageplan
>
>
Lageplan - Projektentwicklung
>
>
Adresse
86836 Untermeitingen
Interessante Orte
Preis- und Lageinformationen
Preistrend für Bestandsimmobilien in Untermeitingen