Dieses großzügige Zweifamilienhaus aus dem Jahr 1992 befindet sich auf einem beeindruckenden Grundstück von rund 1.192 m² und bietet mit insgesamt ca. 299 m² Wohnfläche sowie zusätzlichen 70 m² Nutzfläche ein außergewöhnlich hohes Raumangebot. Die Immobilie überzeugt durch ihre vielseitigen Nutzungsmöglichkeiten: Sie eignet sich ideal als Mehrgenerationenhaus, für große Familien oder zur Kombination aus Wohnen und Gewerbe. Die solide Bauweise, eine Gaszentralheizung – deren Wärmetauscher im Jahr 2024 erneuert wurde – sowie doppeltverglaste Kunststofffenster schaffen eine verlässliche Grundlage für komfortables Wohnen.
Im Jahr 2023 erfolgte eine umfassende Erweiterung des Dachgeschosses. In diesem Zuge wurden ein neues Badezimmer, moderne Bodenbeläge und eine neue Küche integriert sowie die Heizungsanlage erweitert. Zusätzlich wurde die Elektrik im Obergeschoss vollständig erneuert, und es wurden neue Velux-Fenster (2023) eingebaut, die den Bereich besonders hell und freundlich erscheinen lassen. Auch die Treppe zum Spitzboden wurde 2023 neu errichtet, wodurch dieser zusätzliche Stauraum nun bequem zugänglich ist. Insgesamt verleiht die Sanierung dem oberen Wohnbereich einen zeitgemäßen, hellen und einladenden Charakter. Zudem steht ein geräumiger Spitzboden zur Verfügung, der praktischen Stauraum bietet.
Das Erdgeschoss umfasst ca. 133 m² und empfängt Sie mit einem großzügigen Eingangsbereich. Zwei Schlafzimmer, ein Badezimmer, ein Gäste-WC, ein Abstellraum sowie eine separate Küche bieten eine funktionale Raumaufteilung. Das große Wohnzimmer bildet den Mittelpunkt dieser Etage. Von hier aus gelangt man auf die überdachte Terrasse, deren Tür im September 2025 erneuert wurde und nun über eine integrierte Kindersicherung verfügt. Die Terrasse lädt zu entspannten Stunden im Freien und zu geselligen Abenden ein.
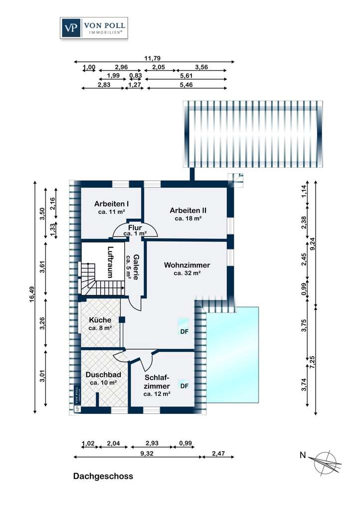
Das Dachgeschoss verfügt über rund 97 m² Wohnfläche und wurde im Jahr 2023 modern und großzügig ausgebaut. Es stehen drei vielseitig nutzbare Zimmer zur Verfügung, die sich hervorragend als Schlaf-, Kinder- oder Arbeitsräume eignen. Ein großes Wohnzimmer mit offener Küche aus 2023 (verbleibt in der Immobilie) schafft einen lichtdurchfluteten Wohnmittelpunkt. Ergänzt wird das Raumangebot durch ein modernes Badezimmer. Damit bietet das Dachgeschoss eine vollwertige, autarke Wohneinheit.
Das Kellergeschoss umfasst ca. 69 m² Wohnfläche sowie zusätzliche Kellerräume und wurde in der Vergangenheit gewerblich genutzt – hier befand sich ein Ballettstudio. Zwei Wohnräume mit großen Tageslichtfenstern, drei Kellerräume, ein Duschbad und ein weiterer Abstellraum bieten flexible Gestaltungsmöglichkeiten. Ob als zusätzlicher Wohnbereich, Hobby- oder Arbeitsräume oder zur Verbindung von Wohnen und Gewerbe: Die Nutzungsmöglichkeiten sind vielfältig und attraktiv.
Ein leistungsstarker 100.000er-Internetanschluss (bis zu 100 Mbit/s) sorgt für eine zuverlässige und schnelle Online-Anbindung.
Die Ausstattung der Wohnräume umfasst Parkett- und Laminatböden, während die Badezimmer und Abstellräume gefliest sind. Auf dem Grundstück stehen zudem acht Außenstellplätze sowie zwei Garagenstellplätze zur Verfügung. Die Garage bietet über eine Deckenluke sogar Zugang zum Spitzboden der Garage, was zusätzlichen Stauraum schafft.
Insgesamt präsentiert sich diese Immobilie als äußerst vielseitiges und großzügiges Objekt, das sowohl durch sein Platzangebot als auch durch seine klare Struktur und die umfangreichen Modernisierungen beeindruckt. Ein ideales Zuhause für alle, die Wert auf Flexibilität, viel Raum und solide Bauqualität legen.
Zweifamilienhaus mit Gewerbepotential und 7 Stellplätzen – Platz für Wohnen und Arbeiten in Oyten!
28876 Oyten
Die vollständige Adresse der Immobilie erhalten Sie vom Anbieter.
Auf Karte anzeigen
Die vollständige Adresse der Immobilie erhalten Sie vom Anbieter.
Finanzierungszertifikat
In nur zwei Minuten zu Ihrem persönlichen Finanzierungszertifkat.
Infos
| Haustyp | Mehrfamilienhaus |
|---|---|
| Etagenzahl | 3 |
| Wohnfläche ca. | 299 m2 |
| Nutzfläche | 70 m2 |
| Grundstücksfläche | 1.192 m2 |
| Zimmer | 9 |
| Schlafzimmer | 5 |
| Badezimmer | 3 |
| Garage/Stellplatz | Garage |
| Anzahl Garage/Stellplatz | 1 |
Kosten
| Kaufpreis |
749.000 € |
|---|---|
| Provision |
Käuferprovision beträgt 3,57 % (inkl. MwSt.) des beurkundeten Kaufpreises |
Finanzierungsrechner:
Kaufpreis:
600.000 €
Eigenkapital:
600.000 €
Monatliche Rate
0 €
Effektiver Jahreszins
0 %
Sollzinsbindung
10 Jahre
Bausubstanz & Energieausweis
| Baujahr | 1992 |
|---|---|
| Heizungsart | Zentralheizung |
| Wesentliche Energieträger | Gas |
| Energieausweis | liegt vor |
| Energieausweistyp | Bedarfsausweis |
| Energieverbrauchskennwert | 89,3 kWh/(m²*a) |
| Energieeffizienzklasse | C |
89,3
kWh/(m²*a)
Energieeffizienzklasse C
- A+
- A
- B
- C
- D
- E
- F
- G
- H
- 0
- 25
- 50
- 75
- 100
- 125
- 150
- 175
- 200
- 225
- >250
Beschreibung des Objekts
Ausstattung
- Baujahr 1992
- Gesamte Wohnfläche ca. 299 m²
- Zusätzliche Nutzfläche ca. 70 m²
- Großes Grundstück mit ca. 1.192 m²
- Gaszentralheizung (neuer Wärmetauscher aus 2024)
- Doppeltverglaste Kunststofffenster
- Bodenbeläge: Parkett und Laminat in den Wohnbereichen, Fliesen in Bädern und Abstellräumen
- Spitzboden als Stauraum nutzbar
- 7 Außenstellplätze
- 1 Garagenstellplatz mit Deckenluke und Zugang zum Spitzboden der Garage
- 2023: Nutzungsänderung und hochwertiger Ausbau des Dachgeschosses
- Neue Küche im Dachgeschoss
- Neues Badezimmer im Dachgeschoss
- Neue Bodenbeläge im DG
- Vielfältige Nutzungsmöglichkeiten: Mehrgenerationenhaus, Wohnen & Gewerbe kombinierbar
- Vollwertige Wohneinheiten im Erd- und Dachgeschoss
- Kellergeschoss teilweise als Wohnraum nutzbar
- 100 Mbit/s Internetanschluss
Lage
„Oyten – leben und mehr!“ – dieser Wahlspruch beschreibt treffend das besondere Lebensgefühl der Gemeinde Oyten. Die 1972 gegründete Einheitsgemeinde vereint ländlichen Charme, moderne Infrastruktur und die direkte Nähe zur Hansestadt Bremen. Sie ist ein facettenreiches Mosaik aus nahezu städtischen Strukturen, lebendigen Dorfgemeinschaften und traditioneller Landwirtschaft. Hier verbinden sich Natur, Ruhe und Wohnqualität mit den Vorteilen urbaner Erreichbarkeit.
Die Lage überzeugt durch ihre wohltuende Ruhe sowie die unmittelbare Nähe zu weitläufigen Wiesen und Feldern, die zu ausgedehnten Spaziergängen und erholsamen Stunden in der Natur einladen. Gleichzeitig ist die Verkehrsanbindung hervorragend: Sowohl das Bremer Stadtgebiet als auch umliegende Ortschaften sind schnell erreicht.
Die großen Einkaufszentren „Weserpark“ und „Dodenhof“ liegen nur wenige Autominuten entfernt und bieten ein breites Spektrum an Geschäften, Freizeitangeboten und Dienstleistungen. Die Gemeinde Oyten selbst verfügt über eine ausgezeichnete Infrastruktur. Supermärkte, Bäckereien, Apotheken und zahlreiche weitere Geschäfte des täglichen Bedarfs sind bequem erreichbar. Ergänzt wird dies durch eine vielfältige Auswahl an Gastronomie sowie eine sehr gute ärztliche Versorgung.
Die Kombination aus naturnahem Wohnen, moderner Infrastruktur und starker Lebensqualität macht diesen Standort besonders attraktiv – sowohl für Familien als auch für Menschen, die die Ruhe des Landes mit der Nähe zur Stadt verbinden möchten.
Sonstige Angaben
GELDWÄSCHE: Als Immobilienmaklerunternehmen ist die von Poll Immobilien GmbH nach § 2 Abs. 1 Nr. 14 und § 11 Abs. 1, 2 Geldwäschegesetz (GwG) dazu verpflichtet, bei der Begründung einer Geschäftsbeziehung die Identität des Vertragspartners festzustellen und zu überprüfen, bzw. sobald ein ernsthaftes Interesse an der Durchführung des Immobilienkaufvertrages besteht. Hierzu ist es erforderlich, dass wir nach § 11 Abs. 4 GwG die relevanten Daten Ihres Personalausweises festhalten (wenn Sie als natürliche Person handeln) – beispielsweise mittels einer Kopie. Bei einer juristischen Person benötigen wir eine Kopie des Handelsregisterauszugs, aus welchem der wirtschaftlich Berechtigte hervorgeht. Das Geldwäschegesetz sieht vor, dass der Makler die Kopien bzw. Unterlagen fünf Jahre aufbewahren muss. Als unser Vertragspartner haben Sie auch eine Mitwirkungspflicht nach § 11 Abs. 6 GwG.
HAFTUNG: Wir weisen darauf hin, dass die von uns weitergegebenen Objektinformationen, Unterlagen, Pläne etc. vom Verkäufer bzw. Vermieter stammen. Eine Haftung für die Richtigkeit oder Vollständigkeit der Angaben übernehmen wir daher nicht. Es obliegt daher unseren Kunden, die darin enthaltenen Objektinformationen und Angaben auf ihre Richtigkeit hin zu überprüfen. Alle Immobilienangebote sind freibleibend und vorbehaltlich Irrtümer, Zwischenverkauf- und Vermietung oder sonstiger Zwischenverwertung.
UNSER SERVICE FÜR SIE ALS EIGENTÜMER:
Planen Sie den Verkauf oder die Vermietung Ihrer Immobilie, so ist es für Sie wichtig, deren Marktwert zu kennen. Lassen Sie kostenfrei und unverbindlich den aktuellen Wert Ihrer Immobilie professionell durch einen unserer Immobilienspezialisten einschätzen. Unser bundesweites und internationales Netzwerk ermöglicht es uns, Verkäufer bzw. Vermieter und Interessenten bestmöglich zusammenzuführen.
Grundriss
Grundriss EG
>
>
Grundriss OG
>
>
Grundriss KG
>
>
Adresse
28876 Oyten
Interessante Orte
Preis- und Lageinformationen
Preistrend für Bestandsimmobilien in Oyten