Objektnr: 1067696
Als ideale Option für Eigennutzung oder Investment präsentiert sich diese Immobilie in Wittingen, gut angebunden an einer Hauptstraße. Die zentrale Lage bietet sehr gute Erreichbarkeit - ein entscheidender Vorteil für die Errichtung einer Gemeinschaftspraxis ebenso wie für andere gewerbliche Nutzungskonzepte, etwa eine Hotelanlage oder eine Kombination aus Privat- und Geschäftsnutzung.
Eine Einheit ist bereits vermietet, während Ihnen eine Einheit zur Verfügung steht, die Sie entweder neu vermieten oder für sich selbst nutzen können. Die ursprünglich 1904 erbaute Immobilie charakterisiert sich durch einen gepflegten Zustand. Das komplette Gebäude wurde im Jahr 2008 kernsaniert.
Auf ca. 523 m² Gesamtfläche umfasst das Objekt eine Wohneinheit und eine Gewerbeeinheit mit insgesamt 12 Zimmern.
Darüber hinaus verspricht das ca. 5624 m² große Grundstück nicht nur Erholung und Entspannung an der frischen Luft, sondern bietet dank seiner großzügigen Fläche auch Potenzial für weitere Bebauung, etwa mit Ein-oder Mehrfamilienhäusern. Ergänzend zum Objekt selbst steht auch ein Nebengebäude in Form eines Schuppens für zusätzlichen Stauraum zur Verfügung. Für ein Mehr an Stau- und Nutzfläche verfügen Sie über einen Keller. Zudem sind 5 Garagen und ca. 20 Freistellplätze der Immobilie zugehörig und komplettieren so das umfangreiche Angebot.
Teilvermietetes MFH mit 1 WE und 1 GE sowie Top-Potenzial in Citylage zur flexiblen Nutzung
29378 Wittingen
Die vollständige Adresse der Immobilie erhalten Sie vom Anbieter.
Auf Karte anzeigen
Die vollständige Adresse der Immobilie erhalten Sie vom Anbieter.
Finanzierungszertifikat
In nur zwei Minuten zu Ihrem persönlichen Finanzierungszertifkat.
Infos
| Haustyp | Mehrfamilienhaus |
|---|---|
| Etagenzahl | 3 |
| Wohnfläche ca. | 523 m2 |
| Grundstücksfläche | 5.624,11 m2 |
| Bezugsfrei ab | nach Absprache |
| Zimmer | 12 |
| Schlafzimmer | 7 |
| Badezimmer | 1 |
| Garage/Stellplatz | Außenstellplatz |
| Anzahl Garage/Stellplatz | 20 |
Kosten
| Kaufpreis |
769.000 € |
|---|---|
| Provision |
3,57 % Die Provision i.H.v. 3,57 % inkl. MwSt. ist mit Kaufvertragsbeurkundung fällig, sofern der Verkaufspreis über 83.000,00 € liegt. Liegt der Verkaufspreis dagegen bei/unter 83.000,00 €, ist die fest vereinbarte Mindestprovision i.H.v. mind. 5.950,00 € inkl. MwSt. mit Kaufvertragsbeurkundung fällig. Die Mindestprovision fällt insg. nur einmal an, wodurch Verkäufer und Käufer die Mindestprovision dann jeweils mit 2.975,00 € inkl. MwSt. tragen. |
Finanzierungsrechner:
Kaufpreis:
600.000 €
Eigenkapital:
600.000 €
Monatliche Rate
0 €
Effektiver Jahreszins
0 %
Sollzinsbindung
10 Jahre
Bausubstanz & Energieausweis
| Baujahr | 1904 |
|---|---|
| Letzte Sanierung | 2008 |
| Bauphase | Haus fertig gestellt |
| Objektzustand | Gepflegt |
| Qualität der Austattung | Gehoben |
| Heizungsart | Zentralheizung |
| Wesentliche Energieträger | Gas |
| Energieausweis | liegt vor |
| Energieausweistyp | Bedarfsausweis |
| Energieverbrauchskennwert | 104,9 kWh/(m²*a) |
| Energieeffizienzklasse | D |
104,9
kWh/(m²*a)
Energieeffizienzklasse D
- A+
- A
- B
- C
- D
- E
- F
- G
- H
- 0
- 25
- 50
- 75
- 100
- 125
- 150
- 175
- 200
- 225
- >250
Beschreibung des Objekts
Ausstattung
+ Mehrfamilienhaus mit 1 Wohn- sowie 1 Gewerbeeinheiten in Wittingen für Eigennutzung oder Vermietung
+ Rendite- und Vermietungspotenzial vorhanden -Verpachtung zu ca. 28.080 €
+ Das Objekt präsentiert sich in einem guten Zustand: Kernsanierung 2008. Das Dachgeschoss ist voll ausgebaut
+ Ein Nebengebäude (Schuppen) und ein Kellerraum sowie 5 Garagen und 20 Freistellplätze bieten weiteren Komfort
+ Großer Teich/Pool im Garten
Lage
Lage: Attraktive zentrale Lage mit sehr guter Erreichbarkeit
Bildung und Betreuung: Familien profitieren von Kindergarten und Schule in max. 800 m Entfernung
Nahversorgung: Supermarkt, Apotheke, Postfiliale und Bankfiliale im Umkreis von ca. 800 m zu finden
Anbindung: Nächste Bushaltestelle, nächster Bahnhof sowie nächste Autobahn gut erreichbar
Sonstige Angaben
Vereinbaren Sie noch heute einen Besichtigungstermin!
_____________________________________________________
Alle Angaben sind ohne Gewähr und basieren ausschließlich auf Informationen, die uns von unserem Auftraggeber zur Verfügung gestellt wurden. Wir übernehmen keine Gewähr für die Vollständigkeit, Richtigkeit und Aktualität der Angaben.
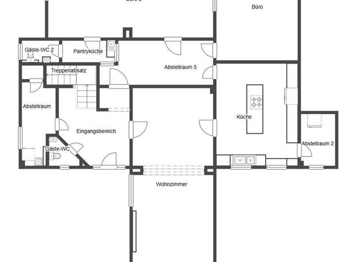
Grundriss
Grundriss Skizze EG
>
>
Grundriss Skizze OG
>
>
Grundriss Skizze DG
>
>
Adresse
29378 Wittingen
Interessante Orte
Preis- und Lageinformationen
Preistrend für Bestandsimmobilien in Wittingen