Dieses Grundstück ist eine absolute Rarität - ein echter Geheimtipp für alle, die das Besondere suchen! Versteckt in einer ruhigen, exklusiven Hinterbebauung eröffnet sich hier ein Platz, den man heute kaum noch findet. Privat, geschützt, sonnig - ein Ort, an dem Wohnträume wahr werden.
Der größte Vorteil:
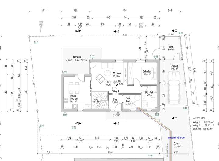
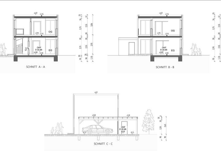
Für dieses Juwel liegt bereits eine Baugenehmigung vor, die sofort genutzt werden kann - und gleichzeitig flexibel anpassbar ist. Ob Sie Ihren eigenen Architektenstil verwirklichen oder das vorhandene Konzept übernehmen möchten: Alles ist möglich.
Die charmante Zufahrt führt direkt zu diesem außergewöhnlichen Grundstück, das mit seinem zurückliegenden Charakter eine unvergleichliche Ruhe und Geborgenheit ausstrahlt. Hier können Sie ein Zuhause schaffen, das sich komplett von der Masse abhebt - individuell, hochwertig und genau nach Ihren Vorstellungen.
Solch eine Gelegenheit kommt selten - und meist nur einmal.
Wer dieses Grundstück entdeckt, erkennt sofort: Das ist die Chance, die es sonst nirgends gibt.
Einzigartiges Grundstück in ruhiger Hinterbebauung - mit bestehender Baugenehmigung (änderbar)
Overhagenerstraße 99,
59557 Lippstadt
Auf Karte anzeigen
Finanzierungszertifikat
In nur zwei Minuten zu Ihrem persönlichen Finanzierungszertifkat.
Infos
| Vermarktungsart | Kaufen |
|---|---|
| Grundstücksfläche | 296 m2 |
| Erschließung | Unerschlossen |
| Verfügbar ab | sofort |
Kosten
| Miete pro Jahr |
105.000 € |
|---|---|
| Provision | Nein |
Finanzierungsrechner:
Kaufpreis:
600.000 €
Eigenkapital:
600.000 €
Monatliche Rate
0 €
Effektiver Jahreszins
0 %
Sollzinsbindung
10 Jahre
Beschreibung des Objekts
Lage
Die Lage dieses Grundstücks ist ein echtes Highlight: In einer geschützten Hinterbebauung gelegen, bietet es einen Rückzugsort, wie man ihn sonst nur in exklusiven Wohngebieten findet. Hier genießt man eine außergewöhnliche Ruhe, fernab des Straßenverkehrs - und dennoch liegt alles, was das tägliche Leben angenehm macht, nur wenige Minuten entfernt.
Einkaufsmöglichkeiten, Schulen, Kitas, Ärzte und öffentliche Verkehrsmittel sind schnell erreichbar. Ebenso sorgen nahegelegene Grünflächen, Spazierwege und Freizeitangebote dafür, dass sich Natur und Stadtkomfort ideal verbinden. Die Anbindung an das regionale Verkehrsnetz ist hervorragend, wodurch auch Pendler oder Familien mit vielseitigen Wegen profitieren.
Kurz gesagt: Hier wohnen Sie verborgen - aber mitten im Leben. Eine Lage, die Privatsphäre schenkt, ohne Kompromisse bei Komfort und Erreichbarkeit.
Infrastruktur (im Umkreis von 5 km):
Apotheke, Lebensmittel-Discount, Allgemeinmediziner, Kindergarten, Grundschule, Hauptschule, Realschule, Gymnasium, Gesamtschule, Öffentliche Verkehrsmittel
Sonstige Angaben
Makleranfragen nicht erwünscht. Nach § 7 UWG sind unaufgeforderte Kontaktaufnahmen durch Makler ohne ausdrückliche Einwilligung des Empfängers verboten!
ohne-makler (OM) ist weder Anbieter noch Vermittler der Immobilie. OM betreibt eine Plattform für Immobilieneigentümer, die unter anderem die gleichzeitige Veröffentlichung einzelner Inserate auf mehreren Immobilienportalen ermöglicht. Die Inhalte dieser Inserate werden ausschließlich von Dritten verantwortet. Für die Richtigkeit, Vollständigkeit oder Rechtmäßigkeit der Angaben übernimmt OM keine Haftung. Hinweise auf mögliche Rechtsverstöße können jederzeit gemeldet werden und werden nach Prüfung umgehend bearbeitet.