Willkommen in Ihrer zukünftigen Doppelhaushälfte in Budenheim, die ganz nach Ihren individuellen Vorstellungen und Wünschen projektiert wird. Mit einer großzügigen Wohnfläche von 199,95 m² und 4.0 Zimmern bietet dieses Haus genügend Platz für die ganze Familie. Genießen Sie die Freiheit, Ihre eigenen Ideen umzusetzen und gestalten Sie Ihr Traumhaus auf einem 319 m² großen Grundstück. Die durchdachte Aufteilung erstreckt sich über drei Etagen und beinhaltet unter anderem 4 Schlafzimmer, die Ihnen ausreichend Raum für Rückzug und Erholung bieten. Das moderne Badezimmer rundet das Wohnkonzept ab und sorgt für Wohlfühlatmosphäre.
Die gehobene Ausstattung wird durch eine Auswahl an Bodenbelägen wie Fliesen, Laminat, nach Wunsch PVC oder Teppichboden ergänzt. Diese Materialien bieten nicht nur eine ansprechende Optik, sondern sind auch funktional und pflegeleicht. Insbesondere Fliesen sind ideal für Feuchträume, während Laminat und Teppichboden für Behaglichkeit und Wärme sorgen. Durch die Nutzung einer Wärmepumpe als Befeuerungsart genießen Sie eine umweltfreundliche und energieeffiziente Heizung, die sowohl Kosten spart als auch für ein angenehmes Raumklima sorgt. Mit den Energietypen KFW40 und KFW55 profitieren Sie zudem von modernster Energietechnologie und können erheblich von staatlichen Förderungen profitieren.
Ihr neues Zuhause in Budenheim - Doppelhaushälfte nach Ihren Wünschen
55257 Budenheim
Die vollständige Adresse der Immobilie erhalten Sie vom Anbieter.
Auf Karte anzeigen
Die vollständige Adresse der Immobilie erhalten Sie vom Anbieter.
Finanzierungszertifikat
In nur zwei Minuten zu Ihrem persönlichen Finanzierungszertifkat.
Infos
| Haustyp | Doppelhaushaelfte |
|---|---|
| Etagenzahl | 3 |
| Wohnfläche ca. | 199 m2 |
| Grundstücksfläche | 319 m2 |
| Zimmer | 4 |
| Schlafzimmer | 4 |
| Badezimmer | 1 |
| Garage/Stellplatz | Garage |
| Anzahl Garage/Stellplatz | 1 |
Kosten
| Kaufpreis |
798.999 € |
|---|---|
| Preis für Garage/Stellplatz | 8.000 € |
Finanzierungsrechner:
Kaufpreis:
600.000 €
Eigenkapital:
600.000 €
Monatliche Rate
0 €
Effektiver Jahreszins
0 %
Sollzinsbindung
10 Jahre
Bausubstanz & Energieausweis
| Baujahr | 2026 |
|---|---|
| Bauphase | Haus in Planung (projektiert) |
| Qualität der Austattung | Gehoben |
| Heizungsart | Wärmepumpe |
Beschreibung des Objekts
Ausstattung
Bereits im Grundpreis ist eine hochwertige und zukunftsorientierte Ausstattung enthalten, die Wohngesundheit, Komfort und Energieeffizienz miteinander verbindet:
Energieeffizienz nach KfW-55-Standard - auf Wunsch auch als KfW-40+ realisierbar
Nachhaltige Luft-Wasser-Wärmepumpe mit komfortabler Fußbodenheizung
Kontrollierte Wohnraumlüftung mit Wärmerückgewinnung - für frische Luft und geringere Energiekosten
Photovoltaik-Vorbereitung nach aktueller Bauleistungsbeschreibung - bereit für die eigene Stromproduktion
3-fach verglaste Markenfenster mit langlebigen Aluminium-Rollläden
Großzügige Raumhöhe von 2,75 m mit extrahohen Fenstern und Türen für ein lichtdurchflutetes Wohnambiente
Hochwertige Echtholztreppe - stilvoll und langlebig
Bodenplatte inklusive - sicheres Fundament für Ihr Zuhause
15 Monate Festpreisgarantie - für maximale Planungssicherheit
Made in Germany - geprüfte Markenqualität
TOXPROOF-Zertifizierung des TÜV Rheinland - für wohngesundes Bauen ohne Schadstoffe
Darüber hinaus profitieren Sie von der allkauf-Bauabsicherung: umfassende Versicherungsleistungen, eine verlässliche
Festpreisgarantie und das Just-in-Time-Lieferkonzept, das Ihre Bauzeit planbar macht.
Ausbaustufe Active Time
In der Ausbaustufe Active Time genießen Sie das perfekte Zusammenspiel aus Eigenleistung und fachgerechter Ausführung.
Zwei umfangreiche Materialpakete (Technik, Trockenbau, Böden, Türen, Fliesen u. v. m.) sind bereits enthalten - kombiniert mit der
professionellen Ausführung von Elektro, Heizung/Sanitär und Estrich durch allkauf.
So entsteht ein Zuhause, das nicht nur technisch überzeugt, sondern auch in Qualität, Sicherheit und Wohnkomfort Maßstäbe setzt.
Auf Wunsch ist selbstverständlich auch eine schlüsselfertige Übergabe möglich - individuell auf Ihre Bedürfnisse zugeschnitten.
Lage
Dieses Haus wird für ein vorhandenes oder geplantes Grundstück vorgesehen.
-Der Grundstückskauf erfolgt direkt über den Eigentümer
-Exakte Grundstücksdaten erhalten Sie im persönlichen Beratungsgespräch
-Gerne bauen wir auch auf einem Grundstück Ihrer Wahl
Auf Wunsch unterstützen wir Sie aktiv bei der Grundstückssuche.
So bleiben Sie flexibel: Ob Sie bereits ein Baugrundstück besitzen, sich für eines unserer vermittelten Angebote interessieren oder noch auf der Suche sind - wir begleiten Sie Schritt für Schritt zu Ihrem Traumhaus.
Gerne berate ich Sie unverbindlich in einem unserer Musterhäuser zu Ihrem geplanten Bauvorhaben, um den Traum vom Eigenheim zu verwirklichen.
Nico Reichart
Mobil: 015735614955
nico.reichart@allkauf.de
Sonstige Angaben
Mit allkauf profitieren Sie von individueller Planung mit maximaler Gestaltungsfreiheit, energieeffizientem Bauen nach neuesten Standards sowie innovativer Haustechnik und hochwertiger Ausstattung bereits im Grundpreis. Kurze Bau- und Montagezeiten, über 40 Jahre Erfahrung im Hausbau und geprüfte Markenqualität "Made in Germany" geben Ihnen die nötige Sicherheit. Dazu kommen eine verlässliche Festpreisgarantie, persönliche Beratung auch in Finanzierungsfragen sowie aktive Unterstützung bei der Beantragung von Fördermitteln - für ein rundum sorgenfreies Bauerlebnis
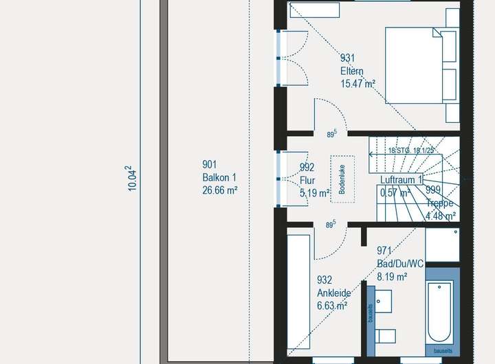
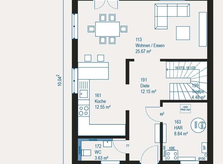
Grundriss
Grundriss
>
>
Grundriss
>
>
Grundriss
>
>
Adresse
55257 Budenheim
Interessante Orte
Preis- und Lageinformationen
Preistrend für Bestandsimmobilien in Budenheim