Willkommen in den „Römergärten“ – einem modernen Neubauensemble im Baugebiet Liebigstraße im südöstlichen Teil von Langen. Das Ensemble umfasst 85 Wohnungen in fünf Mehrfamilienhäusern auf einer gemeinsamen Tiefgarage. Für eine komfortable Parksituation sorgen Stellplätze in der Tiefgarage sowie zusätzliche Carport- und Besucherstellplätze im Außenbereich. Die Tiefgarage ist über eine Ein- und Ausfahrt an der Alten Römerstraße komfortabel erschlossen. Die Erdgeschosswohnungen verfügen über private Gartenanteile mit Terrassen.
Die Römergärten bieten ein vielseitiges Wohnangebot, geeignet für Eigennutzer ebenso wie für Kapitalanleger. Hochwertige Ausstattungsdetails, eine nachhaltige Bauweise sowie ein Angebot an barrierefreien Wohnungen prägen das Projekt. Das gesamte Ensemble ist als nachhaltiges Gebäude im KfW-40-Effizienzhaus-Standard mit dem „Qualitätssiegel Nachhaltiges Gebäude“ (QNG) geplant. Es entsteht ein Wohnungsmix von 1- bis 5-Zimmer-Wohnungen, verteilt auf Erdgeschoss, 1. Obergeschoss, 2. Obergeschoss und Staffelgeschoss. Harmonisch gestaltete Grün- und Außenflächen steigern die Aufenthaltsqualität im Freien.
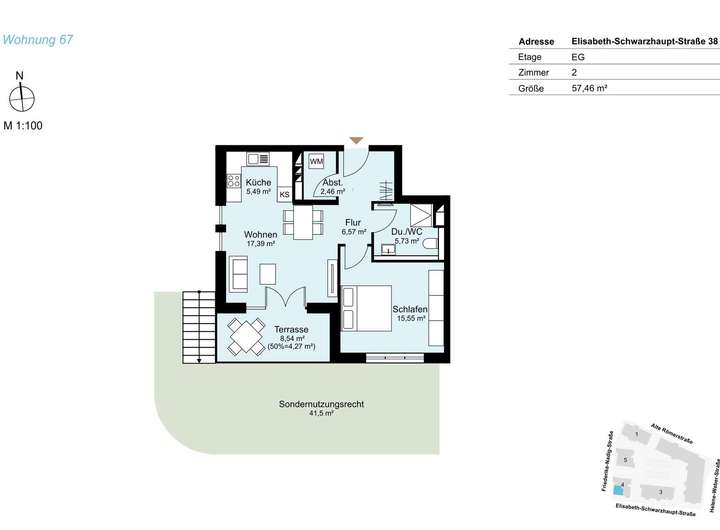
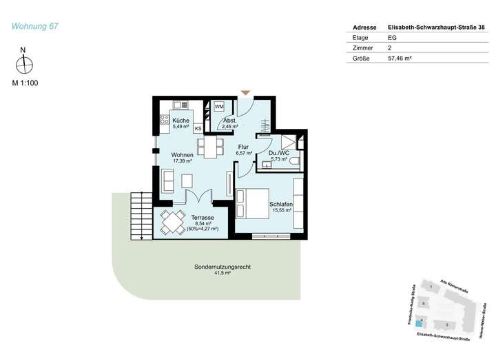
Neubau - KFW 40 (QNG) / Toll geschnittene 2-Zimmer-Wohnung
Alte Römerstraße 33,
63225 Langen (Hessen)
Auf Karte anzeigen
Finanzierungszertifikat
In nur zwei Minuten zu Ihrem persönlichen Finanzierungszertifkat.
Infos
| Etage | 0 von 3 |
|---|---|
| Wohnfläche ca. | 57 m2 |
| Zimmer | 2 |
| Schlafzimmer | 1 |
| Badezimmer | 1 |
| Garage/Stellplatz | Tiefgarage |
| Anzahl Garage/Stellplatz | 1 |
Kosten
| Kaufpreis |
315.900 € |
|---|---|
| Provision | Nein |
Finanzierungsrechner:
Kaufpreis:
600.000 €
Eigenkapital:
600.000 €
Monatliche Rate
0 €
Effektiver Jahreszins
0 %
Sollzinsbindung
10 Jahre
Bausubstanz & Energieausweis
| Baujahr | 2027 |
|---|---|
| Objektzustand | Erstbezug |
| Qualität der Austattung | Gehoben |
| Heizungsart | Fernwärme |
| Wesentliche Energieträger | Fernwärme |
| Energieausweis | liegt vor |
Beschreibung des Objekts
Ausstattung
Zur modernen Ausstattung gehören folgende Highlights:
• Massivbauweise
• Schlüsselfertige Ausführung mit Festpreisgarantie und 5-jähriger Gewährleistung
• Fernwärme & Photovoltaik-Anlage
• KfW-40-Effizienzhaus-Standard / Zertifizierung mit dem "Qualitätssiegel Nachhaltiges Gebäude" (QNG)
• Balkone und Terrassen überwiegend mit Süd- oder Westausrichtung
• EG-Wohnungen mit privatem Gartenanteil und Terrasse
• Offene Küchen zum Wohn-/ Essbereich
• Fenster mit 3-fach-Verglasung
• Elektrisch betriebene Rollläden
• Parkettböden in den Wohn- und Schlafräumen
• Hochwertige Fliesen in den Bädern
• Fußbodenheizung
• Bäder mit bodengleicher Dusche & Handtuchheizkörper
• Kontrollierte Wohnraumlüftung über dezentrale Einzelraumlüfter mit Wärmerückgewinnung
• Stellplätze in der Tiefgarage mit direktem Zugang in die Mehrfamilienhäuser
• Leitungsinfrastruktur zur Vorbereitung für E-Mobilität in der Tiefgarage
• Extensive Dachbegrünung
• Außenzapfstelle für die EG-Wohnungen
Lage
Die Stadt Langen (Hessen) mit rund 40.000 Einwohnern liegt im Landkreis Offenbach im südlichen Rhein-Main-Gebiet – einer der wirtschaftsstärksten Metropolregionen Deutschlands – zentral zwischen Frankfurt am Main und Darmstadt.
Dank der hervorragenden Verkehrsanbindung erreichen Sie über die Autobahnen A5 und A661 schnell das gesamte Rhein-Main-Gebiet. Der Bahnhof Langen bietet regelmäßige S-Bahn-Verbindungen nach Frankfurt und Darmstadt sowie Regionalzüge, mit denen Sie die Hauptbahnhöfe beider Städte in rund 9 Minuten erreichen. Zudem bestehen Direktverbindungen u. a. nach Mannheim und Heidelberg. Der internationale Flughafen Frankfurt ist in ca. 15 Minuten mit dem Auto erreichbar.
Das Neubaugebiet Liebigstraße mit unserem Projekt „Römergärten“ befindet sich im südöstlichen Teil von Langen, direkt an der Alten Römerstraße. Kitas, Schulen, Einkaufsmöglichkeiten und öffentliche Verkehrsmittel sind in kurzer Entfernung erreichbar.
Langen verfügt über eine sehr gute Infrastruktur mit vielfältigen Einkaufs- und Freizeitmöglichkeiten, einem attraktiven Kulturangebot sowie qualitativ hochwertigen Betreuungs- und Bildungseinrichtungen. Ein breites Sportangebot mit modernen Anlagen und aktiven Vereinen sorgt für hohe Lebensqualität. Nur etwa 6 km entfernt liegt der Langener Waldsee, einer der schönsten Badeseen im Rhein-Main-Gebiet, der ideale Erholungs- und Freizeitmöglichkeiten bietet.
Adresse
Alte Römerstraße 33, 63225 Langen (Hessen)
Interessante Orte
Preis- und Lageinformationen
Preistrend für Bestandsimmobilien in Langen (Hessen)
>