Unglaubliche Vielfalt und Flexibilität bietet der Bungalow "AMBIENCE 100": Vom klassischen Walmdach-Bungalow über den
mediterranen Stil bis hin zur ein- oder zweigeschossigen Designer-Variante ist alles möglich. Weitere Variabilität bieten
unterschiedliche Größen und zahlreiche Architektur-Bauteile, die etwa in Form eines Erkers ebenfalls mehr Raum schaffen.
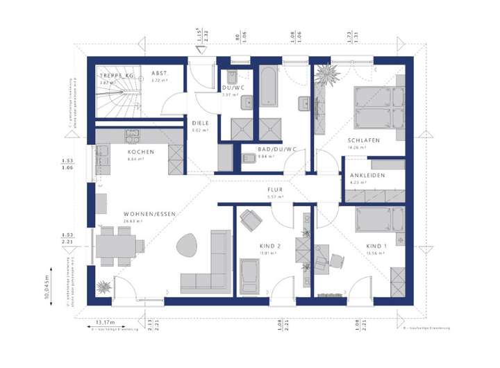
Der Zwei-Personen-Bungalow zeigt, welch überzeugende Grundrisslösungen sich auf 100 Quadratmetern realisieren lassen.
Der Entwurf bietet neben der Diele Platz für eine praktische Garderobe plus Gäste-WC und auf zwei Wegen gelangt man in
den offenen Koch-Ess-Wohnbereich. Davon abgesetzt finden sich das Schlafzimmer - mit eigenem Gartenausgang -, das
Badezimmer und sogar noch ein separates Arbeitszimmer. Das kann als Multifunktionsraum für Hobby, häusliches Arbeiten
und für Übernachtungsgäste genutzt werden. Dieses Grundrisskonzept lässt sich mit einem Raum für die Haustechnik sogar ohne Keller auf Bodenplatte realisieren!
Ein Ort zum Wohlfühlen - Entdecken Sie ihr neues Zuhause
06295 Lutherstadt Eisleben
Die vollständige Adresse der Immobilie erhalten Sie vom Anbieter.
Auf Karte anzeigen
Die vollständige Adresse der Immobilie erhalten Sie vom Anbieter.
Finanzierungszertifikat
In nur zwei Minuten zu Ihrem persönlichen Finanzierungszertifkat.
Infos
| Haustyp | Bungalow |
|---|---|
| Etagenzahl | 1 |
| Wohnfläche ca. | 99 m2 |
| Grundstücksfläche | 1.100 m2 |
| Zimmer | 3 |
| Schlafzimmer | 1 |
| Badezimmer | 1 |
Kosten
| Kaufpreis |
353.352 € |
|---|
Finanzierungsrechner:
Kaufpreis:
600.000 €
Eigenkapital:
600.000 €
Monatliche Rate
0 €
Effektiver Jahreszins
0 %
Sollzinsbindung
10 Jahre
Bausubstanz & Energieausweis
| Baujahr | unbekannt |
|---|---|
| Bauphase | Haus in Planung (projektiert) |
| Qualität der Austattung | Gehoben |
| Heizungsart | Wärmepumpe |
Beschreibung des Objekts
Ausstattung
Wir erstellen Ihr Haus in bekannter Bien-Zenker Qualität, darin sind unter anderem folgende Leistungen enthalten:
Alle zur Erstellung des Bauantrages notwendigen Architektenleistungen,
Premium Versicherungspaket mit Wohngebäude- inkl. Glasversicherung, Bauleistungsversicherung, Bauherren-Haftpflichtversicherung, Bau-Unfallversicherung, Baufinanzierungsschutz
Ausführung als Effizienzhaus 55, nach Ihrer Wahl auch als Effizienzhaus 40 oder 40 plus,
Luft-Wasser-Wärmepumpe mit Fußbodenheizung und zentrale Komfort-Lüftungsanlage mit Wärmerückgewinnung, optional auch als Sole-Wasser-Wärmepumpe ("Erdwärme") oder Wohlfühlklimaheizung,
Bodenplatte mit Erdarbeiten,
Elektroenergie und Trinkwasser ab Hausanschluss betriebsbereit installiert,
Kunststofffenster mit Dreischeibenverglasung inklusive Rollläden
Fliesenarbeiten und Sanitärobjekte nach Plan.
Folgende Eigenleistungen sind zu erbringen: Malerarbeiten, Fußbodenbeläge, Innentüren. Wir erstellen Ihr Haus aber auch gerne komplett bezugsfertig.
Lage
Polleben ist ein Ortsteil der Stadt Eisleben im Landkreis Mansfeld-Südharz, Sachsen-Anhalt, und liegt etwa 6 Kilometer nordwestlich des Stadtzentrums von Eisleben. Polleben befindet sich in einer ländlichen Umgebung, die von der sanften Hügel- und Waldlandschaft der Mansfelder Mulde geprägt ist. Der Ort ist gut über die Landstraße L 151 erreichbar und bietet eine ruhige, aber dennoch verkehrstechnisch günstige Lage, die sowohl eine gute Anbindung an Eisleben als auch an die umliegenden Dörfer ermöglicht.
Die Umgebung von Polleben ist von Natur geprägt, mit Feldern, Wiesen und landwirtschaftlich genutzten Flächen, die das typische Landschaftsbild der Region ausmachen. Es gibt zahlreiche Wander- und Radwege, die durch die idyllische Umgebung führen und den Ort zu einem schönen Ziel für Naturfreunde machen.
Polleben selbst ist ein kleines, eher ruhiges Dorf mit einem ländlichen Charakter. Die Dorfstruktur ist überschaubar, und die meisten Gebäude sind typische Einfamilienhäuser oder kleinere landwirtschaftliche Betriebe. Der Ortskern weist eine geringe Bebauungsdichte auf, sodass viel Platz für landwirtschaftliche Nutzung und private Gärten vorhanden ist. Der Ort hat einen starken Bezug zur Landwirtschaft, was sich auch in der örtlichen Infrastruktur widerspiegelt.
Die Nähe zu Eisleben, einer historischen Stadt mit einer bedeutenden Rolle in der Reformation, macht Polleben zu einem attraktiven Wohnort für Menschen, die die Ruhe des Landlebens suchen, gleichzeitig aber die Vorteile einer größeren Stadt in der Nähe haben möchten.
Insgesamt bietet Polleben ein ruhiges und naturnahes Leben, ist jedoch durch die Nähe zu Eisleben gut mit urbanen Annehmlichkeiten und kulturellen Angeboten verbunden. Es ist ein idealer Ort für diejenigen, die ländliches Wohnen mit guter Anbindung an eine größere Stadt schätzen.
Sonstige Angaben
Das Grundstück ist im obigen Preis eingerechnet, es wird ohne zusätzliche Provision an einen Bien-Zenker Bauherren bereitgestellt.
Zusätzliche Baunebenkosten müssen noch hinzugerechnet werden, hierüber beraten wir Sie gern.
Wir bieten Ihnen interessante Finanzierungsmöglichkeiten inklusive Beantragung aller Fördermittel!
Die Hausabbildungen zeigen teilweise Sonderausstattungen, die nicht im Preis enthalten sind.
Sie möchten dieses Haus besichtigen: Rufen Sie uns an und zufriedene Kunden zeigen ihnen gern ihr Haus!
Gute Beratung ist der Anfang von Allem.
Deshalb analysieren wir gemeinsam mit Ihnen Ihre Vorstellungen, Wünsche und Bedürfnisse und finden so das für Sie und Ihre Familie passende BIEN ZENKER Haus.
Interessiert? Rufen Sie mich gleich an und vereinbaren Sie noch heute einen kostenlosen und unverbindlichen Beratungstermin.
Adresse
06295 Lutherstadt Eisleben
Interessante Orte
Preis- und Lageinformationen
Preistrend für Bestandsimmobilien in Lutherstadt Eisleben
>