Willkommen in Ihrem neuen Zuhause! Dieses großzügige Zweifamilienhaus bietet die perfekte Lösung für Familien, die gemeinsam unter einem Dach leben möchten, oder für diejenigen, die eine attraktive Vermietungsmöglichkeit suchen.
Dieses charmante Haus zeichnet sich durch seine Vielseitigkeit und die großzügige Raumaufteilung aus. Jede der beiden Wohneinheiten verfügt über eigene Eingänge, wodurch sowohl Privatsphäre als auch gemeinsames Wohnen gewährleistet sind. Ideal für Mehrgenerationenfamilien, die in der Nähe ihrer Lieben wohnen möchten, aber dennoch ihren eigenen, unabhängigen Lebensbereich schätzen.
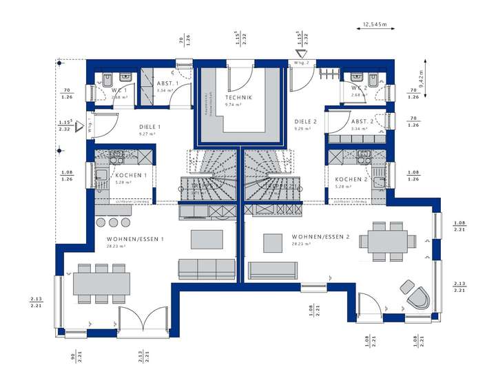
Die Erdgeschosswohnung besticht durch einen offenen und hellen Wohnbereich, der viel Platz für gemeinsame Aktivitäten bietet. Die große Küche lädt zum Kochen und Verweilen ein und ist perfekt für Familienessen oder gesellige Abende. Mehrere Schlafzimmer bieten ausreichend Platz für Eltern und Kinder, während das moderne Bad für zusätzlichen Komfort sorgt. Ein direkter Zugang zum gepflegten Garten ermöglicht entspannte Stunden im Freien.
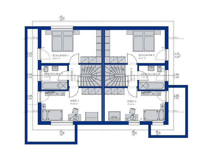
Die Wohnung im Obergeschoss ist ebenso attraktiv gestaltet und bietet einen gemütlichen Wohnbereich, eine moderne Küche und mehrere gut geschnittene Schlafzimmer. Auch hier sorgt ein helles und freundliches Ambiente für Wohlbefinden. Diese Wohneinheit ist ideal für erwachsene Kinder, die ein eigenes Zuhause brauchen, oder für Großeltern, die in der Nähe ihrer Enkel wohnen möchten.
Ein weiterer Vorteil dieses Zweifamilienhauses ist die Möglichkeit der Vermietung. Eine der Wohneinheiten kann problemlos vermietet werden, was zusätzliche Einnahmen generiert und die Finanzierung des Hauses unterstützt. Dies macht das Haus nicht nur zu einer großartigen Wohnlösung, sondern auch zu einer attraktiven Investition
Dieses Zweifamilienhaus ist mehr als nur ein Ort zum Wohnen - es ist ein Zuhause, das vielfältige Möglichkeiten bietet, um Ihre Lebenssituation optimal zu gestalten. Überzeugen Sie sich selbst von den zahlreichen Vorzügen dieses einzigartigen Hauses und vereinbaren Sie noch heute einen Beratungstermin.
Bauen mit BIEN-ZENKER Alexander Kiel - Let's do it!
79871 Eisenbach (Hochschwarzwald)
Die vollständige Adresse der Immobilie erhalten Sie vom Anbieter.
Auf Karte anzeigen
Die vollständige Adresse der Immobilie erhalten Sie vom Anbieter.
Finanzierungszertifikat
In nur zwei Minuten zu Ihrem persönlichen Finanzierungszertifkat.
Infos
| Haustyp | Mehrfamilienhaus |
|---|---|
| Etagenzahl | 2 |
| Wohnfläche ca. | 191 m2 |
| Grundstücksfläche | 980 m2 |
| Zimmer | 6 |
Kosten
| Kaufpreis |
729.585 € |
|---|
Finanzierungsrechner:
Kaufpreis:
600.000 €
Eigenkapital:
600.000 €
Monatliche Rate
0 €
Effektiver Jahreszins
0 %
Sollzinsbindung
10 Jahre
Bausubstanz & Energieausweis
| Baujahr | unbekannt |
|---|---|
| Bauphase | Haus in Planung (projektiert) |
| Heizungsart | Wärmepumpe |
Beschreibung des Objekts
Ausstattung
Anbei finden Sie einen kleinen Auszug unserer Leistungen, in einem persönlichen Gespräch erläutern wir Ihnen gerne alle unsere weiteren Leistungen & Möglichkeiten.
Nahezu kein Wunsch bleibt unerfüllt.
- Modernes Effizienzhaus nach höchsten Standards
- KFN / QNG Förderfähigkeit
- Bodenplatte
- Hocheffiziente Wärmepumpe
- PV Anlage inkl. Batteriespeicher
- 3-fach verglaste Fenster
- Aluminium Rollläden, optional mit Raff Store
- Loxone Smart Home System
- Hochwertige Markenprodukte
- Bezugsfertiger Ausbau "Schlüsselfertig", Eigenleistungen sind auf Wunsch machbar
- Individuelle Planungsmöglichkeiten
- Bestpreis Garantie
- 18 Monate Festpreis Garantie
- Kurze Bauzeit
Lage
Die Immobilie befindet sich in Eisenbach (Hochschwarzwald), einer idyllischen Gemeinde im Landkreis Breisgau-Hochschwarzwald, Baden-Württemberg. Eisenbach liegt mitten im Hochschwarzwald und bietet eine ruhige, naturnahe Wohnlage mit atemberaubenden Ausblicken auf die umliegenden Wälder und Hügel des Schwarzwaldes. Der Ort zeichnet sich durch seine charmante und friedliche Atmosphäre aus, die ihn zu einem beliebten Rückzugsort für Erholungssuchende macht.
Eisenbach ist gut an das regionale Verkehrsnetz angebunden. Über die Landstraßen L172 und L156 erreicht man schnell die umliegenden Städte Titisee-Neustadt, Furtwangen oder Villingen-Schwenningen. Die Bundesstraße B31 bietet eine schnelle Anbindung an die Autobahn A5 Richtung Freiburg und Karlsruhe sowie an die A81 Richtung Stuttgart. Der Bahnhof in Titisee-Neustadt sorgt zudem für eine Verbindung an das Schienennetz, was Eisenbach auch für Pendler attraktiv macht. Öffentliche Busverbindungen ergänzen die Anbindung in der Region.
Sonstige Angaben
Wir laden Sie herzlich ein, einen persönlichen Beratungstermin zu vereinbaren, um über Ihre Wohnträume und das angebotene Objekt zu sprechen. Bitte beachten Sie, dass die dargestellten Bilder und Grundrisse lediglich beispielhaft sind und Sonderbauteile enthalten können, die nicht im angegebenen Preis enthalten sind.
Zuzüglich ortsüblicher Baunebenkosten.
Nach einem persönlichen Gespräch können wir Ihnen weitere Details zum Grundstück mitteilen. Bitte haben Sie Verständnis dafür, dass nur vollständige Anfragen bearbeitet werden können.
Anbauteile wie Carports, Garagen und Keller können als zusätzliche Extras angeboten werden. Die dargestellten Abbildungen, Grundrisse und Flächenangaben dienen nur zur Veranschaulichung und können optionale Ausstattungen zeigen. Flächenangaben gemäß DIN 277.
Adresse
79871 Eisenbach (Hochschwarzwald)
Interessante Orte
Preis- und Lageinformationen
Preistrend für Bestandsimmobilien in Eisenbach (Hochschwarzwald)