Dieser gepflegte Bungalow wurde im Jahr 1980 auf einem ca. 850 m² großem Grundstück fertiggestellt und präsentiert sich in einem guten Zustand. Die Immobilie kombiniert ruhiges Wohnen in einer einladenden und exklusiven Umgebung von Kirchrode.
Die Gesamtwohnfläche vom Erdgeschoss von ca. 120 m² erstreckt sich auf einen großzügigen Wohnbereich mit einem angrenzenden Essbereich, einer Küche, einem Schlafzimmer mit Bad en Suite sowie einem Gäste WC.
Ein Wintergarten und eine teil überdachte Terrasse mit Blick in den Garten lädt zum Entspannen ein.
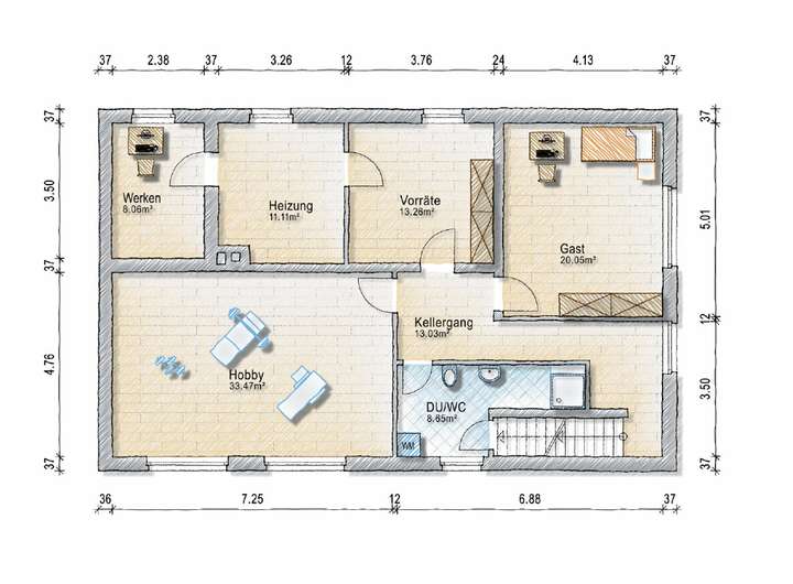
Der Souterrain Bereich umfasst eine Wohn-/Nutzfläche von ca. 63 m² mit zwei Räumen, die als Arbeitszimmer und Hobbyraum dienen. Des weiteren bietet diese Ebene genügend Staufläche.
Der Dachboden wurde ausgebaut mit einer Wohn-/Nutzfläche von ca. 50 m².
Ergänzt wird das Grundstück durch ein Gartenhaus und einen zwei Garagen die sich vor dem Haus befinden.
Die in diesem Dokument ermittelten Informationen beruhen auf Daten des Verkäufers bzw. Eigentümers. Für die Richtigkeit der Angaben wird keine Gewähr übernommen. Bitte beachten Sie die „Allgemeinen Geschäftsbedingungen“ im Exposé.
EINFAMILIENHAUS IN KIRCHRODE
30559 Hannover
Die vollständige Adresse der Immobilie erhalten Sie vom Anbieter.
Auf Karte anzeigen
Die vollständige Adresse der Immobilie erhalten Sie vom Anbieter.
Finanzierungszertifikat
In nur zwei Minuten zu Ihrem persönlichen Finanzierungszertifkat.
Infos
| Haustyp | Einfamilienhaus |
|---|---|
| Etagenzahl | 1 |
| Wohnfläche ca. | 215 m2 |
| Nutzfläche | 20 m2 |
| Grundstücksfläche | 850 m2 |
| Bezugsfrei ab | nach Absprache |
| Zimmer | 6 |
| Schlafzimmer | 1 |
| Badezimmer | 1 |
Kosten
| Kaufpreis |
840.000 € |
|---|---|
| Provision |
2,98 % inkl. 19 % MwSt. |
Finanzierungsrechner:
Kaufpreis:
600.000 €
Eigenkapital:
600.000 €
Monatliche Rate
0 €
Effektiver Jahreszins
0 %
Sollzinsbindung
10 Jahre
Bausubstanz & Energieausweis
| Baujahr | 1980 |
|---|---|
| Objektzustand | Renovierungsbedürftig |
| Heizungsart | Zentralheizung |
| Wesentliche Energieträger | Gas |
| Energieausweis | liegt vor |
| Energieausweistyp | Verbrauchsausweis |
| Energieverbrauchskennwert | 120,0 kWh/(m²*a) |
| Energieeffizienzklasse | D |
120,0
kWh/(m²*a)
Energieeffizienzklasse D
- A+
- A
- B
- C
- D
- E
- F
- G
- H
- 0
- 25
- 50
- 75
- 100
- 125
- 150
- 175
- 200
- 225
- >250
Beschreibung des Objekts
Ausstattung
Diese Immobilie befindet sich in einer ruhigen Lage und sehr gefragten Lage von Hannover im Ortsteil Kirchrode.
Empfangen werden Sie in einem geräumigen Flurbereich, von dem Sie alle Räume im Erdgeschoss erreichen können.
Das Highlight des Hauses ist der lichtdurchflutete Wohn-/Essbereich mit einem integrierten Kachelofen, der an kalten Tagen eine gemütliche Raumatmosphäre schafft. Angrenzend befindet sich ein Wintergarten von ca. 5 m² und eine großzügige Terrasse.
Ein Schlafzimmer mit einem Tageslicht-Wannenbad inkl. Dusche en Suite, eine Küche und ein Gäste WC ergänzen das Raumangebot der Erdgeschossebene.
Der Garten wurde liebevoll gestaltet und für Gartenliebhaber ideal geeignet.
Im Souterrainbereich befinden sich ein Arbeitszimmer, ein Hobbyraum und ein Duschbad welche hier als Wohn/Nutzfläche ausgewiesen werden. Eine integrierte Sauna und ein weiterer Raum in dieser Ebene bieten genügend Staufläche.
Das Dachgeschoss ist über eine offene Treppe erreichbar und wurde im Jahr 2000 ausgebaut. Hier befinden sich zwei weitere sehr helle und individuell geschnittene Räume, die als Nutzfläche dienen. Diese Ebene kann nachträglich durch eine Nutzungsänderung zum Wohnraum umgewandelt werden.
Zwei Garagen und zwei Stellplätze vor dem Haus vervollständigen das interessante Immobilienangebot.
Lage
Kirchrode zählt zu den exklusivsten Stadtteilen Hannovers – und das aus gutem Grund.
Die herausragende Lebensqualität macht diesen Stadtteil zu einem begehrten Wohnstandort.
Rund um den historischen Dorfkern hat sich Kirchrode mit seinen hochwertigen Einfamilienhäusern auf großzügigen Grundstücken zu einem lebenswerten Refugium entwickelt.
Eingebettet in die weitläufigen Grünflächen des Stadtwaldes Eilenriede, des Hermann-Löns-Parks und des Tiergartens, bietet dieser Stadtteil eine perfekte Kombination aus Natur und urbanem Komfort.
Alle wichtigen Nahversorgungseinrichtungen sind in unmittelbarer Nähe: Einkaufsmöglichkeiten für den täglichen Bedarf, Kindergärten, Schulen, Banken, Ärzte und Apotheken.
Das Zentrum von Kirchrode ist in nur zwei Minuten mit dem Fahrrad erreichbar. Ein weiteres Plus ist das fußläufig gelegene Krankenhaus.
Die Anbindung an den öffentlichen Nahverkehr ist hervorragend – eine Bushaltestelle liegt praktisch vor der Tür.
Mit der Buslinie 800 und der Stadtbahnlinie 5 gelangen Sie in nur 15 Minuten in die Innenstadt Hannovers.
Der Messeschnellweg bietet zudem eine optimale Anbindung an die B6, B65, A2 und A7, sodass auch das überregionale Verkehrsnetz schnell erreichbar ist.
Sonstige Angaben
SIE MÖCHTEN AUßERDEM IHRE IMMOBILIE VERKAUFEN?
Dann stellt sich schnell die Frage: Wie viel ist mein Haus wert?
Bei #MAKLERINNEN HANNOVER erhalten Sie Ihre Immobilienbewertung schnell, einfach und gratis! Kurz auf einen Kaffee bei uns Lange-Feld-Straße 60, Hannover-Kirchrode vorbeikommen oder online von zu Hause mit:
maklerinnen-hannover.de/objektwert-to-go/
SIE MÖCHTEN ERFAHREN, WIE VIEL EIGENHEIM SIE SICH LEISTEN KÖNNEN/MÖCHTEN?
Der Budgetrechner hilft Ihnen bei grundsätzlichen Fragen während der Immobiliensuche und vor dem Abschluss einer Baufinanzierung:
maklerinnen-hannover.de/budgetrechner-dr-klein/
Auf Basis Ihrer Angaben errechnet der Budgetrechner ganz einfach Ihren maximalen Kaufpreis und Kreditbetrag sowie Ihre maximale monatliche Kreditrate. Ermitteln Sie also jetzt mit dem Budgetrechner, was Ihre Immobilie kosten darf und wie viel Kredit Sie für Ihren Hauskauf bekommen! Gemeinsam finden wir so die Immobilie, die Sie sich leisten können und kommen Ihrem Eigentumswunsch schnell näher.
Grundriss
Grundriss Souterrain
>
>
Adresse
30559 Hannover
Interessante Orte
Preis- und Lageinformationen
Preistrend für Bestandsimmobilien in Kirchrode