Wir planen nach Ihren Wünschen und Vorstellungen und bauen mit unserer über 115jährigen Erfahrung !!
Ihr exklusives Bien Zenker Haus wird mit unserem Architekten und Ihnen zusammen geplant, so haben Sie die Möglichkeit Ihre Ideen in die Planung einzubringen. Unsere Hausbeispiele sind dabei als Anregungen zu verstehen, die Ihnen helfen Ihre eigenen Vorstellungen umzusetzen.
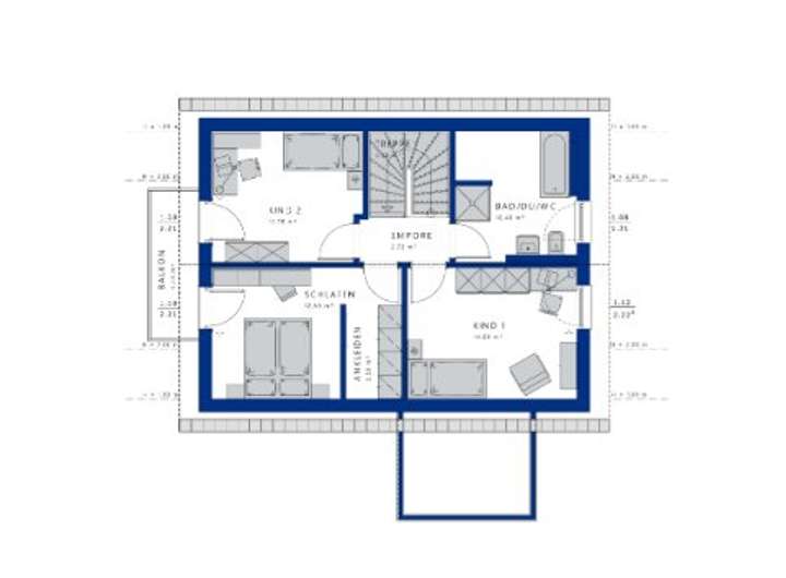
Die dargestellte Raumaufteilung ist nur beispielhaft.
Die optimale Aufteilung der Räume und deren Größe
planen wir mit Ihnen zusammen.
Einfach aber Fein
87452 Altusried
Die vollständige Adresse der Immobilie erhalten Sie vom Anbieter.
Auf Karte anzeigen
Die vollständige Adresse der Immobilie erhalten Sie vom Anbieter.
Finanzierungszertifikat
In nur zwei Minuten zu Ihrem persönlichen Finanzierungszertifkat.
Infos
| Haustyp | Einfamilienhaus |
|---|---|
| Etagenzahl | 2 |
| Wohnfläche ca. | 122 m2 |
| Nutzfläche | 120 m2 |
| Grundstücksfläche | 484 m2 |
| Zimmer | 6 |
| Schlafzimmer | 3 |
| Badezimmer | 1 |
Kosten
| Kaufpreis |
464.000 € |
|---|
Finanzierungsrechner:
Kaufpreis:
600.000 €
Eigenkapital:
600.000 €
Monatliche Rate
0 €
Effektiver Jahreszins
0 %
Sollzinsbindung
10 Jahre
Bausubstanz & Energieausweis
| Baujahr | unbekannt |
|---|---|
| Bauphase | Haus in Planung (projektiert) |
Beschreibung des Objekts
Ausstattung
Das Haus wird in bekannter Bien-Zenker Qualität "Schlüsselfertig" angeboten.
inkl. Effizienzhaus 40 Aussenwand
inkl. 3-fach Verglasung KfW40 Fenster mit Glasrandverbund
inkl. Statik und Bodengutachten
Grundrissänderungen, freie Planung inkl. Zertifizierung DGNB in Gold für wohngesundes bauen
inkl. komplettes Versicherungspaket über die Bauphase
Lage
Ländliche Idylle mit einer perfekten Anbindung, was besonders attraktiv für Familien und Berufspendler ist.
Die Anbindung an das Verkehrsnetz ist optimal. Die Bushaltestelle ist ganz in der Nähe. Auch die Anbindung an die Autobahn ist ideal.
Insgesamt bietet das Grundstück eine perfekte Kombination aus einer ruhigen und idyllischen Nachbarschaft und einer sehr guten Anbindung.
Sonstige Angaben
Gerne können wir in einem persönlichen Gespräch das Haus an Ihre Wünsche und Bedürfnisse anpassen.
Der Preis versteht sich Inkl. Grundstück, zzgl. Baunebenkosten.
Die Bilder, vor allem der Inneneinrichtung, können Sonderausstattungen
zeigen, die nicht im Preis inbegriffen sind !!
Bitte haben Sie Verständnis, dass wir nur vollständig ausgefüllte Anfragen mit Tel.Nr etc. bearbeiten.
Planen Sie ihren Traum vom eigenen Haus mit uns.
Wir beraten Sie sehr gerne und ausführlich
Weil alles passt!
Grundriss
9834-929-1-g
>
>
9832-929-2-g
>
>
Adresse
87452 Altusried
Interessante Orte
Preis- und Lageinformationen
Preistrend für Bestandsimmobilien in Altusried