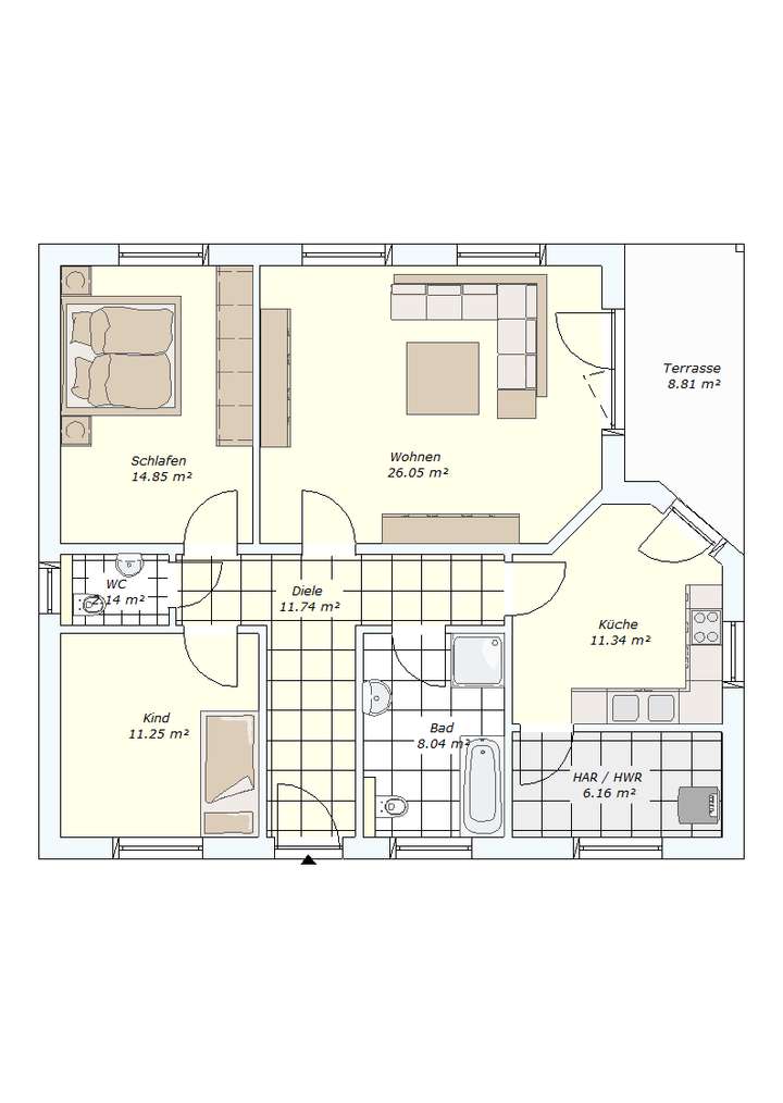
Das junge Paar mit einem Kind oder die „Silver-Ager“ mit dem Wunsch nach einem Gäste-Zimmer oder zwei Singles mit Bedarf an einem Arbeits-Zimmer – die Zielgruppe für unseren zweitkleinsten Bungalow ist sehr vielfältig. Aber alle eint das Ziel: Bloss keine winzigen Zimmer! Dem tragen wir mit diesem 100-qm-Entwurf Rechnung: Immerhin 26 qm Wohnzimmer, 11 qm Küche, 15 qm Schlafzimmer und 11 qm für Kind, Büro oder Gäste. Und natürlich gilt auch für dieses kompakte Angebot: Auch ein bezugsfertiges Haus bieten wir – natürlich alles aus einer Hand – für interessierte Familien an.
Gern stellen wir Ihnen auch größere Bungalows oder andere Haustypen – Eineinhalbgeschosser und Stadtvillen – vor: Sprechen Sie mit uns!
Grdst.-Preis inklusive! 3 Zimmer, Ton-Dachziegel, L-W-Wärmepumpe, Fußbodenhz., freie Grundriss-Planu
04654 Frohburg
Die vollständige Adresse der Immobilie erhalten Sie vom Anbieter.
Auf Karte anzeigen
Die vollständige Adresse der Immobilie erhalten Sie vom Anbieter.
Finanzierungszertifikat
In nur zwei Minuten zu Ihrem persönlichen Finanzierungszertifkat.
Infos
| Haustyp | Bungalow |
|---|---|
| Etagenzahl | 1 |
| Wohnfläche ca. | 100 m2 |
| Grundstücksfläche | 500 m2 |
| Bezugsfrei ab | nach Vereinbarung |
| Zimmer | 3 |
| Schlafzimmer | 2 |
| Badezimmer | 1 |
Kosten
| Kaufpreis |
346.225 € |
|---|---|
| Provision | Nein |
Finanzierungsrechner:
Kaufpreis:
600.000 €
Eigenkapital:
600.000 €
Monatliche Rate
0 €
Effektiver Jahreszins
0 %
Sollzinsbindung
10 Jahre
Bausubstanz & Energieausweis
| Bauphase | Haus in Planung (projektiert) |
|---|---|
| Objektzustand | Erstbezug |
| Qualität der Austattung | Gehoben |
| Heizungsart | Wärmepumpe |
| Wesentliche Energieträger | Umweltwärme |
Beschreibung des Objekts
Ausstattung
Im Grundpreis enthalten sind u.a.:
• Bau-Antrag inkl. Wärmeschutznachweis nach GEG, Wfl.-Berechnung, Kubatur
• Blower-Door-Test
• Schnurgerüst, Baustellen-WC, Entsorgung Bauschutt
• Bodenplatte Stahlbeton nach Statik inkl. Kies-/Schotter-Schicht 20 cm
• Keller (nur wenn vertraglich vereinbart)
• Außenwände / tragende Innenwände Porenbeton; nichttragende Wände Trockenbau (doppelte Beplankung für besseren Schallschutz)
• Stahlbeton-Geschossdecke
• Gerüst
• Sparren und Pfetten aus Konstruktionsvollholz bei Satteldächern
• Nagelplattenbinderdach bei Walmdächern
• Dachrinnen, Bleche und Fallrohre etc. in Titanzink
• Dacheindeckung = Falzziegel aus Ton
• Kunststofffenster weiß
• Fensterbänke außen Aluminium / innen Agglomarmor
• Rollläden mit Gurt und Gurtwickler
• Haustür Kunststoff weiß mit Automatik-Verriegelung 3-fach
• Grundputz außen farbig (ca. 500 Pastell-Töne) / Sockelputz 30 cm
• Wandfeinputz innen als Gipsputz, Qualität Q2
• Luft-Wasser-Wärmepumpe mit integriertem Warmwasserspeicher
• Fußbodenheizung in allen Wohnräumen
• Zementestrich auf Trittschall- und Wärmedämmung
• umfangreiche Sanitär-Ausstattung, u.a. bodengleiche Dusche 90x90 cm
• solide Elektro-Ausstattung, z.B. Schalter + Steckdosen von Busch-Jäger
• Gartenwasser-Anschluss
• Massivholztreppe Buche (nicht bei Bungalow)
• Innentüren nach Musterkollektion
Lage
Frohburg liegt etwa in der Mitte zwischen Leipzig und Chemnitz, ca. 35 km südlich von Leipzig und 10 km südlich von Borna. Durch Frohburg verläuft die Staatsstraße 51 (ehemalige Bundesstraße 95). Südlich von Frohburg kreuzen sich die Bundesstraße 7 und die Staatsstraße 51. Im aktuellen Bundesverkehrswegeplan ist ein Neubau der Bundesstraße 7von Altenburg über Benndorfer Flur direkt zu einer neuen Autobahnanschlussstelle "Frohburg" an der Autobahn 72 in der Nähe von Bubendorf enthalten. Auch die Bahnstrecke (Leipzig-) Neukieritzsch-Chemnitz führt durch die Stadt. Zirka 5 km östlich der Stadt Frohburg verläuft die Bundesautobahn 72, über die AS Geithain bzw. Borna Süd ist die Stadt von Süden bzw. Norden erreichbar. Durch den Ortsteil Flößberg führt die Bundesstraße 176, durch die Ortsteile Hopfgarten und Tautenhain die Bahnstrecke Leipzig–Geithain mit je einem Haltepunkt. Der Bahnhof Frohburg liegt an der S-Bahn-Linie 6 der S-Bahn Mitteldeutschland.
Sonstige Angaben
Gern stellen wir Ihnen in einem persönlichen Gespräch weitere Bauplätze und alternative Hausplanungen auch an anderen Standorten vor. Über 2 Termin-Vorschläge (einer passt dann sicher auch bei uns) freuen wir uns!
Bitte haben Sie Verständnis, dass wir Anfragen nur bei vollständigen Angaben (mind. Name, Tel.-Nr., Mail-Adresse) bearbeiten können. Ohne den direkten Dialog können wir auch keine Grundstückskontakte weiterleiten. Ihre an uns übermittelten Angaben unterliegen dem Datenschutz und werden ausschließlich im Unternehmen gespeichert.
Weitere Dokumente
weitere GrundstückeGrundriss
Vorschlag Grundriss
>
>
Adresse
04654 Frohburg
Interessante Orte
Preis- und Lageinformationen
Preistrend für Bestandsimmobilien in Frohburg