Dieses Einfamilienhaus in Zusmarshausen macht deine Eigenheimträume wahr. Mit einer Wohnfläche von 165 m² und 6 Zimmern bietet es ausreichend Platz für die gesamte Familie. Der klassische Satteldachstil verleiht dem Haus einen zeitlosen Charme, während der Panorama-Erker mit seinen riesigen Fenstern für einen atemberaubenden Blick nach draußen sorgt und gleichzeitig eine helle, einladende Atmosphäre im Innenraum schafft. Der Zwerchgiebel mit Flachdach sorgt dafür, dass du die gesamte Deckenhöhe im Obergeschoss optimal ausnutzen kannst, was das Raumgefühl zusätzlich verstärkt.
LivingHaus bietet dir nicht nur ein schlüsselfertiges Haus, sondern auch zahlreiche zusätzliche Leistungen, die deinen Bauprozess erleichtern und dein Zuhause zu einem Ort machen, an dem du dich rundum wohlfühlst. Die hochwertige Traumküche wird genau auf deinen Grundriss angepasst, ausgestattet mit modernster Technik und cleveren Stauraumlösungen, sodass du sofort nach dem Einzug in deiner neuen Küche loskochen kannst.
Mit der Living Haus Bau-App behältst du jederzeit den Überblick über dein Bauprojekt. Von der Dokumentenverwaltung bis hin zur Terminplanung - alles ist digital und jederzeit zugänglich, damit du stressfrei bauen kannst.
Das I-KON Konzept sorgt dafür, dass dein neues Zuhause energieeffizient und umweltfreundlich ist. Mit einem Effizienzhaus-Standard von nur 55 % des Energieverbrauchs eines Standardhauses profitierst du von innovativer Dämmung und intelligenter Heiztechnik.
Finanziell wirst du durch das Zuhause-Darlehen unterstützt, welches dir bis zu 250.000 EUR zu besonders günstigen Konditionen bietet, damit der Traum vom eigenen Haus schnell Wirklichkeit wird.
Dein Haus kommt mit dem Zuhause-Paket, das alle wichtigen Ausstattungen wie moderne Böden, edle Türen und stilvolle Sanitäranlagen umfasst. Und wenn du gerne selbst Hand anlegen möchtest, unterstützt dich das DIY-Ausbau-Coaching dabei, den Innenausbau mit praxisnahen Tipps und Unterstützung durch Experten zu meistern. So kannst du dein Zuhause nach deinen Vorstellungen gestalten und gleichzeitig viel lernen.
Alles in allem bietet LivingHaus dir ein durchdachtes Gesamtkonzept, das von der Finanzierung über die Planung bis hin zur individuellen Ausgestaltung reicht, damit dein Traumhaus so sicher und passend wie möglich verwirklicht wird.
Dein maßgeschneidertes Traumhaus in Zusmarshausen - individuell und einzigartig mit LivingHaus
86441 Zusmarshausen
Die vollständige Adresse der Immobilie erhalten Sie vom Anbieter.
Auf Karte anzeigen
Die vollständige Adresse der Immobilie erhalten Sie vom Anbieter.
Finanzierungszertifikat
In nur zwei Minuten zu Ihrem persönlichen Finanzierungszertifkat.
Infos
| Haustyp | Einfamilienhaus |
|---|---|
| Wohnfläche ca. | 165 m2 |
| Grundstücksfläche | 480 m2 |
| Bezugsfrei ab | nach Vereinbarung |
| Zimmer | 6 |
| Schlafzimmer | 3 |
| Badezimmer | 2 |
Kosten
| Kaufpreis |
619.000 € |
|---|
Finanzierungsrechner:
Kaufpreis:
600.000 €
Eigenkapital:
600.000 €
Monatliche Rate
0 €
Effektiver Jahreszins
0 %
Sollzinsbindung
10 Jahre
Bausubstanz & Energieausweis
| Baujahr | 2026 |
|---|---|
| Qualität der Austattung | Gehoben |
| Heizungsart | Wärmepumpe |
| Energieausweis | liegt vor |
| Energieausweistyp | Bedarfsausweis |
| Energieverbrauchskennwert | 18,0 kWh/(m²*a) |
| Energieeffizienzklasse | A+ |
18,0
kWh/(m²*a)
Energieeffizienzklasse A+
- A+
- A
- B
- C
- D
- E
- F
- G
- H
- 0
- 25
- 50
- 75
- 100
- 125
- 150
- 175
- 200
- 225
- >250
Beschreibung des Objekts
Ausstattung
Dein neues Zuhause kommt mit einer Vielzahl an hochwertigen Ausstattungsmerkmalen, die für Komfort und Stil sorgen. Der Grundriss wird individuell geplant, sodass alle Räume perfekt auf deine Bedürfnisse abgestimmt sind. Die hochwertige Traumküche beinhaltet moderne Geräte und durchdachte Stauraumlösungen. Das Zuhause-Paket liefert dir bereits edle Türen, stilvolle Sanitäranlagen und moderne Böden, sodass du direkt nach dem Einzug einziehen kannst. Mit dem I-KON-Standard profitierst du von Nachhaltigkeit und Energieeffizienz. Innovative Dämmung und moderne Heiztechnik sorgen für ein angenehmes Raumklima. Das DIY-Ausbau-Coaching macht dich zum Profi in deinem eigenen Zuhause. So wird dein "Wie ich es will Fertighaus" wahr!
Lage
Zusmarshausen ist ein idyllisches Städtchen, das eine hervorragende Lebensqualität bietet. Hier findest du zahlreiche Bildungseinrichtungen, darunter mehrere Kindergärten und Schulen, die eine gute Ausbildung für deine Kinder sicherstellen. Die Grundschule Zusmarshausen und die Realschule Zusmarshausen werden von Eltern hoch geschätzt und bieten eine umfassende Betreuung.
Für die Gesundheitsversorgung stehen dir in der Umgebung mehrere Ärzte und Apotheken zur Verfügung. Supermärkte wie Edeka und Lidl sind gut erreichbar und bieten alles, was du für den täglichen Bedarf brauchst.
Freizeitangebote sind in Zusmarshausen ebenfalls reichlich vorhanden. Ob Sportvereine, Wanderwege oder der nahegelegene Naturpark, hier kannst du dich in der Natur entspannen und aktiv sein. Für Pendler ist die Anbindung an den öffentlichen Nahverkehr sowie die Autobahn A8 ideal, sodass du in kurzer Zeit in größeren Städten wie Augsburg oder München bist.
Die Lage in Zusmarshausen vereint die Ruhe des Landlebens mit der Nähe zu urbanen Zentren, perfekt für Familien und Naturliebhaber, die ein harmonisches Wohnumfeld suchen.
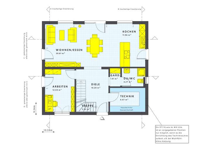
Grundriss
Erdgeschoss
>
>
Dachgeschoss
>
>
Adresse
86441 Zusmarshausen
Interessante Orte
Preis- und Lageinformationen
Preistrend für Bestandsimmobilien in Zusmarshausen