Das Haus ist auf einem realen Baugrundstück geplant oder auf einem Grundstück in einer Planungsphase. Die Bilder zeigen ggf. Extras, die im Rahmen des Bebauungsplans noch geprüft werden müssen.
Bitte beachten Sie, dass wir im Interesse der jeweiligen Grundstückseigentümer sowie unserer Bauherren ohne ein persönliches Gespräch zum Thema Hausbau keine Grundstücksdaten zur Verfügung stellen.
Doch nicht ganz Ihre Wunschlage? Gern sind wir bei der Wahl Ihres Traumgrundstückes behilflich! Sie haben bereits ein eigenes Baugrundstück? Glückwunsch! Natürlich können wir Ihr Haus auch auf Ihrem Grundstück planen und bauen.
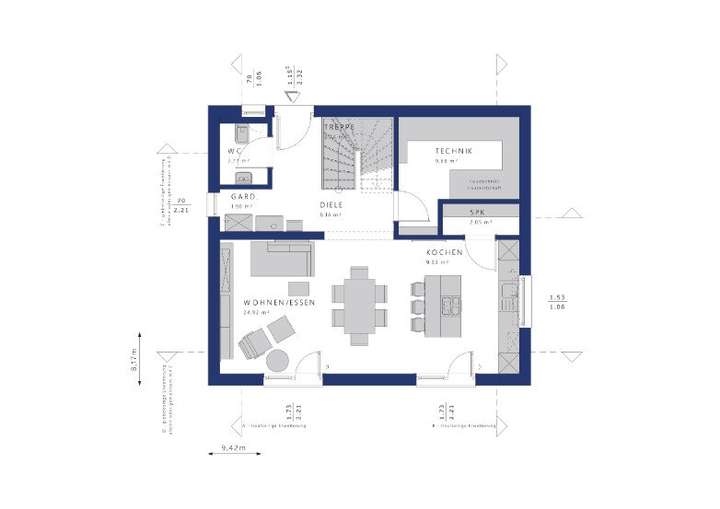
Das Bien-Zenker Haus ist ein wahres Juwel für Familien und vereint durchdachte Architektur mit einem modernen Lebensstil. Mit einer großzügigen Wohnfläche von 125 m² und einer intelligenten Raumaufteilung bietet dieses zweigeschossige Haus Platz für bis zu vier Personen. Im Erdgeschoss empfängt Sie der offene Koch-Ess-Wohnbereich, der das Herz des Hauses bildet und zum geselligen Beisammensein einlädt. Hier können Sie am Frühstückstresen oder am Esstisch gemütliche Stunden verbringen. Eine praktische Garderobe und eine Speisekammer runden das Raumkonzept ab. Im Obergeschoss finden Sie das Elternschlafzimmer mit einer separaten Ankleide, zwei liebevoll gestaltete Kinderzimmer und ein großzügiges Familienbad, das für entspannte Momente sorgt. Diese durchdachte Aufteilung ermöglicht es jeder Familie, ihre Privatsphäre zu genießen und gleichzeitig in einem harmonischen Miteinander zu leben.
Das Haus begeistert zudem mit zahlreichen Komfortdetails. Genießen Sie die lichtdurchfluteten Räume, die eine einladende Atmosphäre schaffen und für ein behagliches Wohngefühl sorgen. Die Terrasse bietet Ihnen die Möglichkeit, die warmen Sonnenstrahlen im eigenen Garten zu genießen und unvergessliche Momente mit der Familie zu erleben. Praktische Abstellräume bieten zusätzlichen Stauraum für all die kleinen Dinge, die das Familienleben so bunt und lebendig machen. Hier wird jeder Quadratmeter optimal genutzt, um Ihren Alltag zu erleichtern.
Mit der Ausbaustufe "Schlüsselfertig" entscheiden Sie sich für einen stressfreien Bauprozess. Bien-Zenker übernimmt für Sie den kompletten Hausbau, vom Fundament bis zur letzten Schraube. Sie können sich entspannt zurücklehnen und die Vorfreude auf Ihr neues Zuhause genießen, während wir uns um alle Details kümmern. Im Preis sind alle notwendigen Arbeiten und Materialien enthalten, sodass Sie einfach einziehen können, sobald das Haus fertiggestellt ist. So sparen Sie Zeit, Nerven und Planung - und können sich auf die schönen Dinge des Lebens fokussieren.
Bei Bien-Zenker ist es nie nur »Haus.« Es ist Zuhause, es ist Ankommen, es ist Familie. Bien-Zenker, das sind 80.000 gebaute Häuser, mehr als 700 Mitarbeitende und über 115 Jahre Erfolgsgeschichte. Der Pionier des Fertighauses mit Sitz im hessischen Schlüchtern zählt zu den größten und erfahrensten Fertighausanbietern Deutschlands. Dank Know-how, Leidenschaft und Einfühlungsvermögen wird jede Baufamilie individuell und kompetent beraten und unterstützt - bis sie den Schlüssel in die Tür des eigenen Heims stecken können. Mit wohngesunden Materialien und zukunftsweisenden Standards ist nicht nur jedes Bien-Zenker Haus für die Zukunft gerüstet, sondern auch jeder Bauherr.
Grundrisse und Abbildungen können Extras zeigen. Flächenangaben nach DIN 277.
Individuell geplant, staatlich gefördert - Bien-Zenker macht’s möglich
08340 Schwarzenberg/Erzgebirge
Die vollständige Adresse der Immobilie erhalten Sie vom Anbieter.
Auf Karte anzeigen
Die vollständige Adresse der Immobilie erhalten Sie vom Anbieter.
Finanzierungszertifikat
In nur zwei Minuten zu Ihrem persönlichen Finanzierungszertifkat.
Infos
| Haustyp | Einfamilienhaus |
|---|---|
| Etagenzahl | 2 |
| Wohnfläche ca. | 125 m2 |
| Grundstücksfläche | 740 m2 |
| Zimmer | 4 |
| Schlafzimmer | 3 |
| Badezimmer | 2 |
Kosten
| Kaufpreis |
418.749 € |
|---|---|
| Provision | Nein |
Finanzierungsrechner:
Kaufpreis:
600.000 €
Eigenkapital:
600.000 €
Monatliche Rate
0 €
Effektiver Jahreszins
0 %
Sollzinsbindung
10 Jahre
Bausubstanz & Energieausweis
| Baujahr | unbekannt |
|---|---|
| Bauphase | Haus in Planung (projektiert) |
| Qualität der Austattung | Gehoben |
Beschreibung des Objekts
Ausstattung
Bei Bien- Zenker incl.
* Bodenplatte
* Baugrundgutachten
* innovative Effizienzhaus-40-Wand
* Wärmpumpe mit Kühlfunktion
* PV-Anlage mit Batteriespeicher
* High End Energiesparfenster mit 3-fach Isolierverglasung
* Premium Versicherungspaket rund um das Thema Hausbau
* Finanzierungsberatung mit KfW Förderung
Im Haus von Bien-Zenker erwartet Sie eine durchdachte und moderne Ausstattung, die keine Wünsche offen lässt. Die offene Gestaltung des Koch-Ess-Wohnbereichs fördert nicht nur die Kommunikation untereinander, sondern schafft auch ein Gefühl von Weite und Freiheit. Die Kombination aus hochwertiger Küchentechnik und einem einladenden Essbereich macht das Kochen und Verweilen zum Vergnügen. Dank der großen Fensterfronten flutet Tageslicht die Räume und sorgt für eine angenehme Atmosphäre, die Sie und Ihre Familie jeden Tag aufs Neue begeistern wird.
Die Schlafzimmer im Obergeschoss sind wahre Rückzugsorte, die Ruhe und Entspannung bieten. Das Elternschlafzimmer mit Ankleide bietet ausreichend Platz für persönliche Dinge und sorgt für Ordnung und Übersichtlichkeit. Die zwei Kinderzimmer sind hell und freundlich gestaltet, perfekt für die individuellen Bedürfnisse Ihrer Kinder. Das Familienbad ist nicht nur funktional, sondern auch ein Ort der Erholung - hier können Sie nach einem langen Tag entspannen und neue Energie tanken.
Die Ausbaustufe "Schlüsselfertig" garantiert Ihnen einen reibungslosen Übergang in Ihr neues Zuhause. Sie müssen sich um nichts kümmern, denn Bien-Zenker kümmert sich um alle Details des Bauvorhabens. Vom ersten Spatenstich bis zur Übergabe des Schlüssels steht Ihnen ein kompetentes Team zur Seite. So genießen Sie Ihre Zeit und können sich auf die Einrichtung und Gestaltung Ihres neuen Heims konzentrieren, während wir die Handwerkskunst und den Innenausbau für Sie übernehmen.
Lage
Schwarzenberg im Erzgebirge ist nicht nur eine malerische Stadt, sondern bietet Ihnen auch eine hervorragende Lebensqualität. In der Umgebung finden Sie zahlreiche Bildungsmöglichkeiten, darunter Schulen und Kindergärten, die fußläufig oder mit dem Fahrrad erreichbar sind. Für Ihre Gesundheit stehen Ihnen mehrere Ärzte und Apotheken zur Verfügung, während verschiedene Einkaufsmöglichkeiten, darunter Supermärkte und Fachgeschäfte, die täglichen Besorgungen mühelos machen. Darüber hinaus bietet die Region zahlreiche Freizeitmöglichkeiten, wie Wander- und Radwege, die die Schönheit des Erzgebirges in voller Pracht zur Geltung bringen.
Die Anbindung an den öffentlichen Nahverkehr ist optimal, sodass Sie bequem in die umliegenden Städte gelangen. Die Autobahn ist ebenfalls schnell erreichbar und ermöglicht Ihnen eine unkomplizierte Anbindung an größere Städte und die umliegende Infrastruktur. So wohnen Sie in einer ruhigen, naturnahen Umgebung und genießen dennoch alle Vorzüge einer modernen Stadt. Hier leben Sie nicht nur, hier fühlen Sie sich zuhause.
Sonstige Angaben
Das Grundstück ist im obigen Preis eingerechnet, es wird ohne zusätzliche Provision für Bien-Zenker Bauherren verkauft.
Ankommen - Wohlfühlen - Zuhause sein! Ein Haus ist mehr als ein Ort zum Wohnen: Mit Bien-Zenker bauen Sie fürs Leben. Denn das eigene Haus macht glücklich!
Wenn Sie uns und unsere Häuser kennenlernen möchten, dann besuchen Sie mich gerne in unserem Musterhaus in 09599 Freiberg nach Abstimmung oder melden sich direkt bei mir: Ich freue mich auf Sie!
Frank Rothe
0173 570 1603
frank.rothe@bien-zenker.de
Grundriss
Grundriss EG
>
>
Grundriss DG
>
>
Adresse
08340 Schwarzenberg/Erzgebirge
Interessante Orte
Preis- und Lageinformationen
Preistrend für Bestandsimmobilien in Schwarzenberg/Erzgebirge