Dieses gepflegte Einfamilienhaus wurde 2003 in Massivbauweise errichtet und bietet auf ca. 168,72 m² Wohnfläche und 93,74 m² Nutzfläche viel Platz für die ganze Familie. Es liegt am Ortsrand von Tann, umgeben von Natur, und bietet einen schönen Blick auf Feld und Wiese. Der Garten ist großzügig angelegt und wird durch zwei große Terrassen mit Überdachung sowie einen überdachten Balkon ergänzt.
++Reserviert++Familienfreundliches Einfamilienhaus in Siedlungsrandlage
84367 Tann
Die vollständige Adresse der Immobilie erhalten Sie vom Anbieter.
Auf Karte anzeigen
Die vollständige Adresse der Immobilie erhalten Sie vom Anbieter.
Finanzierungszertifikat
In nur zwei Minuten zu Ihrem persönlichen Finanzierungszertifkat.
Infos
| Haustyp | Einfamilienhaus |
|---|---|
| Wohnfläche ca. | 169 m2 |
| Nutzfläche | 94 m2 |
| Grundstücksfläche | 830 m2 |
| Zimmer | 6 |
| Schlafzimmer | 3 |
| Badezimmer | 2 |
| Garage/Stellplatz | Garage |
| Anzahl Garage/Stellplatz | 2 |
Kosten
| Kaufpreis |
549.000 € |
|---|---|
| Provision |
3,57 3,57% vom Kaufpreis (zahlbar nach Notarvertrag) |
Finanzierungsrechner:
Kaufpreis:
600.000 €
Eigenkapital:
600.000 €
Monatliche Rate
0 €
Effektiver Jahreszins
0 %
Sollzinsbindung
10 Jahre
Bausubstanz & Energieausweis
| Baujahr | 2003 |
|---|---|
| Objektzustand | Gepflegt |
| Qualität der Austattung | Gehoben |
| Heizungsart | Wärmepumpe |
| Wesentliche Energieträger | Umweltwärme |
| Energieausweis | liegt vor |
| Energieausweistyp | Verbrauchsausweis |
| Energieverbrauchskennwert | 43,7 kWh/(m²*a) |
| Energieeffizienzklasse | A |
43,7
kWh/(m²*a)
Energieeffizienzklasse A
- A+
- A
- B
- C
- D
- E
- F
- G
- H
- 0
- 25
- 50
- 75
- 100
- 125
- 150
- 175
- 200
- 225
- >250
Beschreibung des Objekts
Ausstattung
Erdgeschoss: Offene Küche mit Ess- und Wohnbereich, großzügiger Anbau, Gäste-WC, Speisekammer.
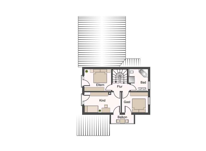
Obergeschoss: 3 Schlafzimmer, ein Badezimmer mit Dusche, Badewanne, WC und Waschtisch sowie ein Balkon.
Keller: Technikraum, Fitnessraum, Waschraum mit Dusche/WC.
Lage
Zentrale Lage zwischen Eggenfelden, Pfarrkirchen und Simbach am Inn, schnelle Anbindung zur A94 Richtung München. In Tann gibt es Schulen, Einkaufsmöglichkeiten, Fitnessstudios und zahlreiche Freizeitmöglichkeiten.
Sonstige Angaben
Heizung: Luftwärmepumpe ( neu in 2022) Fenster: Kunststofffenster in weiß Bodenbeläge: Fliesen, PVC, Parkett
Grundstück: Ca. 830 m², eingewachsener Garten mit Gartenzaun.
Energieverbrauchsausweis:
Endenergieverbrauch 43,7 kWh/(m².a) – Gültig bis 19.03.2035
Gebäudeklasse A
Alle in diesem Exposé aufgeführten Daten und Hinweise basieren auf Informationen des Eigentümers, bzw. Dritter. Wir, die Huber Immobilien GmbH können daher keine Haftung für die Richtigkeit bzw. Vollständigkeit der weitergeleiteten Unterlagen übernehmen.
Grundriss
Obergeschoss
>
>
Kellergeschoss
>
>
Adresse
84367 Tann
Interessante Orte
Preis- und Lageinformationen
Preistrend für Bestandsimmobilien in Tann