Diese modernisierte Maisonettewohnung bietet ein Wohnerlebnis, das deutlich über das Niveau einer klassischen Eigentumswohnung hinausgeht. Es besteht ein vollständig privater und diskreter Zugang, gesäumt von großen Bäumen. Eine große, geräumige Garage, die unmittelbar an die Wohnung angrenzt, schafft ein hohes Maß an Komfort.
Die Wohnfläche umfasst ca. 160 m², ergänzt durch eine zusätzliche Garagennutzfläche von rund 30 m².
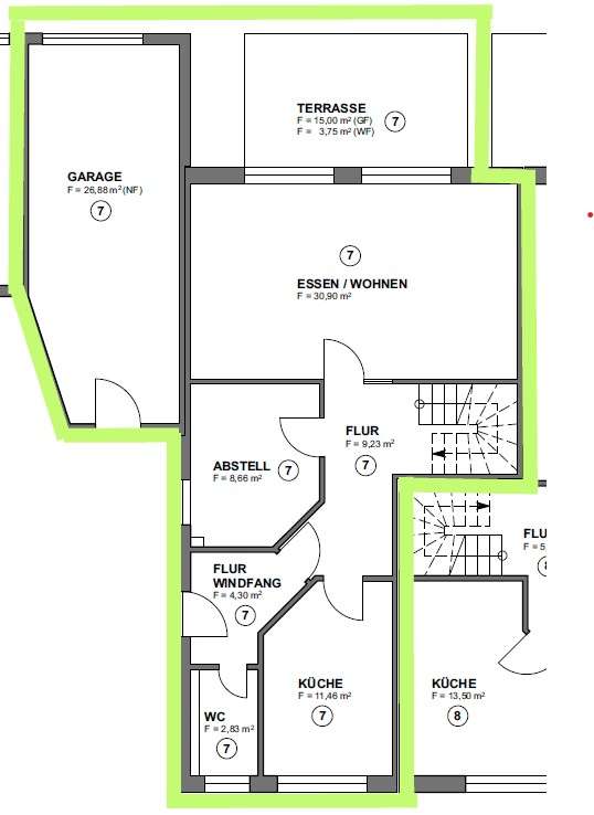
Die Maisonette-Bauweise schafft eine klare Struktur zwischen Wohn- und Rückzugsbereichen:
• großzügiger Wohn- und Essbereich mit Zugang zur Terrasse und zum privaten Garten
• drei gut geschnittene Schlafzimmer im Obergeschoss
• modernes Badezimmer
• separates Gäste-WC
• Abstell- / Hauswirtschaftsraum
• direkter Zugang zu Terrasse, Garten und Dachterrasse
Das Raumgefühl des Wohnbereichs wird durch die breite Fensterfront zum Gartenbereich verstärkt, die den Wohnraum mit viel Tageslicht versorgt und den Blick in das begrünte Umfeld freigibt. Rund um die Wohnung befinden sich große Pflanzen und Bäume, die für eine ruhige, geschützte Atmosphäre sorgen.
Die Dachterrasse im oberen Geschoss bietet einen weiteren privaten Rückzugsort.
Die Modernisierung aus dem Jahr 2022 verleiht der Wohnung durch hochwertige Materialien und klare Linien ein harmonisches Gesamtbild.
Da die Wohnung aktuell vermietet ist, können wir zum Schutz der Mieter keine aktuellen Innenaufnahmen zeigen. Die vorhandenen Innenaufnahmen stammen aus der Zeit kurz vor Abschluss der Modernisierung,
Wunderschöne Maisonette-Wohnung – Wohnen wie im eigenen Haus
48163 Münster
Die vollständige Adresse der Immobilie erhalten Sie vom Anbieter.
Auf Karte anzeigen
Die vollständige Adresse der Immobilie erhalten Sie vom Anbieter.
Finanzierungszertifikat
In nur zwei Minuten zu Ihrem persönlichen Finanzierungszertifkat.
Infos
| Wohnungskategorie | Maisonette |
|---|---|
| Wohnfläche ca. | 160 m2 |
| Nutzfläche | 27 m2 |
| Zimmer | 4 |
| Schlafzimmer | 3 |
| Badezimmer | 1 |
| Garage/Stellplatz | Garage |
| Anzahl Garage/Stellplatz | 1 |
Kosten
| Kaufpreis |
0 € |
|---|---|
| Hausgeld |
152 € |
| Provision | Nein |
| Mieteinnahmen | 2.000 € |
Finanzierungsrechner:
Kaufpreis:
600.000 €
Eigenkapital:
600.000 €
Monatliche Rate
0 €
Effektiver Jahreszins
0 %
Sollzinsbindung
10 Jahre
Bausubstanz & Energieausweis
| Baujahr | 2000 |
|---|---|
| Letzte Sanierung | 2022 |
| Objektzustand | Modernisiert |
| Qualität der Austattung | Gehoben |
| Heizungsart | Gas-Heizung |
| Wesentliche Energieträger | Gas |
| Energieausweis | liegt vor |
| Energieausweistyp | Verbrauchsausweis |
| Energieverbrauchskennwert | 74,3 kWh/(m²*a) |
| Energieeffizienzklasse | B |
74,3
kWh/(m²*a)
Energieeffizienzklasse B
- A+
- A
- B
- C
- D
- E
- F
- G
- H
- 0
- 25
- 50
- 75
- 100
- 125
- 150
- 175
- 200
- 225
- >250
Beschreibung des Objekts
Ausstattung
Die Ausstattung wurde bewusst hochwertig gewählt:
• Fußbodenheizung in allen Wohnbereichen
• elektrische Rollläden an allen Fenstern
• erneuerte Wasserleitungen
• teilweise erneuerte Elektrik
• neue Innentüren und moderne Glasschiebetüren
• hochwertige Keramikfliesen in Holzoptik
• großformatige Fliesen in Küche und Bad
• sehr geräumige Garage, direkt am Objekt gelegen, mit Zugang zum privaten Eingang
• Eigener Brunnen mit Pumpe in der Garage
• Abstell- / Hauswirtschaftsraum
Lage
Die Wohnung befindet sich in Münster-Mecklenbeck, einem ruhigen und grünen Stadtteil mit hoher Lebensqualität. Der Bereich rund um das Objekt ist geprägt von großen Pflanzen, Bäumen und gepflegtem Grün, was eine angenehme Privatsphäre schafft.
Einkaufsmöglichkeiten, medizinische Versorgung, Kitas und Schulen befinden sich in unmittelbarer Nähe. Spazierwege und Grünflächen sind fußläufig erreichbar. Die Anbindung ist hervorragend: Buslinien 5 und 11 liegen in direkter Nähe, der Bahnhof Münster-Mecklenbeck
bietet Verbindung in die Innenstadt, und mit dem Auto erreicht man das Zentrum in gut 10 Minuten.
Sonstige Angaben
Das Objekt ist für Selbstnutzer und Kapitalanleger gleichermaßen geeignet. Aktuell besteht ein solides Mietverhältnis mit einer Nettojahreskaltmiete von knapp 25.000 €.
Die Einheit gehört zu einer kleinen, ruhigen Eigentümergemeinschaft.
Hinweise:
• Verkauf direkt vom Eigentümer
• keine Käuferprovision
• Besichtigungen ausschließlich nach vorheriger Abstimmung
• Makleranfragen werden nicht berücksichtigt
Grundriss
Grundriss EG
>
>
Grundriss OG
>
>
Adresse
48163 Münster
Interessante Orte
Preis- und Lageinformationen
Preistrend für Bestandsimmobilien in Mecklenbeck