In dieses geräumige Familienzuhause werden Sie sich auf Anhieb verlieben, denn es hat einen genialen Zuschnitt - passend für eine Familie, bestehend aus Mama, Papa und 2 oder 3 Kindern! Hier ist Platz für alles, was Sie zum Leben und Glücklichsein brauchen: genug Platz, viel Licht und eine moderne Ausstattung. Genial der offene Wohn-, Koch- und Eßbereich mit Zugang zu Terrasse und Garten. Es gibt im Erdgeschoß ein separates Arbeitszimmer, was sowohl als Home-office als auch als Gäste-, Kinder- oder als Schlafzimmer genutzt werden kann. Wunderbar das Bad mit Dusche im Erdgeschoß und den Garderobenbereich. Im Dachgeschoß hat jedes Kind ein geräumiges Zimmer. Mama und Papa freuen sich über ein großes Schlafzimmer mit Platz für einen großen Schrank. Das Familienbar verfügt über Badewanne und bodentiefe Dusche. Dieses Haus gibt es mit verschiedenen Grundrißvarianten - drei oder auch 4 Schlafzimmern.
BAUEN SIE IHR EIGENES TRAUM(ZU)HAUSE FÜR IHR FAMILIENGLÜCK! TELEFON 01714863595
08289 Schneeberg
Die vollständige Adresse der Immobilie erhalten Sie vom Anbieter.
Auf Karte anzeigen
Die vollständige Adresse der Immobilie erhalten Sie vom Anbieter.
Finanzierungszertifikat
In nur zwei Minuten zu Ihrem persönlichen Finanzierungszertifkat.
Infos
| Haustyp | Einfamilienhaus |
|---|---|
| Etagenzahl | 1 |
| Wohnfläche ca. | 165 m2 |
| Grundstücksfläche | 720 m2 |
| Zimmer | 6 |
| Schlafzimmer | 4 |
| Badezimmer | 2 |
Kosten
| Kaufpreis |
459.990 € |
|---|---|
| Provision | Nein |
Finanzierungsrechner:
Kaufpreis:
600.000 €
Eigenkapital:
600.000 €
Monatliche Rate
0 €
Effektiver Jahreszins
0 %
Sollzinsbindung
10 Jahre
Bausubstanz & Energieausweis
| Baujahr | unbekannt |
|---|---|
| Bauphase | Haus in Planung (projektiert) |
| Qualität der Austattung | Gehoben |
| Heizungsart | Wärmepumpe |
Beschreibung des Objekts
Ausstattung
Livinghaus - da ist Alles mit drin:
- Grundstücksservice
- Finanzierungsservice
- Hausbau-Förderung
- alle notwendigen Bauherren-Versicherungen
- DGNB-Zertifizierung in Go
- der Architekt für die Baugenehmigungsplanung
Das Alles brauchen Sie sowieso, deshalb bekommen Sie das bei Livinghaus gleich mit dazu - ohne Extrakosten! Einfach Alles mit drin. Und noch viel mehr!
Großartige Extra-Leistungen, die Sie so nirgends finden, wie
- unsere Livinghaus Bau-Cockpit App - mit der haben Sie immer den Durchblick und sind auf dem aktuellen Projektstand,
- unser Zuhause-Paket
- unsere Ausbau-Unterstützung durch professionelle Helfer/Trainer
- unsere Ausbau-Videos - Profis zeigen Ihnen, wie es geht!
- die Bodenplatte und der Keller
...und sowieso inklusive: die richtige Hausbau-Beratung bei Ihrem Hausberater.
Dabei gehen wir selbstverständlich auf alle Themen ein, die Ihren Weg ins neue Zuhause betreffen.
Wir haben uns bereits durch Bauvorschriften, Förderkataloge und technische Spezifikationen gewühlt und Ihnen dies also bereits abgenommen. Ergebnis unserer Recherchen : ein intelligent konfiguriertes Paket. Perfekt aufeinander abgestimmte Komponenten, die alle Vorteile vereinen:
+ Photovoltaik-Anlage
+ Batteriespeicher
+ Wärmepumpenheizung inkl. Komfortlüftung und Wärmerückgewinnung
+ ideal gedämmte Gebäudehülle
= Ihr Livinghaus mit Ihrem Plus an Sicherheit für die Zukunft
Sie und Ihre Familie sollen genau DAS Zuhause bekommen, was Sie sich wünschen!
Einfach anrufen und persönlichen Termin für eine Beratung vereinbaren: Telefon 01714863595
Lage
Dieses Baugrundstück befindet sich in einem kleinen Baugebiet in Schneeberg in ruhiger und grüner Nebenstraßenlage. Der Zuschnitt des Grundstücks bietet Ihnen viel Platz für Haus, Terrasse, Garten zum Spielen für Ihre Kinder und die PKW-Stellplätze. Die Grundstücke werden voll erschlossen verkauft.
Hier können Sie bereits im Frühling des kommenden Jahres mit dem Hausbau beginnen. Starten Sie also jetzt mit der Planung und rufen uns an: 0171 4863595
Bitte beachten Sie auch den Text unter "Anmerkung".
Sonstige Angaben
Das hier angebotene Grundstück ist im obigen Preis eingerechnet. Es wird ohne zusätzliche Provision an einen Livinghaus-Bauherren bereitgestellt. Hier handelt es sich um ein Maklerangebot, daher wird natürlich eine Vermittlungsprovision fällig. Zusätzliche Baunebenkosten müssen noch hinzugerechnet werden, hierüber berate ich Sie gern.
Die Hausabbildungen und die Bilder der Inneneinrichtung zeigen Extras. Diese sind nicht im angegebenen Kaufpreis inbegriffen.
Gute Beratung ist der Anfang von Allem. Deshalb besprechen wir gemeinsam mit Ihnen Ihre Vorstellungen, Wünsche und Bedürfnisse und finden so das für Sie und Ihre Familie passende Livinghaus.
Interessiert? Kontaktieren Sie mich und vereinbaren noch heute einen kostenlosen und unverbindlichen Beratungstermin unter 0171 4863595
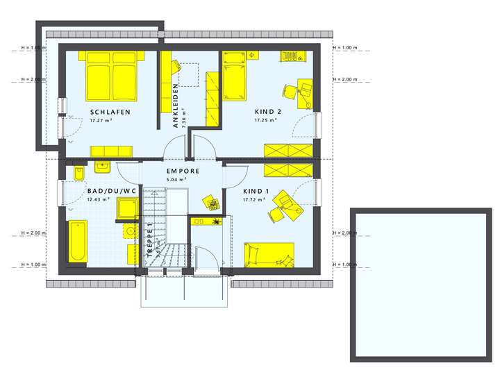
Grundriss
Erdgeschoss
>
>
Adresse
08289 Schneeberg
Interessante Orte
Preis- und Lageinformationen
Preistrend für Bestandsimmobilien in Schneeberg