Eine Liegenschaft mit außergewöhnlichem Charakter, gelegen in einer der begehrtesten und grünsten Wohnlagen Bremens, bietet eine seltene Kombination aus Großzügigkeit, zeitloser Architektur und durchdachter Funktionalität.
Das ca. 1984 errichtete Einfamilienhaus mit Einliegerwohnung erstreckt sich auf einem traumhaft eingewachsenen Grundstück von etwa 1.935 m² und bietet mit rund 268 m² Wohnfläche sowie zusätzlichen ca. 103 m² Nutzfläche ein Refugium für Menschen, die sowohl Rückzug als auch Repräsentation schätzen. Bereits die private Auffahrt, gesäumt von hohem Baumbestand, gewährt eine stilvolle Zufahrt mit Platz für bis zu fünf Fahrzeuge.
Die imposante Eingangstür führt über einen Windfang in das weitläufige Erdgeschoss, das durch seine offene Gestaltung, hohen Decken mit integrierten Spotlights und edle Materialien wie Marmor und Echtholzparkett beeindruckt. Mittelpunkt des Hauses ist der salonartige Wohnbereich mit Kamin – ein Raum voller Wärme und Charakter, der in das separate Esszimmer übergeht. Von hier eröffnet sich der Blick in den liebevoll gestalteten Garten mit Süd-West-Ausrichtung, der mit seiner gewachsenen Vegetation und großzügigen Rasenfläche eine einzigartige Privatsphäre bietet.
Drei helle Schlafzimmer, verteilt auf beide Etagen, bieten genügend Raum für Familie oder Gäste. Zwei voll ausgestattete Einbauküchen, von denen eine mit einem Waschmaschinenanschluss versehen ist, sorgen für Flexibilität im Alltag – sei es für Mehrgenerationenwohnen, Au-pair oder zur Vermietung.
Die Nassbereiche des Hauses setzen Maßstäbe in Ausstattung und Komfort: Das Marmorbad en Suite überzeugt mit Doppelwaschtisch, Whirlpoolwanne, Bidet und direktem Zugang zur Terrasse. Ergänzt wird es durch ein weiteres weißes Vollbad mit Dusche, Wanne und Tageslicht sowie ein charmantes Gäste-WC mit Bogenfenster.
Im Kellergeschoss setzt sich der hohe Standard fort. Sechs beheizte und geflieste Räume – darunter ein Badezimmer und eine große Waschküche – bieten vielfältige Nutzungsmöglichkeiten. Aufgrund der angenehmen Deckenhöhe lassen sich diese Flächen auch hervorragend als Gäste-, Party- oder Hobbybereich gestalten.
Ein Heizungs- und Vorratsraum befindet sich direkt neben dem Eingangsbereich und die moderne Haustechnik umfasst eine effiziente Gasbrennwerttherme von ca. 2021 mit zentraler Warmwasseraufbereitung, eine durchgängige Fußbodenheizung sowie dreiadrige Elektrik mit FI-Schutzschalter und zwei digitalen Zählern.
Der Außenbereich begeistert mit einer halbrunden, sonnigen Terrasse samt Markise und Stromanschluss, einem großzügigen Balkon sowie einem gepflegten Gartenhaus für Geräte oder Spielzeug. Die große Garage mit praktischem Seiteneingang komplettiert das Angebot.
Ob als stilvolles Einfamilienhaus oder als Zweifamilienhaus mit klar voneinander getrennten Bereichen, bietet diese Immobilie ein Maximum an Lebensqualität in ruhiger und diskreter Lage. Besonders Familien finden hier ein Umfeld, das in Bremen nur selten zu finden ist.
Oberneuland | Mondäne Villa mit diskretem Grundstück in Bremens Bestlage
28355 Bremen
Die vollständige Adresse der Immobilie erhalten Sie vom Anbieter.
Auf Karte anzeigen
Die vollständige Adresse der Immobilie erhalten Sie vom Anbieter.
Finanzierungszertifikat
In nur zwei Minuten zu Ihrem persönlichen Finanzierungszertifkat.
Infos
| Haustyp | Einfamilienhaus |
|---|---|
| Wohnfläche ca. | 268 m2 |
| Nutzfläche | 103 m2 |
| Grundstücksfläche | 1.935 m2 |
| Bezugsfrei ab | Nach Vereinbarung |
| Zimmer | 6 |
| Schlafzimmer | 3 |
| Badezimmer | 3 |
| Garage/Stellplatz | Garage |
| Anzahl Garage/Stellplatz | 1 |
Kosten
| Kaufpreis |
1.279.990 € |
|---|---|
| Provision |
3,57 % (inkl. 19,00 % MwSt.) vom Käufer |
Finanzierungsrechner:
Kaufpreis:
600.000 €
Eigenkapital:
600.000 €
Monatliche Rate
0 €
Effektiver Jahreszins
0 %
Sollzinsbindung
10 Jahre
Bausubstanz & Energieausweis
| Baujahr | 1984 |
|---|---|
| Objektzustand | Gepflegt |
| Heizungsart | Fußbodenheizung |
| Wesentliche Energieträger | Gas |
| Energieausweis | liegt vor |
| Energieausweistyp | Bedarfsausweis |
| Energieverbrauchskennwert | 122,4 kWh/(m²*a) |
| Energieeffizienzklasse | D |
122,4
kWh/(m²*a)
Energieeffizienzklasse D
- A+
- A
- B
- C
- D
- E
- F
- G
- H
- 0
- 25
- 50
- 75
- 100
- 125
- 150
- 175
- 200
- 225
- >250
Beschreibung des Objekts
Ausstattung
- Mondäne Villa mit diskretem Grundstück
- Baujahr: ca. 1984
- Grundstücksfläche: ca. 1.935 m²
- Wohnfläche: ca. 268 m²
- Nutzfläche: ca. 103 m²
- Erreichbar über einen Privatweg für Anwohner
- Einladender Windfang mit Zugang zum Erd- und Obergeschoss
- Salonartiger Wohnbereich mit Kamin und Leseecke
- Zweiter Wohnbereich im Obergeschoss mit Balkonzugang
- Separates Esszimmer mit Blick in den Garten
- Drei helle und gemütlich geschnittene Schlafzimmer
- Zwei gepflegte Einbauküchen, eine mit Waschmaschinenanschluss
- Marmorbad en Suite mit Doppelwaschtisch, Whirlpoolwanne, Bidet und Terrassentür
- Weißes Marmorvollbad mit Dusche, Wanne, Bidet und Fenster
- Zusätzliches Gäste-WC mit Bogenfenster
- Bodenbeläge: Marmor, Echtholzparkett und Fliesen
- Zweifachverglaste Holzfenster von ca. 1984
- Großflächige Schiebeelemente und besondere Fensterformen
- Elektrische Rollläden zur Verdunklung
- Hohe Decken mit eleganten Spotlights
- Glatte Wände mit modernem Erscheinungsbild
- Gasbrennwerttherme von ca. 2021 mit Warmwasseraufbereitung
- Fußbodenheizung im gesamten Haus installiert
- Dreiadrige Elektrik mit FI-Schutzschalter
- Zwei getrennte, digitale Zähler von ca. 2024
- Separater Technik- und Vorratsraum neben der Haustür
- Beheizter und gefliester Keller mit 6 Räumen, Waschküche und Bad
- Keller mit hoher Decke als weitere Wohnfläche oder Partybereich nutzbar
- Idyllisch bepflanzter Garten mit hohem Baumbestand und Süd-West-Ausrichtung
- Wunderschöne Terrasse mit Markise und Stromanschluss
- Halbrunder Sonnenbalkon mit reichlich viel Platz
- Gut erhaltenes Gartenhaus aus Holz für Geräte und Spielzeug
- Gesamtes Grundstück ist rund um die Immobilie begehbar
- Geräumige Garage mit praktischem Seiteneingang
- Private Auffahrt mit bis zu ca. 5 Stellplätzen
- Sowohl als Ein- oder Zweifamilienhaus geeignet
- Perfekt für Mehrgenerationenwohnen, Au-pair oder zur Vermietung
- Beliebte, diskrete und grüne Lage in Bremen
- Ideale Infrastruktur, besonders für Familien
Lage
Eine einmalige Gelegenheit, ein Anwesen in dieser selten verfügbaren und besonders diskreten Lage zu erwerben – ein Ort, der anspruchsvolles Wohnen in Perfektion ermöglicht.
Diese elegante Immobilie befindet sich in einer der exklusivsten, traditionsreichsten und zugleich begehrtesten Wohngegenden Bremens – im edlen Stadtteil Oberneuland. Die Umgebung ist geprägt von parkähnlichen Grundstücken, gewachsenen Strukturen und altem Baumbestand, der dem Viertel eine unverwechselbare, ruhige Atmosphäre verleiht. Inmitten dieser grünen Oase entfaltet sich ein Wohngefühl, das Privatsphäre, Großzügigkeit und architektonische Eleganz auf ideale Weise vereint.
Die Nachbarschaft wird von herrschaftlichen Anwesen, stilvollen Einfamilienhäusern und liebevoll gepflegten Gärten geprägt. Die reizvollen Alleen und die harmonische Bebauung verleihen Oberneuland seinen diskreten und zugleich repräsentativen Charakter. Es ist ein Umfeld, das sowohl für ruhesuchende Familien als auch für Menschen mit Sinn für Ästhetik und Qualität ideal ist.
Nur wenige Schritte entfernt lädt der historische Park von Oberneuland zu ausgedehnten Spaziergängen, morgendlichen Joggingrunden oder entspannten Stunden im Grünen ein. Das Landschaftsareal zählt zu den ältesten in Bremen und ist nicht nur für seine Naturvielfalt, sondern auch für seine Ruhe und Weitläufigkeit bekannt. Direkt angrenzend befindet sich das traditionsreiche Gut Oberneuland – ein kultureller Treffpunkt mit regelmäßig stattfindenden Ausstellungen, Konzerten und saisonalen Festen, die das gesellschaftliche Leben des Stadtteils bereichern und ihm eine besondere Note verleihen.
Im täglichen Leben profitieren Bewohner von einer ausgezeichneten Infrastruktur. Zahlreiche Einkaufsmöglichkeiten, hochwertige Bäckereien, Apotheken und kleine Feinkostläden sind ebenso bequem erreichbar wie charmante Cafés und gehobene Restaurants, die zum Verweilen einladen. Alles ist auf kurzem Weg erreichbar – diskret und ohne Hektik.
Für Familien mit Kindern bietet Oberneuland eine hervorragende schulische Versorgung: Kindergärten, Grundschulen sowie renommierte weiterführende Schulen befinden sich in der nahen Umgebung und lassen sich sicher und schnell erreichen. Ein breites Spektrum an Freizeit- und Sportangeboten – darunter Tennisclubs, Reitanlagen und verschiedene Sportvereine.
Trotz seiner ruhigen, naturnahen Lage ist Oberneuland bestens angebunden. Mit öffentlichen Verkehrsmitteln oder dem Auto erreicht man das Bremer Stadtzentrum in wenigen Minuten. Auch die Autobahnanbindung ist ideal.
Oberneuland verbindet in einzigartiger Weise gehobenes, diskretes Wohnen mit urbaner Lebensqualität. Die Verbindung aus naturverbundener Umgebung, architektonischem Anspruch und perfekter Infrastruktur macht diesen Stadtteil zu einem der begehrtesten Wohnorte Bremens.
Erleben Sie selbst, wie sich Ruhe, Stil und Lage in dieser besonderen Immobilie vereinen. Wir freuen uns auf Ihre Kontaktaufnahme.
Grundriss
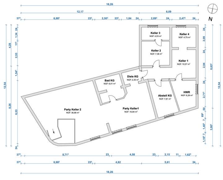
S&P | Grundriss Kellergeschoss
>
>
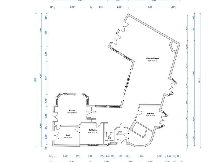
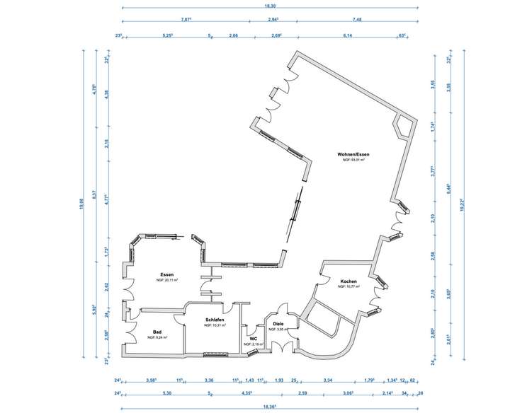
S&P | Grundriss Erdgeschoss
>
>
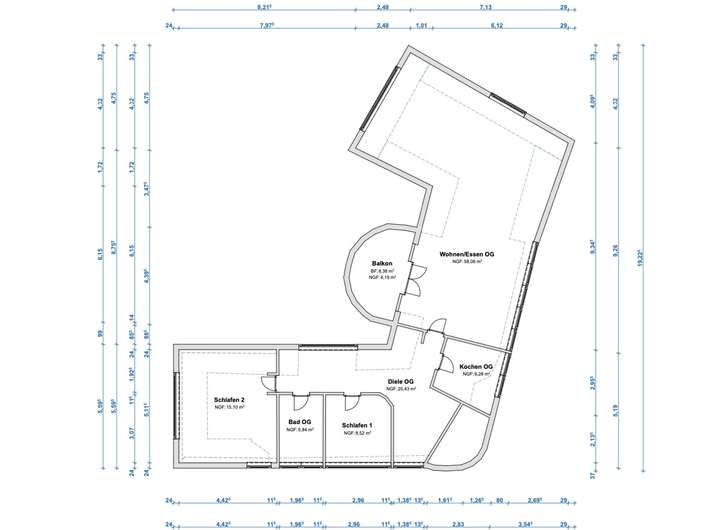
S&P | Grundriss Obergeschoss
>
>
Adresse
28355 Bremen
Interessante Orte
Preis- und Lageinformationen
Preistrend für Bestandsimmobilien in Oberneuland