Dieser wirklich schöne u. top gepflegte Bungalow liegt in ruhiger Sackgassenlage im Ortszentrumsbereich von Ostrhauderfehn. Die Immobilie wurde 2002 in Massivbauweise mit einer Betondecke und einem Walmdach erstellt. Der Wohnraumzuschnitt ist gut durchdacht und barrierefrei nutzbar. Das Dachgeschoss ist komplett mit einer Sparrendämmung versehen und bietet bei Bedarf noch zusätzliche Ausbaureserven. Beheizt wird die Immobilie durch eine neue Gas-Z-Heizung, welche 2023 neu verbaut worden ist. Das Vollbad, der Wohn/Essbereich sowie die Wohnküche sind mit einer Fußbodenheizung ausgestattet. Die vorhandenen Kunststofffenster (1 x bodentief im Wohn/Essbereich) sind abschließbar u. verfügen über Iso-Verglasung mit Außenrollladen. Diese sind teilweise elektrisch bedienbar u. verfügen über eine Zeitschalttechnik.
Vorinstalliert und an der Straße vorhanden ist ein Glasfaseranschluss sowie ein Sat-Anlage. Die Böden sind mit Fliesen, Vinyl, Kork u. Auslegware ausgestattet. Besonders hervorzuheben ist der gepflegte Gesamteindruck dieser individuell (Jung & Alt) nutzbaren Immobilie. Die hellen u. lichtdurchfluteten Räume vermitteln ein sehr wohnliches Ambiente. Bedingt durch die zentrumsnahe Wohnlage, können alle Besorgungen des täglichen Lebens fußläufig oder mit dem Fahrrad erledigt werden. Eine sehr schöne und auch repräsentative Immobilie, für Menschen die ein wohnliches Ambiente bevorzugen und eine ausgewogene Infrastruktur in nächster Nähe zu schätzen wissen.
ENEV 2013: Baujahr Gebäude: 2002, Baujahr Anlagentechnik: 2023, Energieträger: Erdgas LL,
Ausweistyp: Verbrauchsausweis, Energieverbrauch: 94.8 kWh/(m²a), Effkl: C
Die Maklerprovision beträgt für den Käufer 3,57% vom Kaufpreis inkl. ges. MwSt..
Barrierefreies Wohnen für Jung & Alt in zentraler Sackgassenlage
26842 Ostrhauderfehn
Die vollständige Adresse der Immobilie erhalten Sie vom Anbieter.
Auf Karte anzeigen
Die vollständige Adresse der Immobilie erhalten Sie vom Anbieter.
Finanzierungszertifikat
In nur zwei Minuten zu Ihrem persönlichen Finanzierungszertifkat.
Infos
| Haustyp | Bungalow |
|---|---|
| Etagenzahl | 1 |
| Wohnfläche ca. | 120 m2 |
| Nutzfläche | 35 m2 |
| Grundstücksfläche | 750 m2 |
| Zimmer | 4 |
| Schlafzimmer | 3 |
| Badezimmer | 1 |
Kosten
| Kaufpreis |
335.000 € |
|---|---|
| Provision |
Die Maklerprovision beträgt für den Käufer 3,57% vom Kaufpreis inkl. ges. MwSt.. |
Finanzierungsrechner:
Kaufpreis:
600.000 €
Eigenkapital:
600.000 €
Monatliche Rate
0 €
Effektiver Jahreszins
0 %
Sollzinsbindung
10 Jahre
Bausubstanz & Energieausweis
| Baujahr | 2002 |
|---|---|
| Objektzustand | Gepflegt |
| Heizungsart | Zentralheizung |
| Wesentliche Energieträger | Erdgas leicht |
| Energieausweis | liegt vor |
| Energieausweistyp | Verbrauchsausweis |
| Energieverbrauchskennwert | 94,8 kWh/(m²*a) |
| Energieeffizienzklasse | C |
94,8
kWh/(m²*a)
Energieeffizienzklasse C
- A+
- A
- B
- C
- D
- E
- F
- G
- H
- 0
- 25
- 50
- 75
- 100
- 125
- 150
- 175
- 200
- 225
- >250
Beschreibung des Objekts
Sonstige Angaben
Top gepflegter ebenerdiger Bungalow mit neuer Gas-Heizung (2023), überd. Terrasse, Garage/Werkstatt mit elektr. Antrieb, Einbauküche, massives Blockhaus u.v.m. in verkehrsberuhigter Sackgassenlage im Ortskernbereich.
Grundstück:
ca. 750 m² (angelegte Gartenanlage mit Rasenflächen/Ziersträuchern, überd. Terrasse mit elektr. Bedienbarem, seitlichem Sonnenschutz, gepflasterte Hofauffahrt uvm.)
Baujahr:
2002 (Top gepflegt und in einem gewarteten Gesamtzustand)
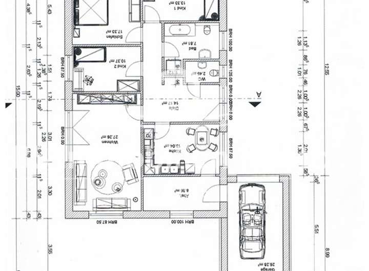
Aufteilung:
EG: Diele/Flur (ca. 14,17 m²), Wohnküche inc. EBK mit Zugang zum HWR/Abstellraum (ca. 13,04 m²), Wohn/Essbereich (ca. 27,26 m²), Gäste-WC (ca. 2,5 m²), HWR/Abstellraum (ca. 8,86 m²), Kinderzimmer 1 (ca. 10,37 m²), Kinderzimmer 2 (ca. 13,33 m²), Schlafzimmer (ca. 17,33 m²), Vollbad (ca. 7,81 m²)
ges. ca. 120 m² Wohnfläche zzgl. ca. 35 m² Nutzfläche zzgl. Holzhaus
Adresse
26842 Ostrhauderfehn
Interessante Orte
Preis- und Lageinformationen
Preistrend für Bestandsimmobilien in Ostrhauderfehn