Dieses ca. 162 m² große Reihenmittelhaus aus dem Baujahr 1904 mit zwei separaten Wohneinheiten befindet sich in begehrter Lage im Bremer Stadtteil - Hastedt.
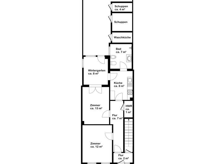
Die Erdgeschosswohnung bietet eine Wohnfläche von ca. 56 m² und überzeugt durch ein helles Schlafzimmer, ein gemütliches Wohnzimmer mit Zugang zum Wintergarten sowie eine Küche, die ebenfalls in den Wintergarten führt. Ein modernes Duschbad mit bodengleicher Dusche rundet das Raumangebot ab. Vom Wintergarten aus gelangt man in den gepflegten Garten. Ein separater Kellerraum gehört ebenfalls zur Wohnung. Diese Wohneinheit wurde geschmackvoll modernisiert. Die jährliche Kaltmieteinnahme beläuft sich derzeit auf 5.880 €.
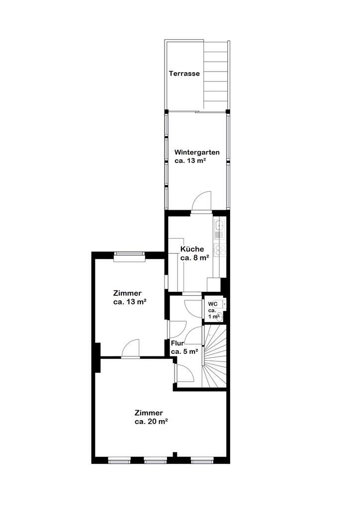
Die Maisonettewohnung im Ober- und Dachgeschoss erstreckt sich über ca. 104 m² Wohnfläche und überzeugt durch fünf lichtdurchflutete Zimmer, ein Tageslichtbad mit Badewanne, zwei Gäste-WCs sowie eine Küche mit Einbauküche. Der angrenzende Wintergarten bietet direkten Zugang zur sonnigen Dachterrasse – ein idealer Rückzugsort an warmen Tagen.
Zusätzlichen Stauraum bieten der Dachboden mit einer Grundfläche von ca. 20 m² sowie ein praktischer Außenschuppen.
Ergänzt wird das Angebot durch einen gemeinschaftlich zu nutzenden Waschraum, der sich im Anbau des Hauses befindet.
Hastedt / Teilmodernisiertes Zweifamilienhaus mit Garten und Wintergarten
28207 Bremen
Die vollständige Adresse der Immobilie erhalten Sie vom Anbieter.
Auf Karte anzeigen
Die vollständige Adresse der Immobilie erhalten Sie vom Anbieter.
Finanzierungszertifikat
In nur zwei Minuten zu Ihrem persönlichen Finanzierungszertifkat.
Infos
| Haustyp | Sonstige |
|---|---|
| Wohnfläche ca. | 155 m2 |
| Grundstücksfläche | 173 m2 |
| Bezugsfrei ab | sofort |
| Zimmer | 7 |
Kosten
| Kaufpreis |
349.000 € |
|---|---|
| Provision |
5,95 % inkl. MwSt. |
Finanzierungsrechner:
Kaufpreis:
600.000 €
Eigenkapital:
600.000 €
Monatliche Rate
0 €
Effektiver Jahreszins
0 %
Sollzinsbindung
10 Jahre
Bausubstanz & Energieausweis
| Baujahr | 1904 |
|---|---|
| Heizungsart | Zentralheizung |
| Wesentliche Energieträger | Gas |
| Energieausweis | liegt vor |
| Energieausweistyp | Bedarfsausweis |
| Energieverbrauchskennwert | 227,3 kWh/(m²*a) |
| Energieeffizienzklasse | G |
227,3
kWh/(m²*a)
Energieeffizienzklasse G
- A+
- A
- B
- C
- D
- E
- F
- G
- H
- 0
- 25
- 50
- 75
- 100
- 125
- 150
- 175
- 200
- 225
- >250
Beschreibung des Objekts
Ausstattung
- Vinyl-, Teppich- und Fliesenbodenbeläge
- Zwei Wintergärten
- Dachterrasse
- Garten
- Waschküche
- Geräteschuppen
- Keller
- Dachboden
- Bodengleiche Dusche
Lage
Die angebotene Immobilie befindet sich im beliebten Stadtteil Hastedt. Einer Wohnlage, die durch ihre zentrale, zugleich aber ruhige Umgebung überzeugt.
Alle Einrichtungen des täglichen Bedarfs, wie Einkaufsmöglichkeiten, Schulen, Kindergärten und Ärzte, sind in wenigen Gehminuten erreichbar. Auch die Bremer Innenstadt mit ihren zahlreichen Einkaufsmöglichkeiten, Restaurants und kulturellen Angeboten ist ebenfalls in kurzer Zeit zu erreichen.
Die Anbindung an den öffentlichen Nahverkehr ist durch mehrere Bus- und Straßenbahnlinien gegeben, auch der Hauptbahnhof ist gut zu erreichen. Die Autobahnen A1 und A27 sind in ca. 15 Minuten mit dem Auto zu erreichen.
Sonstige Angaben
Wissen Sie schon, wieviel Immobilie Sie sich leisten möchten?
Mit unserem Partner HBI Finanz GmbH können Sie Ihren finanziellen
Spielraum errechnen. Zur Zeit bietet Ihnen die HBI Finanz GmbH sogar Zinsfestschreibungen bis
zu 30 Jahren und das ganz ohne Eigenkapital.
Für eine kostenlose und unverbindliche Beratung sprechen Sie uns gerne an!
Grundriss
Erdgeschoss
>
>
1. Obergeschoss
>
>
Dachgeschoss
>
>
Adresse
28207 Bremen
Interessante Orte
Preis- und Lageinformationen
Preistrend für Bestandsimmobilien in Hastedt