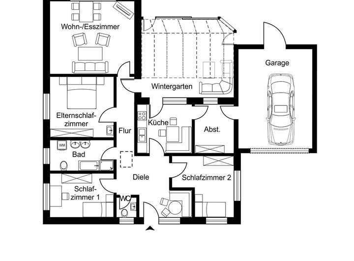
Dieser renovierungsbedürftige Bungalow aus dem Baujahr 1975 bietet viel Potenzial für Eigennutzer oder handwerklich begabte Käufer. Das Haus verfügt über drei Schlafzimmer, ein Tageslichtbad mit Waschmaschinen- und Trockneranschluss, ein Gäste-WC, ein freundliches Wohnzimmer sowie eine Küche mit direktem Zugang in den Wintergarten aus 1997. Der Wintergarten ist mit elektrischer Beschattung, Seitenbeschattung und elektrischer Dachfensteröffnung ausgestattet.
Besonders praktisch: Ein Abstellraum verbindet das Wohnhaus mit der Doppelgarage, ideal für zusätzlichen Stauraum und trockenen Zugang ins Haus. Das Elternschlafzimmer verfügt zudem über ein integriertes Waschbecken.
Das eingefriedete Grundstück mit Hecken und Zäunen bietet Privatsphäre und macht den Garten ideal nutzbar für Familien, Hobbygärtner oder Tierbesitzer.
Weitere Informationen:
Energieintensive Immobilien (Energieklasse H / WPB) können durch eine Sanierung zu einem KfW‑Effizienzhaus 55 oder 40 von attraktiven Fördermitteln profitieren. Der Tilgungszuschuss beträgt dabei 15 % bei KfW 55 und 20 % bei KfW 40. Für als WPB (Worst‑Performing Building) eingestufte Gebäude erhöht sich dieser Zuschuss zusätzlich um 10 Prozentpunkte. Weitere Informationen sind auf der Website: kfw.de zu finden.
Hier steckt mehr drin: Bungalow mit Wintergarten und 617 m² großem Eigentumsgrundstück in Dersum!
26906 Dersum
Die vollständige Adresse der Immobilie erhalten Sie vom Anbieter.
Auf Karte anzeigen
Die vollständige Adresse der Immobilie erhalten Sie vom Anbieter.
Finanzierungszertifikat
In nur zwei Minuten zu Ihrem persönlichen Finanzierungszertifkat.
Infos
| Haustyp | Einfamilienhaus |
|---|---|
| Wohnfläche ca. | 144 m2 |
| Nutzfläche | 29,55 m2 |
| Grundstücksfläche | 617 m2 |
| Bezugsfrei ab | sofort |
| Zimmer | 4 |
| Schlafzimmer | 3 |
| Badezimmer | 1 |
Kosten
| Kaufpreis |
215.000 € |
|---|---|
| Provision | Nein |
Finanzierungsrechner:
Kaufpreis:
600.000 €
Eigenkapital:
600.000 €
Monatliche Rate
0 €
Effektiver Jahreszins
0 %
Sollzinsbindung
10 Jahre
Bausubstanz & Energieausweis
| Baujahr | 1975 |
|---|---|
| Heizungsart | Nachtspeicherofen |
| Wesentliche Energieträger | Strom |
| Energieausweis | liegt vor |
| Energieausweistyp | Bedarfsausweis |
| Energieverbrauchskennwert | 265,1 kWh/(m²*a) |
| Energieeffizienzklasse | H |
265,1
kWh/(m²*a)
Energieeffizienzklasse H
- A+
- A
- B
- C
- D
- E
- F
- G
- H
- 0
- 25
- 50
- 75
- 100
- 125
- 150
- 175
- 200
- 225
- >250
Beschreibung des Objekts
Ausstattung
Außenanlagen
- Grundstück vollständig eingefriedet durch Hecken und Zäune
- Doppelgarage mit elektrischem Sektionaltor
- Wintergarten mit elektrischer Beschattung und Seitenbeschattung; Dachfenster elektrisch öffenbar
Fenster / Türen
- Weiße Kunststofffenster mit Zweifachverglasung (Baujahre: 1975, 1986, 1996, 1997)
- Rollläden an den Fenstern vorhanden
Heizung
- Beheizung über Nachtspeicheröfen
- Warmwasser über Durchlauferhitzer
TV / Internet
- TV-Empfang: SAT-Anlage
- Internetanschluss: DSL
Lage
Dersum ist eine ländliche Gemeinde im Landkreis Emsland, Niedersachsen, mit etwa 1.600 Einwohnern, die zur Samtgemeinde Dörpen gehört. Vor Ort befinden sich u.a. eine Kindertagesstätte, eine Grundschule, eine Volksbank, ein Sportverein und ein Schützenverein. Im benachbarten Ort Walchum (3 km entfernt) ist ein Allgemeinmediziner, ein EDEKA Supermarkt, ein Bäcker, ein Friseurgeschäft sowie ein Getränkefachmarkt zu erreichen.
Weitere Einrichtungen für den täglichen Bedarf sowie Schulen, Busanbindung und Bahnhof sind im 8 km entfernten Dörpen vorhanden.
Grundriss
cc1cf308-fc97-4c44-8e4a-2800c6
>
>
Adresse
26906 Dersum
Interessante Orte
Preis- und Lageinformationen
Preistrend für Bestandsimmobilien in Dersum