Diese attraktive 3-Zimmer-Wohnung liegt im Erdgeschoss eines gepflegten 8-Familienhauses aus ca. 1987 und überzeugt durch ihr durchdachtes Raumkonzept sowie mehrere hochwertige Modernisierungen der letzten Jahre.
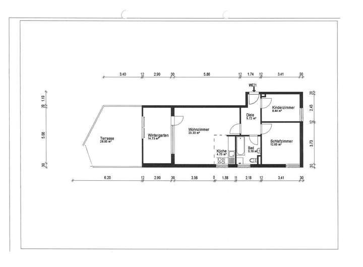
Die Wohnfläche von insgesamt 81 m² setzt sich wie folgt zusammen:
ca. 60 m² reine Wohnfläche der Wohnung
ein ca. 14 m² großer, verglaster und beheizter Wintergarten
eine ca. 28 m² große Terrasse, wovon 7 m² (ein Viertel) in die Wohnfläche eingerechnet sind
Unter Einbeziehung der gesamten Terrassenfläche ergibt sich eine großzügige Wohn- und Nutzfläche von ca. 102 m².
In den letzten zehn Jahren wurde die Wohnung umfassend modernisiert:
das Badezimmer wurde vollständig erneuert und mit einer großen, bodenebenen Dusche ausgestattet
die Küche wurde geöffnet und in eine moderne Wohnküche mit Kochinsel umgebaut
der Wintergarten erhielt eine aufwändige Isolierung und ist seperat beheizbar.
die Terrasse wurde mit einem hochwertigen WPC-Boden neu gestaltet
Zur Wohnung gehören außerdem ein Kellerraum sowie ein Tiefgaragen-Stellplatz.
Helle 3-Zimmer-EG-Wohnung mit Wintergarten und großer Terrasse
Happinger Str. ..,
83026 Rosenheim
Auf Karte anzeigen
Finanzierungszertifikat
In nur zwei Minuten zu Ihrem persönlichen Finanzierungszertifkat.
Infos
| Wohnungskategorie | Erdgeschosswohnung |
|---|---|
| Etage | 0 von 3 |
| Wohnfläche ca. | 81 m2 |
| Nutzfläche | 102 m2 |
| Bezugsfrei ab | sofort |
| Zimmer | 3 |
| Schlafzimmer | 1 |
| Badezimmer | 1 |
| Anzahl Garage/Stellplatz | 1 |
Kosten
| Kaufpreis |
395.000 € |
|---|---|
| Hausgeld |
359 € |
| Preis für Garage/Stellplatz | 19.000 € |
| Provision |
2,38 Der Käufer und der Verkäufer zahlen jeweils eine Provision in Höhe von 2,38 % inkl. MwSt. des beurkundeten Kaufpreises, fällig nach Abschluss des notariellen Kaufvertrags. |
Finanzierungsrechner:
Kaufpreis:
600.000 €
Eigenkapital:
600.000 €
Monatliche Rate
0 €
Effektiver Jahreszins
0 %
Sollzinsbindung
10 Jahre
Bausubstanz & Energieausweis
| Baujahr | 1987 |
|---|---|
| Letzte Sanierung | 2015 |
| Objektzustand | Gepflegt |
| Qualität der Austattung | Gehoben |
| Heizungsart | Zentralheizung |
| Wesentliche Energieträger | Fernwärme |
| Energieausweis | liegt vor |
| Energieausweistyp | Verbrauchsausweis |
| Energieverbrauchskennwert | 176,3 kWh/(m²*a) |
| Energieeffizienzklasse | F |
176,3
kWh/(m²*a)
Energieeffizienzklasse F
- A+
- A
- B
- C
- D
- E
- F
- G
- H
- 0
- 25
- 50
- 75
- 100
- 125
- 150
- 175
- 200
- 225
- >250
Beschreibung des Objekts
Lage
Die Wohnung befindet sich in 83026 Rosenheim, im beliebten Ortsteil Kaltmühl in der Happinger Straße. Das Haus liegt äußerst ruhig in einer verkehrsarmen Stichstraße und bietet damit ein angenehmes, entspanntes Wohnumfeld.
Alle wichtigen Einrichtungen des täglichen Bedarfs – Eine Apotheke und eine Bank befinden sich direkt im Haus, ein Supermarkt gegenüber.
Ärzte, Gastronomie, Bus, zwei Kindergärten, eine Grundschule und weitere Dienstleistungen befinden sich in unmittelbarer Nähe und sind bequem zu Fuß erreichbar. Die Lage verbindet damit ideale Ruhe mit einer hervorragenden infrastrukturellen Versorgung.
Drei Badeseen sind mit dem Fahrrad in 10 Minuten erreicht.
Sonstige Angaben
Das Gebäude wir seit 2021 mit Fernwärme versorgt. Ein aktualisierter Energieausweis wurde bereits beantragt.
Weitere Dokumente
2028-10-29 Energieausweis HappAdresse
Happinger Str. .., 83026 Rosenheim
Interessante Orte
Preis- und Lageinformationen
Preistrend für Bestandsimmobilien in Happing