Dieses moderne und großzügige Einfamilienhaus aus dem Jahr 1970 wurde 2011 umfassend modernisiert. Mit einer beeindruckenden Wohnfläche von ca. 199 m² bietet diese Immobilie viel Platz für die ganze Familie.
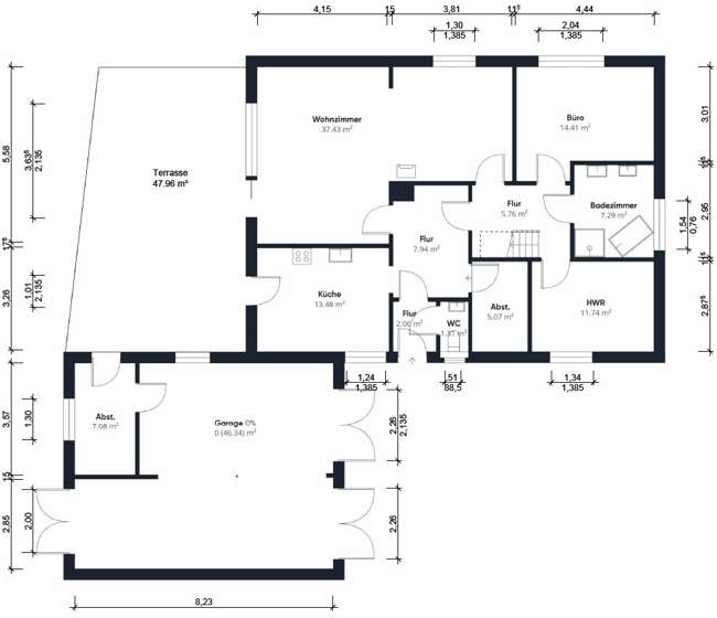
Der durchdachte Grundriss umfasst einen Flurbereich, eine Wohnküche sowie ein großzügiges Wohn- und Esszimmer mit Kaminofen. Zusätzlich steht Ihnen ein Büro, ein Vollbad mit Fenster, Gäste-WC, Hauswirtschaftsraum und Abstellraum zur Verfügung. Im oberen Geschoss erwarten Sie ein großer Flurbereich, ein komfortables Elternschlafzimmer mit Ankleideraum, Kinderzimmer mit abgetrenntem Wohnbereich, Büro sowie ein Duschbad mit WC und Fenster.
Ein besonderes Highlight ist die überdachte Terrasse, die sowohl von der Küche als auch vom Wohn- und Esszimmer aus zugänglich ist. Hier können Sie entspannen und den Blick auf den liebevoll angelegten Garten mit Naturblick genießen.
Die geräumige Doppelgarage mit vorgebautem Doppelcarport bietet nicht nur Platz für Ihre Fahrzeuge, sondern verfügt auch über einen praktischen Werkstattbereich und Abstellraum, der zusätzlichen Stauraum bietet.
Kernsaniertes Einfamilienhaus mit Doppelgarage und Blick ins Grüne am Ortsrand von Rastede (Obj.-Nr.
26180 Rastede
Die vollständige Adresse der Immobilie erhalten Sie vom Anbieter.
Auf Karte anzeigen
Die vollständige Adresse der Immobilie erhalten Sie vom Anbieter.
Finanzierungszertifikat
In nur zwei Minuten zu Ihrem persönlichen Finanzierungszertifkat.
Infos
| Haustyp | Einfamilienhaus |
|---|---|
| Etagenzahl | 2 |
| Wohnfläche ca. | 199 m2 |
| Nutzfläche | 53 m2 |
| Grundstücksfläche | 1.003 m2 |
| Zimmer | 6 |
| Badezimmer | 2 |
| Garage/Stellplatz | Garage |
| Anzahl Garage/Stellplatz | 2 |
Kosten
| Kaufpreis |
485.000 € |
|---|---|
| Provision |
3,57 % inkl. ges. MwSt. |
Finanzierungsrechner:
Kaufpreis:
600.000 €
Eigenkapital:
600.000 €
Monatliche Rate
0 €
Effektiver Jahreszins
0 %
Sollzinsbindung
10 Jahre
Bausubstanz & Energieausweis
| Baujahr | 1970 |
|---|---|
| Objektzustand | Saniert |
| Heizungsart | Zentralheizung |
| Wesentliche Energieträger | Erdgas leicht |
| Energieausweis | liegt vor |
| Energieausweistyp | Bedarfsausweis |
| Energieverbrauchskennwert | 132,4 kWh/(m²*a) |
| Energieeffizienzklasse | E |
132,4
kWh/(m²*a)
Energieeffizienzklasse E
- A+
- A
- B
- C
- D
- E
- F
- G
- H
- 0
- 25
- 50
- 75
- 100
- 125
- 150
- 175
- 200
- 225
- >250
Beschreibung des Objekts
Ausstattung
- Massivbauweise
- Leitungen im EG von 2000 und im DG von 2011
- Sat-Anlage
- Hauseingangstür Kunststoff von 2011
- Kunststofffenster mit Dreifachverglasung von 2011 sowie teilweise elektrischen Rollläden (2 noch von 2000)
- PSK-Tür zur Terrasse mit Doppelverglasung
- Badezimmer mit Dusche und Wanne im EG von 2011
- Badezimmer mit Dusche im DG von 2011
- Gaszentralheizung der Marke Wolf von 2011
- Kaminofen
- überdachte Terrasse
- Holzzwischendecke
- Dachsanierung von 2011 (neuer Dachstuhl, Dämmung, Hartfaserdämmung u. Eindeckung)
- 3 Dachflächenfenster mit elektrischen Rollläden
- Doppelgarage
- Doppelcarport von 2011
- Grundwasserbohrung
Lage
Rastede ist ein charmanter Ort, der für seine idyllische Lage und seine historische Bedeutung mit dem Rasteder Schloss und Palais mit seinen jährlichen Veranstaltungen überregional bekannt ist.
Die Umgebung bietet eine Vielzahl von Freizeitmöglichkeiten mit Wanderwegen und einen Golfplatz.
Die Lage des Hauses ist ideal für Familien, die eine ruhige und dennoch gut angebundene Umgebung suchen.
In der Nähe finden Sie alle notwendigen Annehmlichkeiten, wie Geschäfte, Supermärkte, Schulen und öffentliche Verkehrsmittel.
Die Autobahnanbindung ist ebenfalls sehr gut, sodass Sie schnell und bequem zu anderen Städten gelangen können.
Sonstige Angaben
Meyer Immobilien - Professionalität, die sich für Sie auszahlt!
Wir sind das älteste, ortsansässige, inhabergeführte und unabhängige Familienunternehmen der Immobilienwirtschaft in 26180 Rastede.
Unsere Privat- und Firmenkunden werden von uns persönlich betreut und genießen die Vorteile einer erfahrenen Interessenvertretung mit langjähriger Erfahrung.
Wir beraten Sie professionell
in allen Immobilienfragen, bei Verkauf, Vermietung, Verpachtung, Verwaltung, Finanzierung, Nachlassregelung, Abwendung von Zwangsversteigerungen usw.
Durch uns finden Sie
Ihre großzügige Villa, das charmante Einfamilienhaus, die Doppelhaushälfte oder das Reihenhaus, die attraktive Wohnung in guter Lage, das gefragte ländliche Wohnhaus, den Resthof, das Grundstück für Ihr individuelles Bauvorhaben, die Gewerbeimmobilie, die Agrarimmobilie, die landwirtschaftliche Nutzfläche, die sichere Anlageimmobilie, die erholsame Ferienimmobilie und vieles mehr.
Es ist unser Bestreben,
Sie durch unser vielseitiges Dienstleistungsangebot in einer künftigen und angenehmen Geschäftsverbindung möglichst langjährig über Generationen zu begleiten.
Vertrauen daher auch Sie,
wie eine große Anzahl zufriedener Kunden, auf unsere Erfahrung und Fachkompetenz!
Wir freuen uns auf Ihre Kontaktaufnahme!
Ihr Team von Meyer Immobilien
Grundriss
Grundriss Erdgeschoss
>
>
Grundriss Dachgeschoss
>
>
Adresse
26180 Rastede
Interessante Orte
Preis- und Lageinformationen
Preistrend für Bestandsimmobilien in Rastede