Für Bauherren, die das Besondere lieben: Das Massivhaus Aura bietet pure Entfaltung für die gesamte Familie. Große und lichtdurchflutete Räume bieten eine unverwechselbare Wohlfühl-Atmosphäre. Zusätzlich bietet das Kellergeschoss Platz für eine Einliegerwohnung für das Mehrgenerationenwohnen oder für Mieter.
Im Erdgeschoss befindet sich der helle Wohn- und Essbereich mit direkt angrenzender Küche. Durch einen Flur gelangt man in das Gästezimmer. Praktisch ist das direkt angrenzende Duschbad für den Gast. Das Lifestyle-Haus Aura ist ein Haus für Gartenfreunde: In diesem Haus kommen Sie aus allen Räumen im Erdgeschoss direkt in den Garten.
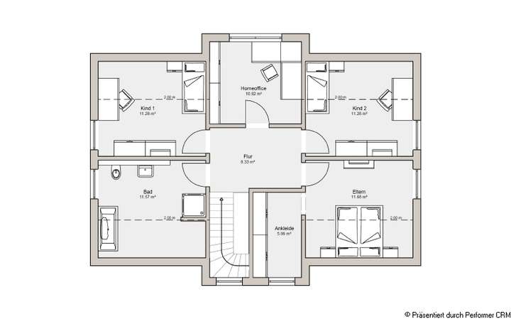
Das Dachgeschoss bietet zwei große Kinderzimmer, ein Home-Office und das Eltern-Schlafzimmer mit separater Ankleide. Das Badezimmer wird aufgrund der Größe und Aufteilung schnell zur individuellen Wellness-Landschaft.
Im Kellergeschoss befindet sich eine Einliegerwohnung mit offen Wohnbereich, Schlafzimmer, Bad und Abstellraum. Im Kellergeschoss befinden sich außerdem ein Raum für die Haustechnik und ein Vorkeller.
Ein Familienhaus mit besonderer Ausstrahlung von allen Seiten!
Dieses Haus wird nach Ihren individuellen Wünschen geplant und ausgestattet!
Haus mit Einliegerwohnung
06188 Landsberg
Die vollständige Adresse der Immobilie erhalten Sie vom Anbieter.
Auf Karte anzeigen
Die vollständige Adresse der Immobilie erhalten Sie vom Anbieter.
Finanzierungszertifikat
In nur zwei Minuten zu Ihrem persönlichen Finanzierungszertifkat.
Infos
| Haustyp | Einfamilienhaus |
|---|---|
| Wohnfläche ca. | 223 m2 |
| Grundstücksfläche | 2.418 m2 |
| Zimmer | 8 |
| Schlafzimmer | 5 |
| Badezimmer | 3 |
| Anzahl Garage/Stellplatz | 2 |
Kosten
| Kaufpreis |
860.070 € |
|---|---|
| Provision | Nein |
Finanzierungsrechner:
Kaufpreis:
600.000 €
Eigenkapital:
600.000 €
Monatliche Rate
0 €
Effektiver Jahreszins
0 %
Sollzinsbindung
10 Jahre
Bausubstanz & Energieausweis
| Baujahr | 2026 |
|---|---|
| Bauphase | Haus in Planung (projektiert) |
| Objektzustand | Erstbezug |
| Qualität der Austattung | Gehoben |
| Heizungsart | Wärmepumpe |
| Wesentliche Energieträger | Strom |
| Energieausweistyp | Bedarfsausweis |
| Energieverbrauchskennwert | 19,0 kWh/(m²*a) |
| Energieeffizienzklasse | A+ |
19,0
kWh/(m²*a)
Energieeffizienzklasse A+
- A+
- A
- B
- C
- D
- E
- F
- G
- H
- 0
- 25
- 50
- 75
- 100
- 125
- 150
- 175
- 200
- 225
- >250
Beschreibung des Objekts
Ausstattung
Hauptwohnung: 6 Zimmer, offene Küche, Diele, 2 Flure, Bad, Dusche, Ankleide, Hauswirtschaftsraum, Balkon - Einliegerwohnung: 2 Zimmer, offene Küche, Diele, Bad, Abstellraum, Flur
Das gezeigte Traumhaus im Überblick:
+ Schlüsselfertiges Massivhaus im Sinne der Ausstattungsbeschreibung "Edition 25"
+ Zukunftsorientierte Energieausstattung in Form einer Luft-Wasser-Wärmepumpe und Fußbodenheizung sowie einer kontrollierten Wohnraumlüftung mit Wärmerückgewinnung
+ Inklusive Bodenplatte
Beste Markenausstattung in jedem Kern-Haus:
+ Zimmermannsmäßiger Dachstuhl aus Konstruktionsvollholz
+ Dacheindeckung mit Betondachsteinen von Braas
+ Hochwertiger Kunstharz-Außenputz für eine langlebige Fassade
+ Vollständige Badausstattung von Villeroy & Boch mit Badewanne und flacher Duschwanne sowie einer Echtglasduschkabine
+ Fliesen von Villeroy & Boch in Bad und WC
+ Haustür mit 5-fach-Sicherheitsverriegelung
+ Erstklassige Innentüren der Marke Herholz
+ Fenster mit 3-Scheiben-Wärmeschutzverglasung und Rollläden
+ Stahl-Holz-Treppe mit individueller Farbgestaltungsmöglichkeit
+ Vollständige und überdurchschnittliche Elektroausstattung inklusive Klingelanlage und Netzwerkdosen
+ Rauchmelder für Ihre Sicherheit
+ Alle Leistungen aus einer Hand
+ Alle Planungs- und Architektenleistungen
+ Einsatz regionaler Handwerksbetriebe
+ Baubegleitende 5-Phasen-TÜV-Prüfung und Blower-Door-Test
+ Individuelle Anpassung auf Ihre Bedürfnisse
+ Auf Wunsch mit Keller erhältlich
+ Auf Wunsch mit weiteren Energietechniken erhältlich
Lage
- ruhig gelegenes Grundstück in Klepzig
- sehr gute Anbindung an die A 14
- schnell in Halle - Entfernung 10 Kilometer
- Einkaufsmöglichkeiten in Landsberg
- ebenso Kindergarten
Sonstige Angaben
Ist dies schon Ihr Traumhaus? Oder dürfen wir ein individuelles Haus für Sie planen?
Ich freue mich, Ihre Wünsche zu erfahren und Ihre Fragen zu beantworten.
Sie erreichen mich unter 0341-2527132
Ihre Grit Hohberg
Kern-Haus
Seit 1994 realisieren wir individuelle Häuser rund um Leipzig und Halle. Über 1.900 zufriedene Bauherren in der Region sprechen für sich.
Unser engagiertes Team plant und baut massive Häuser und begleitet Sie mit umfassendem Service.
+ Eigener Architekt
+ Preisgarantie
+ Verbindliche Bauzeit
+ 5-Phasen-TÜV-Prüfung
Der in dieser Anzeige gezeigte Preis versteht sich inklusive Grundstück und exklusive der Baunebenkosten.
Grundriss
Grundriss Erdgeschoss
>
>
Grundriss Dachgeschoss
>
>
Adresse
06188 Landsberg
Interessante Orte
Preis- und Lageinformationen
Preistrend für Bestandsimmobilien in Landsberg