Objektnr: 1069327
Im malerischen Ortsteil Neuhaus entstand im Jahr 2023 dieses exklusive Einfamilienhaus, das höchsten Wohnansprüchen gerecht wird – eingebettet in die idyllische Voralpenlandschaft des bayerischen Oberlands. Das von der renommierten Isartaler Holzhaus GmbH & Co. KG errichtete Anwesen überzeugt durch erstklassige handwerkliche Qualität, nachhaltige Bauweise und wohngesundes Raumklima. Der Baustoff Holz steht hier sinnbildlich für natürliches, langlebiges und energieeffizientes Wohnen im Einklang mit der Umgebung.
Mit einer Wohnfläche von ca. 207,56 m² und einer Gesamtfläche von ca. 331,13 m² bietet das Haus ein großzügiges Raumkonzept über Erd- und Obergeschoss auf einem 990 m² großen, sonnigen Grundstück, das Ruhe und einen herrlichen Bergblick garantiert. Das Haus verfügt über insgesamt 4 Zimmer, wobei das große, lichtdurchflutete Wohnzimmer nahtlos in die offene Küche übergeht. Der überdachte Eingangsbereich mit Fenster führt in ein helles Entree mit überdurchschnittlicher Deckenhöhe, das sofort ein Gefühl von Weite und Exklusivität vermittelt. Im Erdgeschoss befinden sich neben dem Gäste-WC mit Fenster und Einzelwaschbecken eine Garderobe, ein großzügiger Flur sowie ein Hauswirtschaftsraum mit Waschmaschinen- und Trockneranschluss und integriertem Heizraum.
Der Wohn- und Essbereich ist mit einem architektonisch integrierten Kamin mit großzügiger Glasfront ausgestattet, dessen offener Charakter für Wärme und besondere Atmosphäre sorgt, während die effiziente Wärmepumpenanlage mit Fußbodenheizung in allen Räumen ökologisch, komfortabel und modern zugleich Wohlfühltemperaturen gewährleistet.
Alle Fenster sind dreifach verglast, im Erdgeschoss zusätzlich mit elektrischen Rollläden und Fensterläden ausgestattet. In den Wohnbereichen sorgt hochwertiges Holzparkett, in den Bädern hochwertige Fliesen, für ein modernes und zugleich behagliches Wohngefühl. Insgesamt stehen zwei Bäder im Obergeschoss sowie ein Gäste-WC im Erdgeschoss zur Verfügung. Das Hauptbad ist mit Badewanne, bodengleicher Dusche, Doppelwaschbecken und Balkonzugang ausgestattet, während das zweite Bad über bodengleiche Dusche, Einzelwaschbecken und Fenster verfügt. Zwei Balkone, einer nach Südwest und einer nach Nordost ausgerichtet, sowie zwei Terrassen mit Südost- und Nordostausrichtung laden zu jeder Tageszeit zum Verweilen ein.
Der angelegte Garten bietet sonnige Ruheplätze und einen herrlichen Panoramablick. Ein Außenwasseranschluss, sowie ein Starkstromanschluss, zum Beispiel für eine Wallbox, unterstreichen den nachhaltigen und zukunftsorientierten Charakter dieser Immobilie. Für Fahrzeuge stehen eine Doppelgarage mit elektrischem Tor und zusätzlicher Vorstellfläche sowie ein Außenstellplatz zur Verfügung.
Das Haus befindet sich derzeit in vermietetem Zustand. Mit einer Jahresnettokaltmiete von rund 42.000 € eignet sich die Immobilie sowohl als hochwertige Kapitalanlage als auch zur späteren Eigennutzung, weitere Details zum Mietverhältnis werden bei ernsthaftem Interesse gerne bereitgestellt.
Kurzum: Dieses neuwertige, architektonisch ansprechende und technisch moderne Einfamilienhaus in einer sehr guten Lage vereint Premiumqualität, Nachhaltigkeit und Wohnkomfort auf höchstem Niveau – eine seltene Gelegenheit für Liebhaber von Stil und alpinem Wohnflair.
Weiterführende Informationen:
Weitere Details zur Immobilie – einschließlich Wohnflächenberechnungen, Bauunterlagen und technischer Spezifikationen – erhalten Sie in unserem Kundendatenraum.
Modernes, neuwertiges Einfamilienhaus in Schliersee-Neuhaus – Nachhaltig wohnen mit Bergblick
83727 Schliersee
Die vollständige Adresse der Immobilie erhalten Sie vom Anbieter.
Auf Karte anzeigen
Die vollständige Adresse der Immobilie erhalten Sie vom Anbieter.
Finanzierungszertifikat
In nur zwei Minuten zu Ihrem persönlichen Finanzierungszertifkat.
Infos
| Haustyp | Einfamilienhaus |
|---|---|
| Etagenzahl | 2 |
| Wohnfläche ca. | 207 m2 |
| Grundstücksfläche | 990,2 m2 |
| Bezugsfrei ab | nach Absprache |
| Zimmer | 4 |
| Schlafzimmer | 3 |
| Badezimmer | 2 |
| Garage/Stellplatz | Garage |
| Anzahl Garage/Stellplatz | 3 |
Kosten
| Kaufpreis |
2.320.000 € |
|---|---|
| Provision |
2,98 % Die Provision i.H.v. 2,98 % inkl. MwSt. ist mit Kaufvertragsbeurkundung fällig, sofern der Verkaufspreis über 83.000,00 € liegt. Liegt der Verkaufspreis dagegen bei/unter 83.000,00 €, ist die fest vereinbarte Mindestprovision i.H.v. mind. 5.950,00 € inkl. MwSt. mit Kaufvertragsbeurkundung fällig. Die Mindestprovision fällt insg. nur einmal an, wodurch Verkäufer und Käufer die Mindestprovision dann jeweils mit 2.975,00 € inkl. MwSt. tragen. |
| Mieteinnahmen | 3.500 € |
Finanzierungsrechner:
Kaufpreis:
600.000 €
Eigenkapital:
600.000 €
Monatliche Rate
0 €
Effektiver Jahreszins
0 %
Sollzinsbindung
10 Jahre
Bausubstanz & Energieausweis
| Baujahr | 2023 |
|---|---|
| Bauphase | Haus fertig gestellt |
| Objektzustand | Neuwertig |
| Qualität der Austattung | Gehoben |
| Heizungsart | Zentralheizung |
| Wesentliche Energieträger | Strom |
| Energieausweis | liegt vor |
| Energieausweistyp | Bedarfsausweis |
| Energieverbrauchskennwert | 21,8 kWh/(m²*a) |
| Energieeffizienzklasse | A+ |
21,8
kWh/(m²*a)
Energieeffizienzklasse A+
- A+
- A
- B
- C
- D
- E
- F
- G
- H
- 0
- 25
- 50
- 75
- 100
- 125
- 150
- 175
- 200
- 225
- >250
Beschreibung des Objekts
Ausstattung
+ Selbstnutzung oder weitere Vermietung (aktuell vermietet zu JNKM von ca. 42.000 €)
+ Erholung pur: Der Garten auf ca. 990 m² großzügigem Grund lädt zum Verweilen ein - 2 Terrassen und 2 Balkone bereichern das Erlebnis
+ Die Immobilie präsentiert sich in einem neuwertigen, äußerst gepflegten und gehobenen Gesamtzustand
+ Doppelgarage und 1 Außenstellplatz
Lage
Das Objekt befindet sich im Ortsteil Neuhaus der Gemeinde Schliersee, eingebettet in die idyllische Voralpenlandschaft Bayerns. Neuhaus ist bekannt für seine ruhige, naturnahe und gleichzeitig gut angebundene Lage – umgeben von Wäldern, Wiesen und den eindrucksvollen Gipfeln der bayerischen Alpen. Der Schliersee mit seiner Seepromenade und zahlreichen Freizeitmöglichkeiten liegt nur wenige Minuten entfernt.
Trotz der idyllischen Umgebung bietet die Lage eine hervorragende Infrastruktur:
Der Bahnhof Fischhausen-Neuhaus (Bayerische Oberlandbahn) befindet sich nur rund 2 km von der Immobilie entfernt und ermöglicht direkte Verbindungen nach München (Fahrtzeit ca. 1–1,5 Stunden). Die Autobahn A 8 (Ausfahrt Weyarn) ist in etwa 22 km erreichbar und verbindet die Region bequem mit der Landeshauptstadt sowie dem gesamten oberbayerischen Raum. Öffentliche Busverbindungen führen regelmäßig in die umliegenden Orte und Freizeitregionen, darunter die Tegernsee- und Spitzingsee-Gebiete.
Im Ortsteil Neuhaus finden sich vielfältige Einkaufsmöglichkeiten des täglichen Bedarfs: Bäcker, Metzgerei, Supermarkt und Gasthof sind innerhalb weniger Minuten erreichbar. Eine Apotheke, medizinische Grundversorgung sowie eine Allgemeinarztpraxis sind ebenfalls direkt vor Ort vorhanden. Für Familien bietet die Umgebung eine hervorragende Bildungsinfrastruktur: Der Kindergarten St. Josef befindet sich in Neuhaus, die Grund- und Mittelschule Schliersee liegt nur rund 10 Minuten entfernt im Ortszentrum.
Schliersee-Neuhaus steht für „Entspannung pur“ inmitten der oberbayerischen Alpen. Das Zusammenspiel aus See- und Bergnähe garantiert einen außergewöhnlich hohen Freizeitwert zu jeder Jahreszeit – ob Wandern, Mountainbiken, Skifahren, Rodeln oder Schwimmen. Der Spitzingsee, die Brecherspitz sowie der Tegernsee (ca. 15 km entfernt) zählen zu den beliebtesten Ausflugszielen der Region.
Das Wohnumfeld ist geprägt von gewachsener Struktur, viel Grün und sehr ruhiger Lage mit nur geringem Durchgangsverkehr. Die Süd-Nord-Ausrichtung sorgt für eine ideale Besonnung und ein lichtdurchflutetes Wohngefühl.
Kurz gesagt:
Diese Lage verbindet Naturverbundenheit, Ruhe und gehobenes Wohnen mit einer sehr guten Erreichbarkeit – ein Ort, an dem Lebensqualität keine Kompromisse kennt und der wahre bayerische Wohnkultur verkörpert.
Sonstige Angaben
Vereinbaren Sie noch heute einen Besichtigungstermin!
_____________________________________________________
Alle Angaben sind ohne Gewähr und basieren ausschließlich auf Informationen, die uns von unserem Auftraggeber zur Verfügung gestellt wurden. Wir übernehmen keine Gewähr für die Vollständigkeit, Richtigkeit und Aktualität der Angaben.
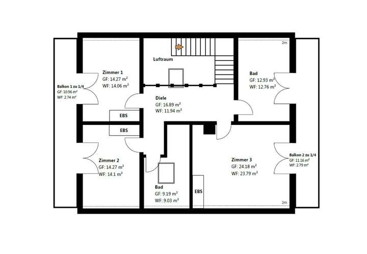
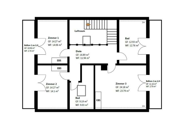
Grundriss
Grundriss Skizze EG
>
>
Grundriss Skizze DG
>
>
Adresse
83727 Schliersee
Interessante Orte
Preis- und Lageinformationen
Preistrend für Bestandsimmobilien in Schliersee