Diese zum Bau angebotene, ca. 106 m² große Grundstücksfläche befindet sich im Hofbereich eines ca. 1946 in Massivbauweise errichteten, gepflegten Mehrfamilienhauses im Stadtteil Rennweg in Nürnberg. Die entsprechenden Pläne sind bereits genehmigt und können auch so umgesetzt werden.
Der erstellte Plan für die Bebauung des 3-Parteien-Hauses auf ca. 78 m² bietet eine exemplarische Wohnfläche von ca. 130 m², welche auf 2 Wohnungen mit je einem Balkon im 1. OG und eine Loft-Wohnung mit Terrasse und Balkon im 2. OG verteilt sind. Des Weiteren ist eine ca. 28 m² große Lagerfläche geplant, die sich toll für Fahrradabstellplätze und auch mit zusätzlichen Ladestationen für E-Fahrräder ausgestattet werden kann.
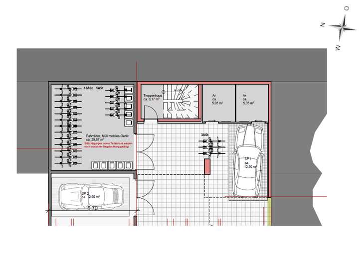
Ein möglicher Schnitt könnte wie folgt sein:
Apartment 1 (ca. 26,2 m²):
Im ruhigen Hofbereich des Haupthauses angekommen, gelangt man geradeaus zum Eingang des zu erbauenden Rückgebäudes und über das Treppenhaus ins 1. OG. Oben angekommen verfügt das erste Appartement zu Ihrer Rechten über einen ca. 17,5 m² großen Wohn- und Schlafbereich mit Kochzeile, ein ca. 5,5 m² großes Bad sowie einen ca. 6,3 m² großen West-Balkon.
Apartment 2 (ca. 40,3 m²):
Gegenüber befindet sich das zweite Apartment, welches über einen ca. 29,8 m² großen Wohn- und Schlafbereich mit Kochzeile, ein ca. 5,5 m² großes Bad sowie einen ca. 9,8 m² großen West-Balkon verfügt.
.
Apartment 3 (ca. 63,5 m²):
Im 2. OG befindet sich die exklusive, offen gestaltete Wohnung mit Loft-Charakter – sowohl mit Balkon als auch Terrasse.
Ein Highlight der Wohnung ist der großzügig geschnittene Wohn-, Ess- und Kochbereich mit einer Gesamtfläche von ca. 28,3 m² sowie eine ca. 17,4 m² große West-Terrasse. Das geräumige Bad verfügt über ca. 7,2 m² und bietet tolle Gestaltungsmöglichkeiten – ob mit begehbarer Dusche oder einer Badewanne. Das offene Raumkonzept ermöglicht vielseitige Nutzungsmöglichkeiten und schafft eine angenehme Weite. Der ca. 14,4 m² große Schlafbereich kann offen, jedoch trotzdem diskret gestaltet werden, sodass eine Separierung zum Wohnbereich gewährleistet ist. Die Möglichkeit vom Schlafbereich auf den ca. 9,8 m² großen West-Balkon zu gelangen, rundet das Gesamtpaket ab.
Auf dem Dach kann bequem eine Wärmepumpe mit Photovoltaik installiert werden, sodass der neuste Standard gewährleistet ist und energetische Anforderungen erfüllt sind.
Im Erdgeschoss entsteht ein gemeinschaftlicher, ca. 30 m² großer Fahrrad- und Müllraum. Bei der genehmigten Planung sind zudem zwei Abstellräume mit einer Fläche von jeweils ca. 5,1 m², Fahrradabstellmöglichkeiten sowie ein KFZ-Stellplatz berücksichtigt worden.
Gerne stehen wir Ihnen für eine Besichtigung zur Verfügung und freuen uns darauf, Ihnen dieses tolle Bauprojekt persönlich zu präsentieren.
Grundstück zur Bebauung eines Rückgebäudes mit 3 Apartments im zentral gelegenen Rennweg, Nürnberg
90489 Nürnberg
Die vollständige Adresse der Immobilie erhalten Sie vom Anbieter.
Auf Karte anzeigen
Die vollständige Adresse der Immobilie erhalten Sie vom Anbieter.
Finanzierungszertifikat
In nur zwei Minuten zu Ihrem persönlichen Finanzierungszertifkat.
Infos
| Vermarktungsart | Kaufen |
|---|---|
| Grundstücksfläche | 106 m2 |
| Erschließung | Unerschlossen |
| Empfohlene Nutzung | Mehrfamilienhaus |
| Bebaubar nach | wie Nachbarbebauung |
| Verfügbar ab | sofort |
Kosten
| Miete pro Jahr |
209.000 € |
|---|---|
| Provision |
3,57% inkl. gesetzlicher MwSt. |
Finanzierungsrechner:
Kaufpreis:
600.000 €
Eigenkapital:
600.000 €
Monatliche Rate
0 €
Effektiver Jahreszins
0 %
Sollzinsbindung
10 Jahre
Beschreibung des Objekts
Lage
Das Mehrfamilienhaus liegt im beliebten Nürnberger Stadtteil Rennweg, etwa 2 Kilometer nordöstlich der Altstadt. Diese Lage zeichnet sich durch ihre hervorragende Mischung aus urbanem Flair, guter Infrastruktur und Nähe zur Natur aus.
Hier profitieren Bewohner von einer ausgezeichneten Infrastruktur, die sowohl eine schnelle Verkehrsanbindung als auch eine gute Nahversorgung umfasst.
Die U-Bahn-Station „Schoppershof“ und die Bushaltestelle „Stadtpark Nürnberg“ sind beide nur etwa 6 Minuten fußläufig entfernt und bieten eine bequeme Anbindung an das öffentliche Verkehrsnetz.
Über die nahe Nordtangente ist zudem ein schneller Zugang zur Bundesstraße B2 und B14 sowie zu den Autobahnen A3 und A6 gegeben.
In puncto Einkaufsmöglichkeiten bietet die Umgebung alles, was man für den täglichen Bedarf benötigt. Neben einer Vielzahl von Supermärkten, Fachgeschäften, Apotheken sowie zahlreichen Ärzten und Banken stellt das nahegelegene Einkaufszentrum Mercado ein besonderes Highlight dar. Nur wenige Gehminuten entfernt, bietet es eine breite Palette an Einkaufsmöglichkeiten, darunter Modegeschäfte, Elektronikanbieter und ein vielseitiges gastronomisches Angebot, das zum Bummeln und Verweilen einlädt.
Insgesamt bietet dieser Standort eine perfekte Mischung aus urbanem Wohnen, idealer Anbindung und einer Vielzahl an Freizeitmöglichkeiten. Diese Lage ist sowohl für Familien als auch für Berufstätige und Studierende ein attraktiver Wohnort.
Auch für Familien und Studierende ist die Lage ideal, da zahlreiche Bildungseinrichtungen zur Verfügung stehen. In der Umgebung befinden sich Kindergärten, Grundschulen sowie weiterführende Schulen. Die Friedrich-Alexander-Universität Erlangen-Nürnberg sowie die Technische Hochschule Nürnberg Georg Simon Ohm sind ebenfalls nur wenige Minuten entfernt und machen den Standort besonders attraktiv für Studierende.
Freizeitaktivitäten und Erholungsmöglichkeiten kommen hier ebenfalls nicht zu kurz. Die nahegelegene Wöhrder Wiese sowie der Wöhrder See bieten vielfältige Möglichkeiten für Aktivitäten wie Joggen, Radfahren oder entspannte Spaziergänge. Zusätzlich sorgen Parks und Grünflächen in der Umgebung, darunter der beliebte Stadtpark Nürnberg, für weiteren Erholungsraum. Sportbegeisterte finden in der Nähe zudem zahlreiche Angebote in Fitnessstudios und Sportvereinen.
Insgesamt bietet dieser Standort eine perfekte Mischung aus urbanem Wohnen, idealer Anbindung und einer Vielzahl an Freizeitmöglichkeiten. Diese Lage ist sowohl für Familien als auch für Berufstätige und Studierende ein attraktiver Wohnort.