Einfamilienhaus mit Einliegerwohnung in Freudenberg – Heisberg mit Garage und Carport
Diese geräumige Immobilie in ruhiger, naturnaher Lage von Freudenberg-Heisberg mit großem sonnigem Grundstück, ist ein echter Wohlfühlort. Es handelt sich um individuell geplantes Massivhaus mit Einliegerwohnung, Garage und Carport.
Das Haus wurde 1967 fertiggestellt und später wurde der große Multifunktionsraum des Kellers zu einer Einliegerwohnung mit ca. 47 m² Wohnfläche umgebaut.
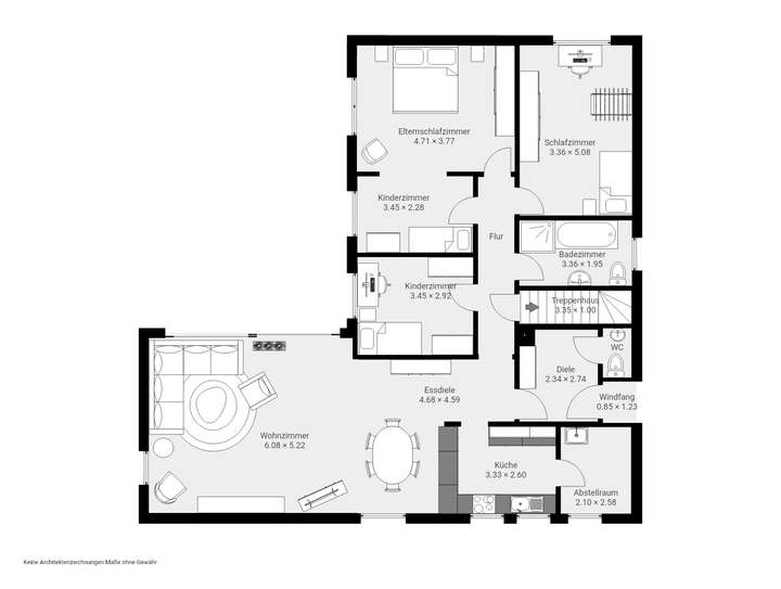
Das Erdgeschoss verfügt auf etwa 135 m² Wohnfläche über ein großes und helles Wohnzimmer mit angeschlossener Essdiele, einer Küche mit HWR, ein Badezimmer, ein Gäste-WC und ursprünglich über vier Schlafzimmer. Ein Kinderzimmer wurde inzwischen als Ankleidezimmer dem großen Elternschlafzimmer zugefügt. Da man im Erdgeschoss keine Treppen überwinden muss, eignet sich der Grundriss auch für einen alters- oder behindertengerechten Umbau. Aus dem Wohnzimmer gelangt man auf die geschützte Terrasse mit Südausrichtung und Blick über das Tal.
Die Einliegerwohnung hat einen separaten Eingang auf der Ostseite und verfügt über ein großes Wohnzimmer, ein Schlafzimmer, Küche und Essbereich sowie ein Badezimmer mit angeschossenem Abstellraum. Die Wohnung ist hell und funktional.
Der Keller verfügt darüber hinaus über zwei große Kellerräume, Garage, Tankraum und Heizungsraum. Die Buderus Ölheizung wurde 1987 erneuert. Es handelt sich um eine Niedertemperaturheizung.
Die Immobilie wurde damals als unterkellerter Winkelbungalow im Stile der Architekten-häuser der damaligen Zeit mit Flachdach erbaut. Später wurde das Dach mit Trapezblechen gedeckt. Im Zuge einer energetischen Sanierung, könnte man mit einem Rückbau des aufgesetzten Daches den ursprünglichen Charakter des Gebäudes wieder herstellen.
In der Vergangenheit wurden bereits etwa zwei Drittel der Fassade isoliert und einige isolierverglaste Alufenster durch wärmeisolierte Kunststofffenster mit Rollläden ersetzt.
Diese grundsolide Immobilie in wunderschöner Umgebung, ist ein toller Ort für Familien, die nach einer ruhigen und naturnahen Umgebung suchen.
Das fast 2.000 m² große Grundstück hat den gesamten Tag Sonne und ist vielseitig nutzbar. Durch die große Grundstücksfläche auf der Rückseite des Hauses und den angrenzenden Weideflächen, könnte das Anwesen beispielsweise auch für Pferdeliebhaber sehr interessant sein.
Einfamilienhaus mit Einliegerwohnung, Garage und Carport in Heisberg
57258 Freudenberg
Die vollständige Adresse der Immobilie erhalten Sie vom Anbieter.
Auf Karte anzeigen
Die vollständige Adresse der Immobilie erhalten Sie vom Anbieter.
Finanzierungszertifikat
In nur zwei Minuten zu Ihrem persönlichen Finanzierungszertifkat.
Infos
| Haustyp | Einfamilienhaus |
|---|---|
| Etagenzahl | 2 |
| Wohnfläche ca. | 183 m2 |
| Nutzfläche | 131 m2 |
| Grundstücksfläche | 1.984 m2 |
| Zimmer | 9 |
| Schlafzimmer | 5 |
| Badezimmer | 2 |
| Garage/Stellplatz | Garage |
| Anzahl Garage/Stellplatz | 2 |
Kosten
| Kaufpreis |
330.000 € |
|---|---|
| Provision |
2,975% 2,975% Käuferprovision, verdient und fällig mit Beurkundung des notariellen Kaufvertrages. Der Immobilienmakler hat einen provisionspflichtigen Maklervertrag mit dem Verkäufer in der gleichen Höhe abgeschlossen. |
Finanzierungsrechner:
Kaufpreis:
600.000 €
Eigenkapital:
600.000 €
Monatliche Rate
0 €
Effektiver Jahreszins
0 %
Sollzinsbindung
10 Jahre
Bausubstanz & Energieausweis
| Baujahr | 1967 |
|---|---|
| Bauphase | Haus fertig gestellt |
| Objektzustand | Renovierungsbedürftig |
| Qualität der Austattung | Normal |
| Heizungsart | Zentralheizung |
| Wesentliche Energieträger | Öl |
| Energieausweis | liegt vor |
| Energieausweistyp | Bedarfsausweis |
| Energieverbrauchskennwert | 199,6 kWh/(m²*a) |
| Energieeffizienzklasse | F |
199,6
kWh/(m²*a)
Energieeffizienzklasse F
- A+
- A
- B
- C
- D
- E
- F
- G
- H
- 0
- 25
- 50
- 75
- 100
- 125
- 150
- 175
- 200
- 225
- >250
Beschreibung des Objekts
Ausstattung
Das familienfreundliche Anwesen verfügt über eine solide Ausstattung. Besonders hervorzuheben sind:
- Zwei Bäder und ein Gäste-WC.
- Isolierverglaste Alufenster und einige wärmeisolierte Kunststofffenster mit Rollläden.
- Teildämmung der Außenfassade.
- Decken- und Wandvertäfelungen.
- Böden: Fliesen und Teppichboden.
- Terrasse mit Südausrichtung und Blick über das Tal.
- Gepflegte Einbauküche mit Wandschrank und Durchreiche ins Esszimmer.
- Garage, Carport und Stellplatz.
- Einliegerwohnung.
- Großer Garten.
Lage
Die Immobilie hat ihren sonnigen Standort in einer ruhigen Sackgasse am Rande des Ortes mit angrenzenden Wiesen und wunderschönen Blick über das Tal.
Heisberg ist ein Stadtteil Freudenbergs und hat etwa 200 Einwohner. Das beliebte kleine Dorf liegt in etwa gleicher Entfernung zu Freudenberg und der Universitätsstadt Siegen. Beide Stadtzentren sind etwa 9 km entfernt und in 13 Minuten mit dem Auto erreichbar. Die Grundschule und der Kindergarten befinden sich im benachbarten Oberfischbach ca. 1,5 km entfernt.
Einkaufsmöglichkeiten findet man im 5 km entfernten Orten Niederfischbach oder Seelbach. In den 13 Minuten entfernten Städten Freudenberg und Siegen finden Sie alles, was Sie für den täglichen Bedarf benötigen. Die Auffahrt auf die A45 ist 5 km entfernt. Das kleine Dorf ist also auch für Pendler sehr verkehrsgünstig gelegen.
Sonstige Angaben
Auf einen Blick:
Grundstücksfläche: ca. 1.984m²
Wohnfläche Gesamt: ca. 183 m²
Nutzfläche: ca. 131 m²
Wohnfläche EG: ca. 136 m²
Wohnfläche KG: ca. 47 m² (Einliegerwohnung)
Zimmer EG: 6 Zimmer, Küche, Bad, WC, Diele, HWR.
Zimmer ELW KG: 3 Zimmer, Küche, Bad, Abstellraum, Windfang.
Kellerräume: 2 Kellerräume, Heizungsraum, Tankraum, Garage.
Heizung: Öl-Zentralheizung Buderus (Niedertemperatur) Baujahr 1987
Baujahr: 1967
Bauweise: Massiv
Stellplatz: Garage und Carport
Kaufpreis: 330.000,-- EUR
Provision: 2,975 % Käuferprovision inkl.d.gesetzl. MwSt.
Sonstige Angaben: Es liegt ein Energiebedarfsausweis vor. Dieser ist gültig bis 27.11.2035 Endenergieverbrauch beträgt 199,6 kWh/(m²*a). Wesentlicher Energieträger der Heizung ist Öl. Die Energieeffizienzklasse ist F.
Hinweis: Die in diesem Exposé genannten Angaben basieren auf Auskünften des Auftraggebers. Trotz sorgfältiger Prüfung der Objektangaben kann keine Gewährleistung, Haftung oder Garantie der Daten übernommen werden. Der Grundriss dient der Information, ist nicht maßstabsgerecht und somit nicht zur Maßentnahme geeignet.
Grundriss
Erdgeschoss
>
>
Kellergeschoss
>
>
Adresse
57258 Freudenberg
Interessante Orte
Preis- und Lageinformationen
Preistrend für Bestandsimmobilien in Freudenberg