Dachgeschoss mit Balkonplanung
Auf unserer Homepage können Sie einen Besichtigungstermin buchen (bitte Link in Ihren Browser kopieren): https://www.kirschundkirsch.de/immobilien/4-zimmerwohnung-dachgeschosswohnung-in-babelsberg-nord-balkonanbau-geplant-provisionsfrei.html
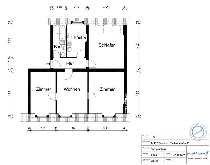
Diese 4-Zimmer-Wohnung im Dachgeschoss überzeugt auf 83 m² Wohnfläche mit einer durchdachten Raumaufteilung.
Beim Betreten der Wohnung gelangt man zunächst in den Flur, der ausreichend Platz für eine Garderobe bietet.
Linkerhand befindet sich das Bad, das mit einer Dusche und einem Waschmaschinenanschluss ausgestattet ist. Besonders praktisch: Das Bad ist tagesbelichtet und -belüftet.
Über den Flur ist ebenfalls linkerhand die Küche mit Grünblick in den Garten zu erreichen. Die Küche hat eine kompakte Größe für eine schöne Einbauküche. Die aktuelle Einbauküche gehört dem Mieter.
Vis-à-vis vom Eingang liegt das Hauptschlafzimmer mit Platz für ein großes Bett und Schränke. Dieser Raum war vorher einmal das Wohnzimmer der Wohnung.
Rechterhand liegt das aktuelle Wohnzimmer, von dem noch einmal 2 Schlafzimmer abgehen. Ursprünglich handelte es sich um eine 3-Zimmerwohnung mit 2 Schlafzimmern und einem großen Wohnzimmer. Das Ehemalige und sehr große Hauptschlafzimmer wurde dann neu aufgeteilt und in ein Kinderzimmer und einen Wohnzimmerteil getrennt. Ein weiteres Kinderzimmer hat den Zugang ebenfalls über den damit geschaffenen Wohnbereich.
Zur Wohnung gehört ein eigenes Kellerabteil. Der gemeinschaftliche Garten kann von allen Mietparteien genutzt werden. Es ist geplant für die Wohnungen im Ober- und Dachgeschoss Balkone anzubauen. Die Kosten pro Wohnung belaufen sich auf ca. 18.000,- € inklusive den Planungs- und Architektenleistungen, sowie Balkonzugangsumbauten und neuer Balkontüren.
Das Gebäude wurde zwischen 2000 und 2003 umfassend – nahezu kernsaniert – und befindet sich in einem technisch guten Zustand. Die solide Bausubstanz sowie die attraktive Lage innerhalb eines etablierten Wohngebiets bieten stabile Vermietungsperspektiven.
Diese Wohnung stellt eine interessante Möglichkeit für Kapitalanleger dar, die auf der Suche nach einer gepflegten Immobilie mit Potenzial zur langfristigen Wertsteigerung sind.
Die Wohnung ist langfristig vermietet. Die Mieteinnahmen belaufen sich auf jährlich 9.666 €.
Das Haus ist mit einer Gaszentralheizung ausgestattet.
Die Wohnung kann ab sofort vermietet übergeben werden. Da das Wohnhaus gerade in eine WEG aufgeteilt wurde, genießen die Mieter einen gesonderten Kündigungsschutz in Bezug auf Eigenbedarf, die Kündigungssperrfrist. Diese beläuft sich auf 3 Jahre ab Eigentumsumschreibung zzgl. der ordentlichen gesetzlichen Kündigungsfrist.
4-Zimmer-Dachgeschosswohnung in Babelsberg-Nord; Balkonanbau geplant – Provisionsfrei
14482 Potsdam
Die vollständige Adresse der Immobilie erhalten Sie vom Anbieter.
Auf Karte anzeigen
Die vollständige Adresse der Immobilie erhalten Sie vom Anbieter.
Finanzierungszertifikat
In nur zwei Minuten zu Ihrem persönlichen Finanzierungszertifkat.
Infos
| Wohnungskategorie | Etagenwohnung |
|---|---|
| Etage | 2 von 2 |
| Wohnfläche ca. | 83 m2 |
| Zimmer | 3 |
| Badezimmer | 1 |
Kosten
| Kaufpreis |
332.000 € |
|---|---|
| Provision | Nein |
| Mieteinnahmen | 806 € |
Finanzierungsrechner:
Kaufpreis:
600.000 €
Eigenkapital:
600.000 €
Monatliche Rate
0 €
Effektiver Jahreszins
0 %
Sollzinsbindung
10 Jahre
Bausubstanz & Energieausweis
| Baujahr | 1907 |
|---|---|
| Heizungsart | Zentralheizung |
| Wesentliche Energieträger | Gas |
| Energieausweis | liegt vor |
| Energieausweistyp | Verbrauchsausweis |
| Energieverbrauchskennwert | 86,8 kWh/(m²*a) |
| Energieeffizienzklasse | C |
86,8
kWh/(m²*a)
Energieeffizienzklasse C
- A+
- A
- B
- C
- D
- E
- F
- G
- H
- 0
- 25
- 50
- 75
- 100
- 125
- 150
- 175
- 200
- 225
- >250
Beschreibung des Objekts
Ausstattung
Solide Altbausubstanz und umfangreiche Sanierungen
Auf unserer Homepage können Sie einen Besichtigungstermin buchen (bitte Link in Ihren Browser kopieren): https://www.kirschundkirsch.de/immobilien/4-zimmerwohnung-dachgeschosswohnung-in-babelsberg-nord-balkonanbau-geplant-provisionsfrei.html
+ Historisches Treppenhaus aus Holz
+ Geplanter Balkonanbau
+ Zweifach verglaste Holzfenster in der gesamten Wohnung
... alle 15 Ausstattungsmerkmale finden Sie auf unserer Website unter dem
o.g. Link
Lage
Ruhiges Wohnen mit Top-Anbindung
Auf unserer Homepage können Sie einen Besichtigungstermin buchen (bitte Link in Ihren Browser kopieren): https://www.kirschundkirsch.de/immobilien/4-zimmerwohnung-dachgeschosswohnung-in-babelsberg-nord-balkonanbau-geplant-provisionsfrei.html
Das Wohnhaus befindet sich in Babelsberg-Nord, einem der schönsten und ruhigsten Wohngebiete Potsdams. Das Haus liegt in einer ruhigen Nebenstraße innerhalb eines gewachsenen Gründerzeitviertels, das durch seine historische Architektur und charmante Atmosphäre besticht.
In unmittelbarer Nähe finden sich Schulen wie Grundschulen, weiterführende Schulen und Kitas, die das familienfreundliche Umfeld abrunden. Auch die medizinische Versorgung ist hervorragend: Ärzte, Apotheken und zahlreiche Praxen sind fußläufig oder in kurzer Fahrzeit erreichbar.
Nur knapp 5 Minuten zu Fuß entfernt befindet sich die 2 km lange Karl-Liebknecht-Straße. Sie bietet alle Einrichtungen des täglichen Bedarfs wie Supermärkte, Bäckereien und Drogerien, ergänzt durch eine Vielzahl von Cafés, Restaurants und kleinen individuellen Läden mit ausgesuchten Angeboten. Hier lässt sich der Alltag entspannt gestalten. Samstags lädt der Bauernmarkt auf dem Weberplatz zum Einkaufen von frischen Lebensmitteln in besonderem Flair ein.
Die grüne Umgebung bietet hohe Lebensqualität und Freizeitmöglichkeiten: Der Park Babelsberg mit dem gleichnamigen Schloss liegt in kurzer Entfernung und eignet sich ideal für Spaziergänge oder Radtouren. Für Fußballfans ist das nahegelegene Karl-Liebknecht-Stadion ein weiterer Pluspunkt. Zusätzlich sorgt die Nähe zum Griebnitzsee für einen hohen Erholungsfaktor und Freizeitwert.
Erstklassige Verkehrsanbindung rundet die Wohnlage ab: In wenigen Gehminuten sind zwei Tramlinien und drei Buslinien (inklusive einer Nachtlinie) an der Rudolf-Breitscheid-Straße bzw. am Goetheplatz erreichbar. Die Tram 99 bringt Sie in nur 20 Minuten zum Nauener Tor und somit direkt in die Potsdamer Innenstadt. Der S-Bahnhof Babelsberg ist ebenfalls nur 10 Minuten zu Fuß entfernt und bietet Anschluss nach Berlin: In nur 35 Minuten erreicht man die Friedrichstraße, eine der bekanntesten Flaniermeilen der Hauptstadt.
Zusammengefasst bietet die Wohnlage eine ideale Kombination aus Ruhe, urbaner Infrastruktur und grüner Umgebung – perfekt für Familien, Berufspendler und Erholungssuchende gleichermaßen.
Sonstige Angaben
Unsere Besichtigungs-Qualität
Bei uns finden ausschließlich Einzelbesichtigungen, mit maximal zwei Personen / einer Familie, statt.
Haftungsausschluss
Soweit die in diesem Exposé enthaltenen Daten und Informationen auf den Angaben Dritter (insb. des Eigentümers) beruhen, übernehmen wir keine Gewähr für deren Richtigkeit. Alle Exposéangaben erfolgen nach bestem Wissen. Irrtum und Zwischenverkauf sind vorbehalten. Dieses Exposé dient Ihrer Erstinformation, als Rechtsgrundlage gilt allein der abgeschlossene Kaufvertrag.
Bildnachweis
Foto@sebastianrost.de
Grundriss
Bemaßter Grundriss
>
>
Adresse
14482 Potsdam
Interessante Orte
Preis- und Lageinformationen
Preistrend für Bestandsimmobilien in Babelsberg Nord