Dieses projektierte Fertighaus EVOLUTION 136 von Bien-Zenker vereint elegante Architektur mit einem durchdachten Konzept, das Ihren Wünschen und Vorstellungen gerecht wird. Mit einer beeindruckenden Wohnfläche von 135 Quadratmetern und fünf individuell gestaltbaren Zimmern bietet es ausreichend Platz für die ganze Familie. Die beiden Satteldach-Varianten verleihen dem Haus nicht nur einen modernen Charme, sondern sorgen auch für eine optimale Raumausnutzung. Im Erdgeschoss erwartet Sie ein offenes Wohn- und Arbeitskonzept, das durch eine geradläufige Treppe in die lichtdurchfluteten und großzügigen Schlafzimmer im Obergeschoss führt. Hier wird jedes Detail durchdacht, sodass Sie sich in Ihrem neuen Zuhause rundum wohlfühlen. Die intelligente Raumaufteilung garantiert sowohl Privatsphäre als auch Gemeinschaftsgefühl - ideal für Familien, die Wert auf ein harmonisches Zusammenleben legen.
Die Schlüsselfertig-Ausbaustufe ermöglicht Ihnen ein stressfreies Bauen. Bien-Zenker kümmert sich um den kompletten Hausbau inklusive Innenausbau, sodass Sie sich um nichts kümmern müssen. Vom Fundament bis zur letzten Schraube wird alles für Sie vorbereitet, sodass Sie nur noch einziehen und die Vorfreude auf Ihr neues Zuhause genießen müssen. Diese sorgenfreie Bauweise spart Ihnen Zeit und Nerven und sorgt dafür, dass Sie sich ganz auf die schönen Dinge im Leben konzentrieren können.
Bien-Zenker steht nicht nur für hochwertige Fertighäuser, sondern auch für ein Zuhause, in dem Sie sich wirklich wohlfühlen. Mit über 80.000 gebauten Häusern und mehr als 115 Jahren Erfahrung wissen wir, worauf es ankommt. Individuelle Beratung und Unterstützung stehen bei uns an erster Stelle, denn jedes Haus soll zu einem unverwechselbaren Zuhause werden, das die Bedürfnisse seiner Bewohner erfüllt. Wohngesunde Materialien und zukunftsweisende Standards machen jedes Bien-Zenker Haus nicht nur zu einem Ort des Ankommens, sondern auch zu einem Ort, an dem die Zukunft beginnt.
Ein Zuhause entsteht nicht nur aus Wänden und Dach - sondern auch aus Klarheit. Deshalb gehören hier auch die Baunebenkosten ehrlich und transparent erwähnt, die zuzüglich bei jedem Bauprojekt anfallen.
Grundrisse und Abbildungen können Extras zeigen. Flächenangaben nach DIN 277.
Das ist Ihre Zukunft: Grundstück und Haus für Ihr Familienparadies!
35418 Buseck
Die vollständige Adresse der Immobilie erhalten Sie vom Anbieter.
Auf Karte anzeigen
Die vollständige Adresse der Immobilie erhalten Sie vom Anbieter.
Finanzierungszertifikat
In nur zwei Minuten zu Ihrem persönlichen Finanzierungszertifkat.
Infos
| Wohnfläche ca. | 136 m2 |
|---|---|
| Grundstücksfläche | 305 m2 |
| Zimmer | 5 |
Kosten
| Kaufpreis |
527.550 € |
|---|
Finanzierungsrechner:
Kaufpreis:
600.000 €
Eigenkapital:
600.000 €
Monatliche Rate
0 €
Effektiver Jahreszins
0 %
Sollzinsbindung
10 Jahre
Bausubstanz & Energieausweis
| Baujahr | unbekannt |
|---|
Beschreibung des Objekts
Ausstattung
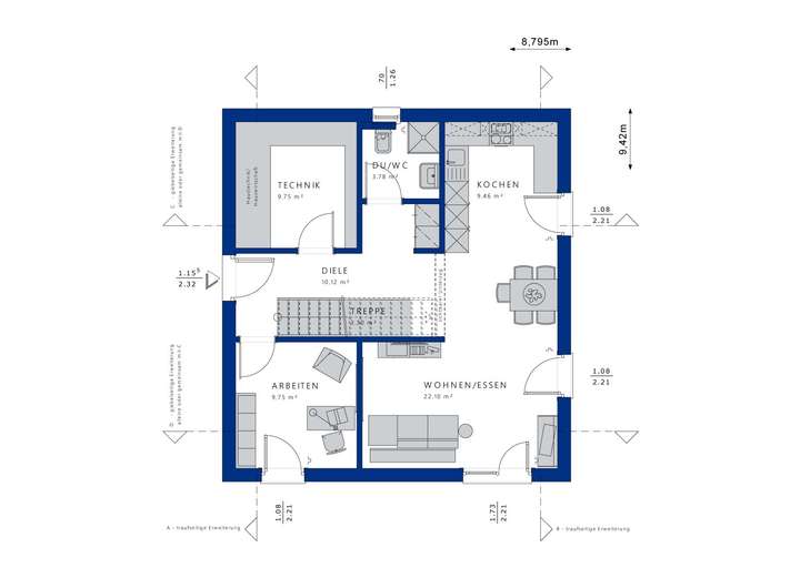
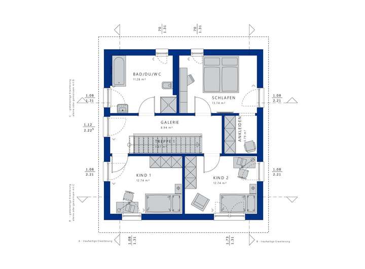
Die Aufteilung des Hauses umfasst fünf helle Zimmer, die sich ideal für Familien eignen. Mit einer Wohnfläche von 135 Quadratmetern haben Sie ausreichend Platz für Ihre persönlichen Rückzugsorte und gemeinschaftliche Aktivitäten. Die geschickte Anordnung der Räume sorgt dafür, dass Sie sowohl im Erdgeschoss als auch im Obergeschoss eine harmonische Verbindung zwischen Wohn- und Lebensraum erleben. Dies schafft nicht nur eine einladende Atmosphäre, sondern fördert auch die Privatsphäre in den Schlafzimmern.
Besonders hervorzuheben sind die lichtdurchfluteten Räume, die dank großer Fensterfronten eine freundliche und einladende Stimmung erzeugen. Genießen Sie entspannte Stunden auf Ihrer Terrasse oder Balkon, die Ihnen einen Ausblick ins Grüne bieten und zum Verweilen einladen. Ein Abstellraum sorgt für zusätzlichen Stauraum und hält Ihr Zuhause ordentlich und aufgeräumt. Die geradläufige Treppe in der Diele wird zum Blickfang und verbindet die beiden Geschosse auf stilvolle Weise.
Die Schlüsselfertig-Ausbaustufe bietet Ihnen den Vorteil, dass Sie sich um nichts kümmern müssen. Bien-Zenker übernimmt den gesamten Bauprozess, sodass Sie sich entspannt zurücklehnen können. Vom ersten Spatenstich bis hin zur finalen Schlüsselübergabe sind Sie in besten Händen. Im Preis sind alle wesentlichen Leistungen enthalten, sodass Sie sich voll und ganz auf Ihre neuen vier Wände freuen können, ohne sich um die Details des Bauablaufs sorgen zu müssen.
Lage
Willkommen in Trohe - Ihr neues Zuhause für die ganze Familie
Stellen Sie sich vor: ein Ort, an dem Kinder unbeschwert spielen, Eltern Ruhe und Sicherheit finden und die ganze Familie von einer starken Infrastruktur profitiert. Genau das bietet Trohe, der kleinste und zugleich charmanteste Ortsteil der Gemeinde Buseck.
Familienfreundliche Infrastruktur
Kindergärten & Schulen: In der Gemeinde Buseck entstehen moderne Kindertagesstätten, und die Nähe zu Großen-Buseck und Gießen sorgt für ein breites Angebot an Grund- und weiterführenden Schulen.
Einkaufsmöglichkeiten: Von kleinen Geschäften bis zu Supermärkten in Großen-Buseck und Gießen - alles ist schnell erreichbar, sodass der Familienalltag entspannt bleibt.
Mobilität & Anbindung
ÖPNV: Trohe ist in den Rhein-Main-Verkehrsverbund (RMV) eingebunden. Mit der Verkehrsgesellschaft Oberhessen (VGO) sind Sie bestens mit Bus und Bahn vernetzt.
Autobahnnähe: Die schnelle Anbindung an die A5 und A45 macht Trohe zum idealen Ausgangspunkt für Berufspendler und Wochenendausflüge.
Freizeit & Ausflugsmöglichkeiten
Direkt vor der Haustür: Spaziergänge entlang der Wieseck, die Trohe durchfließt.
In der Umgebung: Das Segelfluggelände Gießen-Wieseck lädt zu spannenden Familienausflügen ein.
Kultur & Natur: Die Nähe zu Gießen eröffnet Museen, Theater und Parks - perfekt für gemeinsame Erlebnisse.
Ihr Traumhaus in Trohe
Ein Einfamilienhaus hier bedeutet mehr als nur vier Wände - es ist ein Ort, an dem Kinder groß werden, Freundschaften entstehen und Familien ihre Zukunft gestalten. Trohe verbindet die Idylle eines kleinen Dorfes mit der Nähe zu urbanem Leben.
Kurz gesagt: Trohe ist der perfekte Ort für Familien mit Kindern - sicher, gut angebunden und voller Möglichkeiten für ein erfülltes Leben.
Sonstige Angaben
Als Hausverkäuferin ist es mir eine Herzensangelegenheit, meine Bauherren nicht nur fachlich, sondern auch menschlich zu begleiten. Ich stehe für eine Beratung, die transparent, fair und auf Augenhöhe stattfindet - denn Vertrauen entsteht durch Ehrlichkeit und echtes Zuhören.
Jeder Schritt auf dem Weg zu Ihrem Traumhaus ist für mich genauso bedeutend wie für Sie. Deshalb begleite ich Sie mit Offenheit, Klarheit und einem echten Interesse an Ihren Wünschen und Bedürfnissen.
Lassen Sie uns gemeinsam Ihr Zuhause gestalten!
Grundriss
Wohnbeispiel: Erdgeschoß
>
>
Wohnbeispiel: Dachgeschoß
>
>
Adresse
35418 Buseck
Interessante Orte
Preis- und Lageinformationen
Preistrend für Bestandsimmobilien in Buseck