Das Bien-Zenker EVOLUTION 162 vereint auf beeindruckende Weise innovative Haustechnik und individuelle Architektur. Mit einer großzügigen Wohnfläche von 162 m² und insgesamt 6.5 Zimmern bietet dieses projektierte Fertighaus ausreichend Platz für Ihre Familie und deren Bedürfnisse. Jedes Detail dieses Hauses wird unverwechselbar, da Sie die Möglichkeit haben, Ihr Zuhause nach Ihren persönlichen Vorstellungen zu gestalten. Die verschiedenen Dachformen und eine breite Palette an Architektur-Bauteilen ermöglichen es Ihnen, ein Design zu kreieren, das perfekt zu Ihrem Lebensstil passt und Ihnen ein Gefühl von Geborgenheit und Zufriedenheit vermittelt.
Die intelligente Grundrissgestaltung sorgt dafür, dass sich alle Räume harmonisch miteinander verbinden. Ob ein lichtdurchflutetes Wohnzimmer, das zum Verweilen einlädt, oder gemütliche Schlafzimmer, in denen Sie nach einem langen Tag zur Ruhe kommen können - hier ist für jeden etwas dabei. Das offene Raumkonzept fördert nicht nur die Kommunikation innerhalb der Familie, sondern schafft auch ein einladendes Ambiente für Gäste. Sie werden die durchdachte Raumaufteilung lieben, die Privatsphäre und Gemeinschaft perfekt in Einklang bringt.
Mit der Ausbaustufe "Schlüsselfertig" haben Sie die Möglichkeit, stressfrei in Ihr neues Zuhause einzuziehen. Bien-Zenker übernimmt den gesamten Bauprozess für Sie - vom Fundament bis zur letzten Schraube. Das bedeutet für Sie: kein Planungsstress, keine Nervenanspannung, sondern pure Vorfreude auf Ihr neues Heim. Sie müssen lediglich die Tür aufschließen und sich in Ihrem neuen Wohnraum wohlfühlen - einfacher kann ein Neubau nicht sein.
Ein Zuhause entsteht aber nicht nur aus Wänden und Dach - sondern auch aus Klarheit. Deshalb gehören hier auch die Baunebenkosten ehrlich und transparent erwähnt, die zuzüglich bei jedem Bauprojekt anfallen.
Grundrisse und Abbildungen können Extras zeigen. Flächenangaben nach DIN 277.
Hier ist viel Platz zum Wachsen und Genießen!
35440 Linden
Die vollständige Adresse der Immobilie erhalten Sie vom Anbieter.
Auf Karte anzeigen
Die vollständige Adresse der Immobilie erhalten Sie vom Anbieter.
Finanzierungszertifikat
In nur zwei Minuten zu Ihrem persönlichen Finanzierungszertifkat.
Infos
| Wohnfläche ca. | 161 m2 |
|---|---|
| Grundstücksfläche | 655 m2 |
| Zimmer | 6,5 |
Kosten
| Kaufpreis |
808.450 € |
|---|
Finanzierungsrechner:
Kaufpreis:
600.000 €
Eigenkapital:
600.000 €
Monatliche Rate
0 €
Effektiver Jahreszins
0 %
Sollzinsbindung
10 Jahre
Bausubstanz & Energieausweis
| Baujahr | unbekannt |
|---|
Beschreibung des Objekts
Ausstattung
Der Grundriss des EVOLUTION 162 ist sowohl funktional als auch ästhetisch durchdacht. Mit sechs großzügigen Zimmern, darunter mehrere Schlafzimmer und ein einladendes Wohnzimmer, bieten Sie Ihrer Familie den Raum, den sie braucht, um sich zu entfalten. Die offene Gestaltung der Wohnbereiche sorgt dafür, dass Licht und Luft ungehindert zirkulieren können und das gesamte Zuhause hell und freundlich wirkt. Ideal für Familien, die Wert auf ein harmonisches Miteinander legen, und dennoch Rückzugsmöglichkeiten wünschen.
Die Komfortdetails dieses Hauses sind beeindruckend. Stellen Sie sich vor, wie Sie an warmen Sommertagen auf Ihrer eigenen Terrasse entspannen oder die Kinder im Garten spielen sehen. Große Fensterfronten sorgen für lichtdurchflutete Räume, die eine angenehme Wohnatmosphäre schaffen. Abstellräume bieten zusätzlichen Stauraum und tragen zur Ordnung in Ihrem Zuhause bei. Auch der Zugang zu den öffentlichen Verkehrsmitteln ist optimal, so dass Sie schnell und unkompliziert in die Stadt gelangen.
Die Ausbaustufe "Schlüsselfertig" stellt sicher, dass Sie sich um nichts kümmern müssen. Der gesamte Innenausbau wird von Bien-Zenker übernommen, was Ihnen Zeit und Nerven spart. Im Preis sind alle notwendigen Arbeiten enthalten, sodass Sie sich ganz auf die Vorfreude auf Ihr neues Zuhause konzentrieren können. Ein reibungsloser Bauablauf und die Gewissheit, dass alles nach Ihren Wünschen umgesetzt wird, machen den Prozess für Sie angenehm und stressfrei.
Lage
Willkommen in Linden - einem Ort, der Familien nicht nur ein Zuhause, sondern ein echtes Lebensgefühl schenkt.
Familienfreundliches Wohnen mit Garten
In Linden finden Sie die perfekte Balance aus Ruhe und urbaner Nähe. Ein Einfamilienhaus mit Garten bedeutet hier nicht nur Platz für Kinder zum Spielen und für gesellige Sommerabende, sondern auch ein Stück Natur direkt vor der Haustür.
Beste Lage und Anbindung
Nur wenige Kilometer südlich von Gießen gelegen, bietet Linden eine hervorragende Verkehrsanbindung. Die Stadt ist direkt an die Autobahn A485 sowie an den ÖPNV angeschlossen - so erreichen Sie Gießen, Frankfurt oder das Rhein-Main-Gebiet schnell und unkompliziert.
Alles für den Alltag in Reichweite
Familien profitieren von einer sehr guten Infrastruktur: Ärzte, Apotheken, Kindergärten, Schulen und zahlreiche Einkaufsmöglichkeiten sind direkt vor Ort. So wird der Alltag leicht und komfortabel.
Freizeit und Ausflüge für Groß und Klein
Linden ist ein Ort voller Möglichkeiten. Ob Spaziergänge im Bergwerkswald, Minigolf, Indoorspielplatz "Funtastic" oder Ausflüge ins nahe Gießen - hier gibt es für jede Altersgruppe etwas zu entdecken. Sportvereine, Kulturangebote und die umliegende Natur machen Linden zu einem lebendigen Zuhause mit hoher Lebensqualität.
Das Besondere an Linden
Ein kompakter Ort mit viel Natur und gleichzeitig urbanem Flair
Vielfältige Freizeitangebote von Sport bis Kultur
Schnelle Wege in die Stadt und ins Grüne
Ein starkes Gemeinschaftsgefühl, das Familien willkommen heißt
Fazit:
Ein Einfamilienhaus in Linden bedeutet Komfort, Platz und Lebensqualität für die ganze Familie. Mit Garten, bester Infrastruktur und vielfältigen Freizeitmöglichkeiten ist Linden der ideale Ort, um Wurzeln zu schlagen und das Familienleben in vollen Zügen zu genießen.
Sonstige Angaben
Als Hausverkäuferin ist es mir eine Herzensangelegenheit, meine Bauherren nicht nur fachlich, sondern auch menschlich zu begleiten. Ich stehe für eine Beratung, die transparent, fair und auf Augenhöhe stattfindet - denn Vertrauen entsteht durch Ehrlichkeit und echtes Zuhören.
Jeder Schritt auf dem Weg zu Ihrem Traumhaus ist für mich genauso bedeutend wie für Sie. Deshalb begleite ich Sie mit Offenheit, Klarheit und einem echten Interesse an Ihren Wünschen und Bedürfnissen.
Lassen Sie uns gemeinsam Ihr Zuhause gestalten und rufen Sie mich an: 0152-59 85 5756.
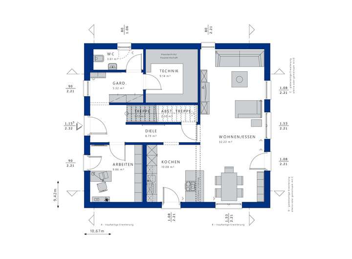
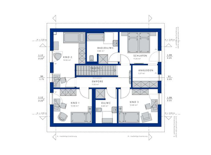
Grundriss
Wohnbeispiel: Erdgeschoss
>
>
Wohnbeispiel: Dachgeschoss
>
>
Adresse
35440 Linden
Interessante Orte
Preis- und Lageinformationen
Preistrend für Bestandsimmobilien in Linden