Dieses freistehende Einfamilienhaus mit klassischem Walmdach wurde 1977 in solider Ziegelbauweise errichtet und präsentiert sich in einem sehr gepflegten Zustand. Es liegt geschützt in zweiter Reihe und ist über eine private, abschließbare Zufahrt erreichbar. Die Wohnfläche umfasst rund 175 m² und wird durch großzügige Nutzflächen im Untergeschoss ergänzt. Insgesamt stehen 4,5 Zimmer zur Verfügung, die vielseitige Wohn- und Nutzungsmöglichkeiten eröffnen.
Der Eingangsbereich überzeugt mit einer einbruchsicheren Haustür samt Fingerscanner. Im Windfang befindet sich eine begehbare Garderobe, direkt daneben ein Tageslichtbad mit moderner Regendusche. Die separate Küche ist funktional geschnitten und bietet direkten Zugang zur Terrasse mit Natursteinbelag.
Der großzügige Wohn- und Essbereich öffnet sich zum beheizten Wintergarten, der durch eine Schiebetür in den Garten führt. Große Fensterflächen sorgen für viel Licht und eine angenehme Wohnatmosphäre. Hochwertige Details wie Mosaik- und Eichenparkettböden, weiß gestrichene Kassettentüren aus massiver Eiche und ein Marmorboden im Flur unterstreichen den stilvollen Gesamteindruck. Ein zusätzliches Zimmer im Erdgeschoss eignet sich ideal als Gäste-, Arbeits- oder Familienzimmer.
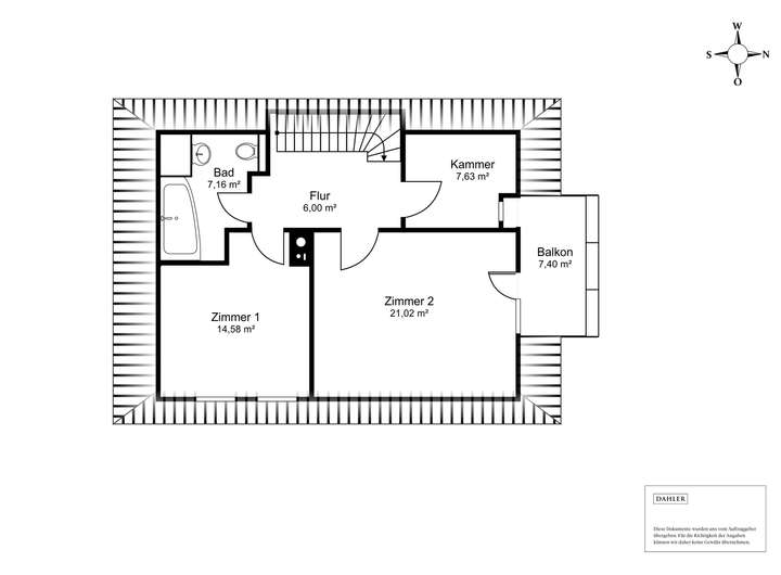
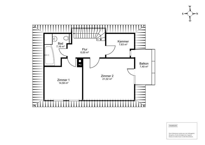
Über eine breite Marmortreppe gelangen Sie ins Obergeschoss mit drei gut geschnittenen Schlafzimmern. Eines davon verfügt über einen Zugang zur geschützten Südloggia. Zwei große Dachflächenfenster mit elektrischen Thermorollläden erhöhen den Wohnkomfort. Die Fenster im Obergeschoss wurden 2018 durch moderne Kunststoffelemente ersetzt.
Im Untergeschoss stehen ein geräumiger Hobbyraum, ein Wirtschaftsraum mit Dusche, ein Werkraum sowie weitere Abstell- und Technikflächen zur Verfügung. Die Buderus-Ölzentralheizung stammt aus dem Jahr 2006.
Der Garten ist nach Süd-Südwest ausgerichtet, vollständig eingefriedet und vielseitig nutzbar. Eine zweite Garage mit Stellplatz befindet sich auf einem separaten, im Grundbuch eingetragenen Flurstück.
Seltene Gelegenheit: Charmantes Einfamilienhaus in begehrter Lage in Puchheim Bahnhof
82178 Puchheim
Die vollständige Adresse der Immobilie erhalten Sie vom Anbieter.
Auf Karte anzeigen
Die vollständige Adresse der Immobilie erhalten Sie vom Anbieter.
Finanzierungszertifikat
In nur zwei Minuten zu Ihrem persönlichen Finanzierungszertifkat.
Infos
| Haustyp | Einfamilienhaus |
|---|---|
| Etagenzahl | 2 |
| Wohnfläche ca. | 177 m2 |
| Grundstücksfläche | 571 m2 |
| Zimmer | 5 |
| Schlafzimmer | 3 |
| Badezimmer | 2 |
| Garage/Stellplatz | Garage |
| Anzahl Garage/Stellplatz | 2 |
Kosten
| Kaufpreis |
1.150.000 € |
|---|---|
| Provision |
3,57 % inkl. der gesetzl. MwSt., bezogen auf den Kaufpreis |
Finanzierungsrechner:
Kaufpreis:
600.000 €
Eigenkapital:
600.000 €
Monatliche Rate
0 €
Effektiver Jahreszins
0 %
Sollzinsbindung
10 Jahre
Bausubstanz & Energieausweis
| Baujahr | 1977 |
|---|---|
| Objektzustand | Gepflegt |
| Heizungsart | Zentralheizung |
| Wesentliche Energieträger | Öl |
| Energieausweis | liegt vor |
| Energieausweistyp | Verbrauchsausweis |
| Energieverbrauchskennwert | 115,6 kWh/(m²*a) |
| Energieeffizienzklasse | D |
115,6
kWh/(m²*a)
Energieeffizienzklasse D
- A+
- A
- B
- C
- D
- E
- F
- G
- H
- 0
- 25
- 50
- 75
- 100
- 125
- 150
- 175
- 200
- 225
- >250
Beschreibung des Objekts
Ausstattung
• Ruhige Lage in zweiter Reihe mit abschließbarer Zufahrt
• Haustür mit Fingerscanner
• Tageslicht-Duschbad im Erdgeschoss mit moderner Regendusche
• Wohn- und Essbereich mit Mosaikparkett
• Wintergarten mit Bodenheizung und Schiebetür zum Garten
• Weiße Kassettentüren aus massivem Eichenholz im gesamten Haus
• Breite Marmortreppe ins Obergeschoss
• Schlafzimmer mit Zugang zur sonnigen Süd-Loggia
• Fenster im Obergeschoss 2018 vollständig erneuert
• Zwei große Dachflächenfenster mit elektrisch steuerbaren Thermorollläden
• Dachgeschoss mit Ausbaupotenzial
• Voll unterkellert
• Ölzentralheizung von 2006 mit Edelstahl-Heizöltank (8.000 Liter Fassungsvermögen)
• Südwestlich ausgerichteter, vollständig eingefriedeter Garten – ideal auch für Haustiere
• Großes, hochwertiges Holz-Gartenhaus mit stabilem Fundament
• Sonnige Terrasse (ca. 18 m²) mit Natursteinbelag
• Eigener Brunnen für die Gartenbewässerung
• Zwei Einzelgaragen:
• Eine direkt am Haus
• Eine weitere straßenseitig auf separatem, im Grundbuch eingetragenem Flurstück mit eigenem Stellplatz
Lage
Das freistehende Einfamilienhaus liegt im gefragten Ortsteil Puchheim-Bahnhof – ruhig zurückgesetzt in zweiter Reihe, geschützt vor Durchgangsverkehr und eingebettet in eine gewachsene Nachbarschaft mit viel Privatsphäre. Die Umgebung gilt als besonders familienfreundlich und punktet mit einer harmonischen Kombination aus städtischer Infrastruktur und naturnahem Wohnen.
In unmittelbarer Nähe lädt der Gröbenbach zu Spaziergängen, Joggingrunden oder Momenten der Ruhe ein. Auch der Böhmerweiher – eine grüne Oase mitten im Quartier – ist bequem zu Fuß erreichbar und steigert die Lebensqualität zusätzlich.
Die Anbindung an den öffentlichen Nahverkehr ist ausgezeichnet: Eine Bushaltestelle liegt nur rund 350 Meter entfernt, der S-Bahnhof ist schnell erreichbar und ermöglicht eine zügige Verbindung ins Münchner Stadtzentrum. Einkaufsmöglichkeiten, Kindergärten, Schulen sowie ärztliche Versorgung finden sich ebenfalls direkt vor Ort. Damit bietet Puchheim-Bahnhof alles für ein komfortables, gut vernetztes Leben im westlichen Umland – kombiniert mit dem Vorteil, dass Erholung und Natur direkt vor der Haustür beginnen.
Grundriss
Erdgeschoss
>
>
1.Obergeschoss
>
>
Kellergeschoss
>
>
Adresse
82178 Puchheim
Interessante Orte
Preis- und Lageinformationen
Preistrend für Bestandsimmobilien in Puchheim